箱根舜芦
掲載情報更新日:2026年05月06日 次回更新予定日:2026年05月20日
- 1億8,000万円
-
- 借入ご希望金額
万円 - 借入期間
年 - 借入金利
% - 月々のお支払い金額
円
- 借入ご希望金額
※ 月々のお支払例は目安の試算となりますので、実際の金額とは異なる場合がございます。詳しくは店舗までお問合わせください。
- 足柄下郡箱根町箱根
-
箱根登山ケーブル線『公園上』 バス乗車53分 箱根登山バス 箱根ホテル前 停 徒歩5分 (約400m)
箱根舜芦一戸建て | 物件情報
箱根駅伝 箱根港乗船場徒歩1分
物件の特徴
- 2階建
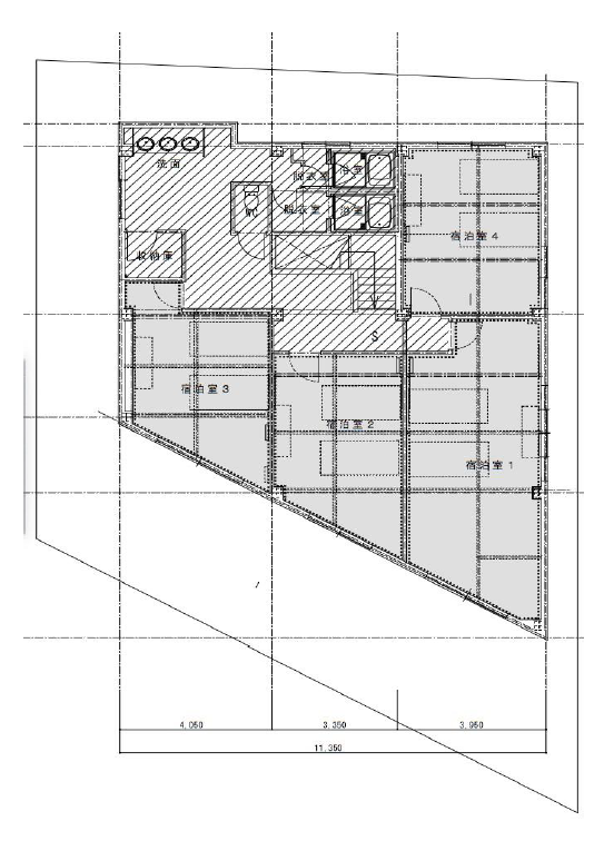
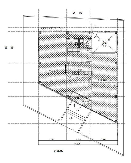
物件詳細情報
| 価格 | 1億8,000万円 | 間取り | |
|---|---|---|---|
| 物件種別 | 中古一戸建て(収益) | ||
| 所在地 | 神奈川県足柄下郡箱根町箱根 | ||
| アクセス |
|
||
| 建物面積 | 駐車場 | 近隣あり 料金:無料 | |
| 築年月 | 1990年(平成2年)03月築 | ||
| 建物構造 | 鉄骨 ストレート葺 2階建 | 工法 | |
| 主要採光 | バルコニー | ||
| 保証・評価 | |||
| リフォーム | |||
| 土地面積 | 公248.72㎡(75.23坪) | 接道 | 北東側幅 約3.5m 北西側幅 約3.4m 南東側幅 約2.8m |
| 私道 | セットバック | ||
| 地目 | 宅地 | 地勢 | 平坦 |
| 権利 | 所有権 |
||
| 都市計画 | 市街化区域 |
用途地域 | 1種住居 |
| 建ぺい/容積率 | 60%(一部40% 含む) / 200%(一部160% 含む) | 土地国土法 | |
| 許可番号 | 建築基準法 | ||
| 法令制限 | 文化財保護法・景観法・自然公園法 | ||
| 小学区 | 中学区 | ||
| 現況 | 引渡 | 相談 | |
| その他費用 | |||
| 収益情報 | |||
| 備考 | 旅館営業許可 | ||
| 物件番号 | 4331785 | 取引態様 | 媒介 |
※利回りとは、当該不動産の1年間の予定賃料収入の不動産取得対価に対する割合であり、公租公課その他当該物件を維持するために必要な費用の控除前のものです。また、予定賃料収入が確実に得られる事を保証するものではありません。
※利回り、想定年収に関する詳しい内容は、直接店舗までお問い合わせ下さい。
取扱店舗情報
ハウスドゥ 中戸祭 株式会社ケイズ・ネクスト 店舗詳細ページへ
| 電話番号 | 028-680-4339 |
|---|---|
| 所在地 | 〒320-0052 栃木県宇都宮市中戸祭町867-3 イステートハイツ中戸祭 |
| 営業時間 | 9:00~18:00 |
| 定休日 | 水曜日・夏休暇・GW・年末年始 |
| 宅建免許番号 | 栃木県知事(1)第5469号 |
| アクセス | 店舗への地図はこちら |












