姫路市野里の中古戸建
掲載情報更新日:2026年01月22日 次回更新予定日:2026年02月05日
- 1,000万円
-
- 借入ご希望金額
万円 - 借入期間
年 - 借入金利
% - 月々のお支払い金額
円
- 借入ご希望金額
※ 月々のお支払例は目安の試算となりますので、実際の金額とは異なる場合がございます。詳しくは店舗までお問合わせください。
- 姫路市野里
-
JR播但線『京口』 徒歩18分 (約1440m)
姫路市野里一戸建て | 物件情報
物件の設備
- プロパンガス
物件詳細情報
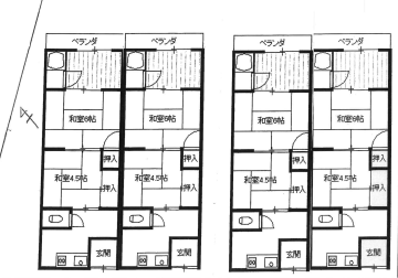
| 価格 | 1,000万円 | 間取り | 2K |
|---|---|---|---|
| 物件種別 | 中古一戸建て(収益) | ||
| 所在地 | 兵庫県姫路市野里 | ||
| アクセス |
|
||
| 建物面積 | 129.73㎡ | 駐車場 | あり |
| 築年月 | 1966年(昭和41年)04月築 | ||
| 建物構造 | 木造 1階建 | 工法 | |
| 主要採光 | バルコニー | ||
| 保証・評価 | |||
| リフォーム | |||
| 土地面積 | 393.38㎡(118.99坪) | 接道 | |
| 私道 | セットバック | ||
| 地目 | 宅地 | 地勢 | |
| 権利 | 所有権 |
||
| 都市計画 | 市街化区域 |
用途地域 | 1種住居 |
| 建ぺい/容積率 | 60% / 200% | 土地国土法 | |
| 許可番号 | 建築基準法 | ||
| 法令制限 | |||
| 小学区 | 中学区 | ||
| 現況 | 賃貸中 | 引渡 | 相談 |
| その他費用 | |||
| 収益情報 | |||
| 備考 | ※収益貸家2棟 1号 38000円 2号 25000円 3号 23000円(現況空室) 4号 25000円 満室想定 113.2万/年 現況 105.6万/年 |
||
| 物件番号 | 4333672 | 取引態様 | 媒介 |
※利回りとは、当該不動産の1年間の予定賃料収入の不動産取得対価に対する割合であり、公租公課その他当該物件を維持するために必要な費用の控除前のものです。また、予定賃料収入が確実に得られる事を保証するものではありません。
※利回り、想定年収に関する詳しい内容は、直接店舗までお問い合わせ下さい。
取扱店舗情報
| 電話番号 | 079-263-8520 |
|---|---|
| 所在地 | 〒671-0255 兵庫県姫路市花田町小川6-1 |
| 営業時間 | 9:30~18:30 |
| 定休日 | 水曜日・お盆・年末年始 |
| 宅建免許番号 | 兵庫県知事(5)第451126号 |
| アクセス | 店舗への地図はこちら |

来店ご予約
- 兵庫県
マイページ物件数 - 3,130件
最近見た物件
-
-

-
- 中古一戸建て
- 2,380万円
-
豊田市古瀬間町坂能瀬
-
名鉄三河線豊田市
-
-
-

-
- 中古一戸建て
- 1,999万円
-
海部郡大治町大字長牧字中道
-
名鉄津島線甚目寺
-
-
-

-
- 中古一戸建て
- 980万円
-
柏原市石川町
-
近鉄南大阪線道明寺
-
兵庫県事業用・収益物件新着物件
-
-

-
- 収益
- 2億1,800万円
-
神戸市垂水区学が丘4丁目
-
JR山陽本線垂水駅
-
-
-

-
- 事業用
- 1,600万円
-
姫路市大善町
-
JR播但線京口駅
-
- お近くの店舗を探す
-
おすすめ物件
-
-

-
- 事業用
- 630万円
-
たつの市龍野町北龍野
-
JR姫新線本竜野
-


