川口市新堀町の収益物件
掲載情報更新日:2026年01月26日 次回更新予定日:2026年02月09日
- 1,980万円
-
- 借入ご希望金額
万円 - 借入期間
年 - 借入金利
% - 月々のお支払い金額
円
- 借入ご希望金額
※ 月々のお支払例は目安の試算となりますので、実際の金額とは異なる場合がございます。詳しくは店舗までお問合わせください。
- 川口市新堀町
-
東武伊勢崎・大師線『草加』 徒歩28分 (約2240m)
川口市新堀町の収益物件 | 物件情報
★人気のエリアに店舗付き住宅が登場です★
人気エリアに店舗付住宅が登場です!
◆賃貸中・オーナーチェンジ
◆一般借家2年契約(2025年3月~2027年3月)
◆年間賃料:1,800,000円利回り:9.90%
物件の設備
- 電気
- 公営水道
- 浄化槽
- 個別浄化槽
- プロパンガス
物件詳細情報
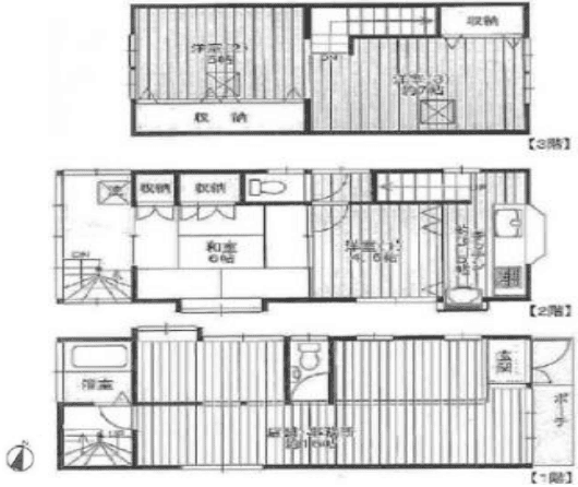
| 価格 | 1,980万円 | 間取り | 3LDK |
|---|---|---|---|
| 物件種別 | 事業用(店舗付住宅・収益・一棟所有) | ||
| 所在地 | 埼玉県川口市新堀町 | ||
| アクセス |
|
||
| 建物面積 | 公94.92㎡ | 駐車場 | |
| 築年月 | 1996年(平成8年)03月築 | ||
| 建物構造 | 木造 3階建 | 工法 | |
| 主要採光 | バルコニー | ||
| 保証・評価 | |||
| リフォーム | |||
| 土地面積 | 公50.48㎡(15.27坪) | 接道 | |
| 私道 | セットバック | ||
| 地目 | 宅地 | 地勢 | |
| 権利 | 所有権 |
||
| 都市計画 | 市街化区域 |
用途地域 | 準工業 |
| 建ぺい/容積率 | 60% / 200% | 土地国土法 | |
| 許可番号 | 建築基準法 | ||
| 法令制限 | |||
| 小学区 | 中学区 | ||
| 現況 | 賃貸中 | 引渡 | 相談 |
| その他費用 | |||
| 収益情報 | 表面利回り:9.90% 家賃収入:0円 |
||
| 備考 | ?オーナーチェンジ物件 ?現在賃貸中につき、購入後すぐに賃料収入が発生します! ?年間賃料:1,800,000円利回り:9.90% ?1階:店舗、2階-3階:住戸 ?3部屋+1階店舗 ? 賃貸借契約概要 ?賃料月額150,000円 ?一般借家2年契約(2025年3月~2027年3月) ?法人契約、保証会社加入あり ?店舗・社宅 ※本物件は建ぺい率・容積率超過しており、建替えの際は同規模の建物を建築できません。 |
||
| 物件番号 | 4366796 | 取引態様 | 媒介 |
※利回りとは、当該不動産の1年間の予定賃料収入の不動産取得対価に対する割合であり、公租公課その他当該物件を維持するために必要な費用の控除前のものです。また、予定賃料収入が確実に得られる事を保証するものではありません。
※利回り、想定年収に関する詳しい内容は、直接店舗までお問い合わせ下さい。
取扱店舗情報
ハウスドゥ 鳩ヶ谷坂下町 株式会社ウェルカムホーム 店舗詳細ページへ
| 電話番号 | 048-242-5180 |
|---|---|
| 所在地 | 〒334-0003 埼玉県川口市坂下町3丁目32-21 |
| 営業時間 | 9:00~18:00 |
| 定休日 | 火曜日、水曜日、年末年始 |
| 宅建免許番号 | 埼玉県知事(1)第25389号 |
| アクセス | 店舗への地図はこちら |

来店ご予約
埼玉県川口市で価格が似ている物件はこちら
- 埼玉県
マイページ物件数 - 3,175件
最近見た物件
-
-

-
- 新築一戸建て
- 2,290万円
-
碧南市鴻島町4丁目
-
名鉄三河線碧南中央
-
-
-

-
- 中古一戸建て
- 990万円
-
蒲生郡日野町大字西大路
-
近江鉄道本線日野
-
-
-

-
- 新築一戸建て
- 3,190万円
-
野田市山崎
-
東武野田線梅郷
-
埼玉県事業用・収益物件新着物件
-
-

-
- 事業用
- 2,480万円
-
川口市大字安行領根岸
-
埼玉高速鉄道新井宿駅
-
-
-

-
- 収益
- 9,000万円
-
吉川市木売2丁目
-
JR武蔵野線吉川駅
-
-
-

-
- 収益
- 6,380万円
-
川口市末広3丁目
-
埼玉高速鉄道川口元郷駅
-
-
-

-
- 収益
- 1億600万円
-
川口市東領家3丁目
-
埼玉高速鉄道川口元郷駅
-
-
-

-
- 収益
- 3億7,200万円
-
川口市並木1丁目
-
JR京浜東北・根岸線川口駅
-
-
-

-
- 収益
- 5,830万円
-
川口市鳩ヶ谷本町2丁目
-
埼玉高速鉄道鳩ヶ谷駅
-
- お近くの店舗を探す
-
おすすめ物件
-
-

-
- 収益
- 2,500万円
-
行田市持田4丁目
-
JR高崎線行田
-




担当エージェント:富重 隆文
お客様に「寄り添う」会社です。不動産の購入は金額も大きく、不安なことがたくさんあると思います。ぜひ、一度ご連絡ください。不動産に関するプロとして、お客様の課題に一つ一つ向き合っていきます。