第二川口ハイツ オーナーチェンジ 川口市末広1丁目の中古マンション
掲載情報更新日:2026年05月25日 次回更新予定日:2026年06月08日
- 1,120万円
-
- 借入ご希望金額
万円 - 借入期間
年 - 借入金利
% - 月々のお支払い金額
円
- 借入ご希望金額
※ 月々のお支払例は目安の試算となりますので、実際の金額とは異なる場合がございます。詳しくは店舗までお問合わせください。
- 川口市末広1丁目
-
埼玉高速鉄道『川口元郷』 徒歩8分 (約590m)
JR京浜東北・根岸線『川口』 徒歩22分 (約1730m)
埼玉高速鉄道『南鳩ヶ谷』 徒歩20分 (約1540m)
川口市末広1丁目マンション | 物件情報
◆埼玉高速鉄道「川口元郷」駅徒歩8分◆ペット可◆周辺住環境良好
☆☆☆ご案内可能です☆☆☆
◆埼玉高速鉄道「川口元郷」駅徒歩8分
◆オーナーチェンジ物件
◆周辺住環境良好・小中学校も徒歩10分圏内
物件の設備
- バルコニー
物件の特徴
- 管理人日勤
物件詳細情報
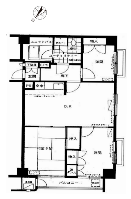
| 価格 | 1,120万円 | 間取り | 3DK |
|---|---|---|---|
| 物件種別 | 中古マンション(収益) | ||
| 所在地 | 埼玉県川口市末広1丁目 | ||
| アクセス |
|
||
| 専有面積 | 壁芯 67.05㎡ | 所在階 | 11階建/5階部分 |
| 主要採光 | 北西向 | バルコニー | 北西向4.27㎡ |
| その他 | |||
| 権利 | 所有権 |
||
| 保証・評価 | |||
| リフォーム | |||
| 総戸数 | 95戸 | 面積 | |
| 築年月 | 1974年(昭和49年)11月築 | 建物構造 | RC |
| 施工会社 | |||
| 管理会社 | 長谷工コミュニティ | 管理方式 | 全部委託 日勤管理 管理組合あり |
| 駐車場 | |||
| 都市計画 | 用途地域 | ||
| 建ぺい/容積率 | 土地国土法 | ||
| 法令制限 | |||
| 小学区 | 十二月田小学校 徒歩6分 (約440m) | 中学区 | 十二月田中学校 徒歩8分 (約590m) |
| 現況 | 賃貸中 | 引渡 | 相談 |
| 管理費 | 12,590円/月 | 修繕積立金 | 16,410円/月 |
| その他費用 | |||
| 収益情報 | |||
| 周辺環境 | ファミリーマート 川口末広店 徒歩1分 (約70m) セブンイレブン 川口末広1丁目店 徒歩1分 (約70m) 川口信用金庫 本町東支店 徒歩3分 (約180m) 末広1丁目第1公園 徒歩4分 (約310m) ファミリーマート 川口十二月田店 徒歩3分 (約220m) スギ薬局 川口末広店 徒歩7分 (約510m) ローソン 川口元郷一丁目店 徒歩6分 (約410m) 川口市立十二月田小学校 徒歩6分 (約440m) 社会医療法人新青会 川口工業総合病院 徒歩6分 (約460m) 川口元郷一郵便局 徒歩6分 (約480m) |
||
| 備考 | |||
| 物件番号 | 4372118 | 取引態様 | 媒介 |
※利回りとは、当該不動産の1年間の予定賃料収入の不動産取得対価に対する割合であり、公租公課その他当該物件を維持するために必要な費用の控除前のものです。また、予定賃料収入が確実に得られる事を保証するものではありません。
※利回り、想定年収に関する詳しい内容は、直接店舗までお問い合わせ下さい。
取扱店舗情報
ハウスドゥ 鳩ヶ谷坂下町 株式会社ウェルカムホーム 店舗詳細ページへ
| 電話番号 | 048-242-5180 |
|---|---|
| 所在地 | 〒334-0003 埼玉県川口市坂下町3丁目32-21 |
| 営業時間 | 9:00~18:00 |
| 定休日 | 火曜日、水曜日、年末年始 |
| 宅建免許番号 | 埼玉県知事(1)第25389号 |
| アクセス | 店舗への地図はこちら |

来店ご予約
- 埼玉県
マイページ物件数 - 3,097件
最近見た物件
-
-

-
- 新築一戸建て
- 4,798万円
-
福岡市南区皿山3丁目
-
西鉄天神大牟田線高宮
-
-
-

-
- 中古一戸建て
- 2,188万円
-
美濃加茂市本郷町3丁目
-
JR太多線美濃川合
-
-
-

-
- 中古マンション
- 5,280万円
-
吹田市春日1丁目
-
北大阪急行南北線緑地公園
-
埼玉県事業用・収益物件新着物件
- お近くの店舗を探す
-
おすすめ物件
-
-

-
- 収益
- 2,200万円
-
行田市持田4丁目
-
JR高崎線行田
-









担当エージェント:富重 隆文
お客様に「寄り添う」会社です。不動産の購入は金額も大きく、不安なことがたくさんあると思います。ぜひ、一度ご連絡ください。不動産に関するプロとして、お客様の課題に一つ一つ向き合っていきます。