丸亀市郡家町の事業用物件
掲載情報更新日:2025年12月05日 次回更新予定日:2025年12月19日
- 1,980万円
-
- 借入ご希望金額
万円 - 借入期間
年 - 借入金利
% - 月々のお支払い金額
円
- 借入ご希望金額
※ 月々のお支払例は目安の試算となりますので、実際の金額とは異なる場合がございます。詳しくは店舗までお問合わせください。
- 丸亀市郡家町
-
JR土讃線『金蔵寺』 徒歩42分 (約3300m)
コミュニティバス『一里屋停』 徒歩2分 (約100m)
丸亀市郡家町の事業用物件 | 物件情報
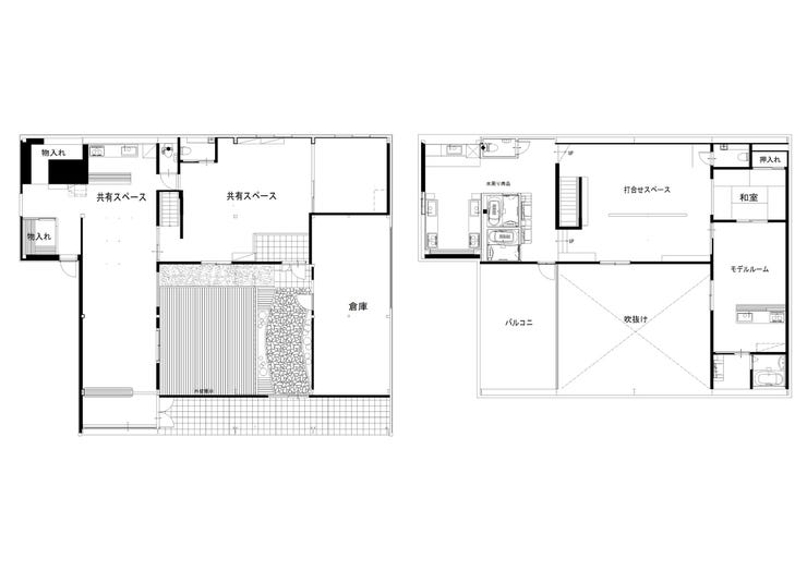
建物内は広く、128坪!2階の高さの吹き抜けが開放感あり。
住宅メーカーの元ショールーム・事務所として使用していました。
物件の設備
- 電気
- 公営水道
- 浄化槽
- 個別浄化槽
- 浄水器
- IHクッキングヒータ
- コンロ三口
- グリル
- システムキッチン
- トイレ
- 温水洗浄便座
- エアコン
- 吹抜
物件の特徴
- 居抜き物件
物件詳細情報
| 価格 | 1,980万円 | 間取り | |
|---|---|---|---|
| 物件種別 | 事業用(倉庫・一棟所有) | ||
| 所在地 | 香川県丸亀市郡家町2393-2 | ||
| アクセス |
|
||
| 建物面積 | 公425.76㎡ | 駐車場 |
カースペース |
| 築年月 | 1989年(平成1年)06月築 | ||
| 建物構造 | 鉄骨 2階建 | 工法 | |
| 主要採光 | 東向 | バルコニー | |
| 保証・評価 | |||
| リフォーム | |||
| 土地面積 | 公401.04㎡(121.31坪) | 接道 | 北側(公道)幅 約5.5m 東側(公道)幅 約4.7m |
| 私道 | セットバック | ||
| 地目 | 宅地 | 地勢 | |
| 権利 | 所有権 |
||
| 都市計画 | 非線引区域 |
用途地域 | 指定無 |
| 建ぺい/容積率 | 70% / 200% | 土地国土法 | |
| 許可番号 | 建築基準法 | ||
| 法令制限 | |||
| 小学区 | 郡家小学校 徒歩13分 (約1000m) | 中学区 | 南中学校 徒歩22分 (約1700m) |
| 現況 | 空 | 引渡 | 即 |
| その他費用 | |||
| 収益情報 | |||
| 備考 | 住宅メーカーの元ショールーム・事務所として使用していました。 建物内は広く、128坪!2階の高さの吹き抜けが開放感あり。 賃貸でも募集中!(賃料月々13万円) お問い合わせはお気軽に♪ |
||
| 物件番号 | 4417334 | 取引態様 | 専任 |
取扱店舗情報
| 電話番号 | 087-834-2510 |
|---|---|
| 所在地 | 〒760-0052 香川県高松市瓦町1丁目8-1 |
| 営業時間 | 9:00~18:00 |
| 定休日 | 水曜日 |
| 宅建免許番号 | 国土交通大臣(2)第9468号 |
| アクセス | 店舗への地図はこちら |



















担当エージェント:楠田 尚之
賃貸でも募集中!(賃料月々13万円)
お問い合わせはお気軽に♪