富山市布瀬町南2丁目の事業用物件
NEW 10.23掲載情報更新日:2025年11月01日 次回更新予定日:2025年11月15日
- 6,280万円
-
- 借入ご希望金額
万円 - 借入期間
年 - 借入金利
% - 月々のお支払い金額
円
- 借入ご希望金額
※ 月々のお支払例は目安の試算となりますので、実際の金額とは異なる場合がございます。詳しくは店舗までお問合わせください。
- 富山市布瀬町南2丁目
-
富山地鉄富山市内線『堀川小泉』 徒歩23分 (約1840m)
富山地鉄バス『花園町』 徒歩17分 (約1360m)
富山市布瀬町南2丁目の事業用物件 | 物件情報
151.38坪と広い敷地面積です!エアコン、防犯カメラ等設備も充実!
資金計画のプランニング
不動産購入で一番大切なのは無理のない返済計画
長期にわたる返済計画をシュミレーション致します。
【住宅ローンアドバイザーの資格保有スタッフ】
お客様のご希望やご予算、状況に合わせて、無理のない資金計画をご提案致します。
物件詳細情報
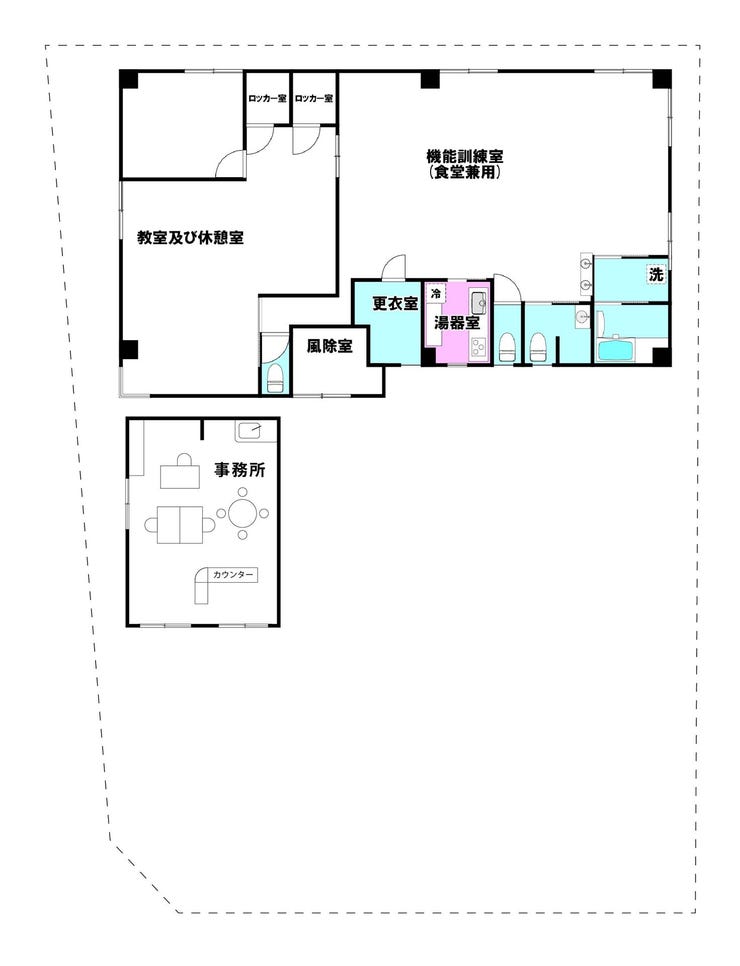
| 価格 | 6,280万円 | 間取り | |
|---|---|---|---|
| 物件種別 | 事業用(店舗・事務所・一棟所有) | ||
| 所在地 | 富山県富山市布瀬町南2丁目 | ||
| アクセス |
|
||
| 建物面積 | 公149㎡ | 駐車場 | |
| 築年月 | 2002年(平成14年)11月築 | ||
| 建物構造 | 鉄骨 1階建 | 工法 | |
| 主要採光 | バルコニー | ||
| 保証・評価 | |||
| リフォーム | |||
| 土地面積 | 公500.44㎡(151.38坪) | 接道 | 東側(公道)幅 約6.6m 北側(公道)幅 約6.4m |
| 私道 | セットバック | ||
| 地目 | 宅地 | 地勢 | |
| 権利 | 所有権 |
||
| 都市計画 | 市街化区域 |
用途地域 | 1種住居(一部1種中高 含む) |
| 建ぺい/容積率 | 60% / 200% | 土地国土法 | |
| 許可番号 | 建築基準法 | ||
| 法令制限 | 都市再生特別措置法・景観法・宅地造成及び特定盛土等規制法 | ||
| 小学区 | 光陽小学校 徒歩3分 (約220m) | 中学区 | 南部中学校 徒歩18分 (約1440m) |
| 現況 | 居住中 | 引渡 | 相談 |
| その他費用 | |||
| 収益情報 | |||
| 周辺環境 | アルビス布瀬店 徒歩4分 (約310m) 富山市立光陽小学校 徒歩3分 (約220m) 光陽もなみ保育園 徒歩5分 (約390m) ローソン富山新根塚町一丁目店 徒歩8分 (約640m) アップルサンショウ新根塚町店 徒歩10分 (約790m) 富山市立南部中学校 徒歩18分 (約1440m) クスリのアオキ根塚店 徒歩9分 (約670m) アルビス布瀬店 徒歩4分 (約300m) 布瀬南公園 徒歩7分 (約540m) 富山市立富山市民病院 徒歩15分 (約1160m) |
||
| 備考 | |||
| 物件番号 | 4460430 | 取引態様 | 一般 |
取扱店舗情報
ハウスドゥ 富山西 ハウジングマーケット株式会社 店舗詳細ページへ
| 電話番号 | 076-461-7078 |
|---|---|
| 所在地 | 〒939-2706 富山県富山市婦中町速星957-1 |
| 営業時間 | 10:00~17:00 |
| 定休日 | 水曜日、祝日、年末年始 |
| 宅建免許番号 | 富山県知事(3)第2886号 |
| アクセス | 店舗への地図はこちら |

来店ご予約
- 富山県
マイページ物件数 - 872件
最近見た物件
-
-

-
- 中古マンション
- 2,990万円
-
熊本市中央区九品寺6丁目
-
JR豊肥本線南熊本
-
-
-

-
- 新築一戸建て
- 2,780万円
-
熊本市東区東野4丁目
-
熊本市健軍線健軍町
-
-
-

-
- 中古マンション
- 5,180万円
-
八王子市八日町
-
JR中央本線八王子
-
富山県事業用・収益物件新着物件
-
-

-
- 事業用
- 1,100万円
-
富山市布市
-
富山地鉄不二越上滝線布市駅
-
-
-

-
- 事業用
- 2,500万円
-
富山市原
-
極楽坂スキー場前
-
-
-

-
- 事業用
- 6,280万円
-
富山市布瀬町南2丁目
-
富山地鉄富山市内線堀川小泉駅
-
- お近くの店舗を探す
-





































担当エージェント:勝野 史也
【ハウスドゥ富山西】 交通アクセス良好な立地で角地の物件になります。周辺にスーパーや病院など生活利便施設も複数あります!