諏訪郡富士見町落合上蔦木の中古戸建
掲載情報更新日:2026年04月20日 次回更新予定日:2026年05月04日
- 800万円
-
- 借入ご希望金額
万円 - 借入期間
年 - 借入金利
% - 月々のお支払い金額
円
- 借入ご希望金額
※ 月々のお支払例は目安の試算となりますので、実際の金額とは異なる場合がございます。詳しくは店舗までお問合わせください。
- 諏訪郡富士見町落合上蔦木
-
JR中央本線『信濃境』 車6分(約2.9km)
諏訪郡富士見町落合上蔦木一戸建て | 物件情報
☆オーナーチェンジ☆収益物件をお探しの方へ! 家賃8.0万円/月 で賃貸中です。
物件の設備
- 電気
- 上水道
- 汲取
- プロパンガス
- 給湯
- バス
- トイレ
- 温水洗浄便座
- 照明器具
- 和室
- シューズボックス
物件の特徴
- 2階建
物件詳細情報
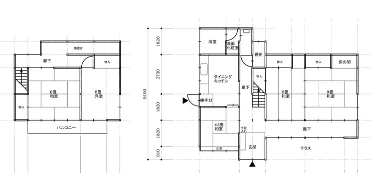
| 価格 | 800万円 | 間取り | 5DK |
|---|---|---|---|
| 物件種別 | 中古一戸建て(収益) | ||
| 所在地 | 長野県諏訪郡富士見町落合上蔦木 | ||
| アクセス |
|
||
| 建物面積 | 公147.3㎡ | 駐車場 | あり 普通:5台 |
| 築年月 | 1971年(昭和46年)07月築 | ||
| 建物構造 | 木造 2階建 | 工法 | |
| 主要採光 | バルコニー | ||
| 保証・評価 | |||
| リフォーム | |||
| 土地面積 | 公373.69㎡(113.04坪) | 接道 | 南西側(公道)幅 約3.4m |
| 私道 | セットバック | ||
| 地目 | 宅地 | 地勢 | |
| 権利 | 所有権 |
||
| 都市計画 | 用途地域 | ||
| 建ぺい/容積率 | 土地国土法 | ||
| 許可番号 | 建築基準法 | ||
| 法令制限 | |||
| 小学区 | 富士見小学校 徒歩93分 (約7400m) | 中学区 | |
| 現況 | 居住中 | 引渡 | 相談 |
| その他費用 | |||
| 収益情報 | |||
| 備考 | |||
| 物件番号 | 4639077 | 取引態様 | 一般媒介 |
※利回りとは、当該不動産の1年間の予定賃料収入の不動産取得対価に対する割合であり、公租公課その他当該物件を維持するために必要な費用の控除前のものです。また、予定賃料収入が確実に得られる事を保証するものではありません。
※利回り、想定年収に関する詳しい内容は、直接店舗までお問い合わせ下さい。
取扱店舗情報
ハウスドゥ 岡谷 Y'sエステート株式会社 店舗詳細ページへ
| 電話番号 | 0266-78-6411 |
|---|---|
| 所在地 | 〒394-0027 長野県岡谷市中央町1丁目9-12 Y'sビル1階 |
| 営業時間 | 10:00~18:00 |
| 定休日 | 火曜日、水曜日、年末年始 |
| 宅建免許番号 | 長野県知事(1)第5759号 |
| アクセス | 店舗への地図はこちら |

来店ご予約
- 長野県
マイページ物件数 - 1,729件
長野県事業用・収益物件新着物件
-
-

-
- 事業用
- 1,800万円
-
東筑摩郡山形村下竹田
-
松本電気鉄道下島駅
-
- お近くの店舗を探す
-
おすすめ物件
-
-

-
- 事業用
- 1,200万円
-
中野市中央2丁目
-
長野電鉄長野線信州中野
-












