松山市鴨川3丁目の事業用物件
NEW 03.24掲載情報更新日:2026年03月31日 次回更新予定日:2026年04月14日
- 6,500万円
-
- 借入ご希望金額
万円 - 借入期間
年 - 借入金利
% - 月々のお支払い金額
円
- 借入ご希望金額
※ 月々のお支払例は目安の試算となりますので、実際の金額とは異なる場合がございます。詳しくは店舗までお問合わせください。
- 松山市鴨川3丁目
-
JR予讃線『伊予和気』 車7分(約2.9km)
伊予鉄道高浜線『衣山』 車10分(約3.4km)
『鴨川団地前 バス停』 徒歩6分 (約450m)
松山市鴨川3丁目の事業用物件 | 物件情報
■収益物件 ■インフレに強い不動産で資産形成はいかがでしょうか
★不動産購入は安心安全の『ハウスドゥ松山北店』にお任せ下さい★
■2026年3月現在満室(427.2万円/年収)
■河川管理道から位置指定道路(1051-3)までの通路は県から占用許可を受けています
※河川占用料:3,750円/年
■2×4工法
■省令準耐火建築物
■預り敷金は別途引継ぎ
物件の設備
- 電気
- 上水道
- 公営水道
- 浄化槽
- 個別浄化槽
- 給湯
- IHクッキングヒータ
- カウンターキッチン
- システムキッチン
- シャワー
- 室内洗濯機置場
- 洗髪洗面化粧台
- エアコン
- フローリング
- 全室フローリング
- ウォークインクローゼット
- 全居室収納
物件の特徴
- 現在満室
物件詳細情報
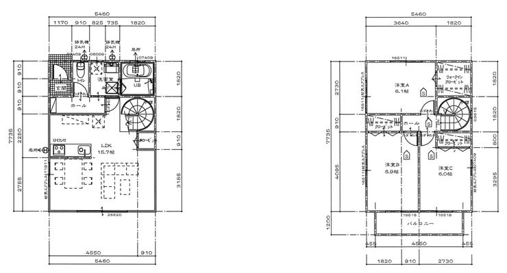
| 価格 | 6,500万円 | 間取り | 3LDK |
|---|---|---|---|
| 物件種別 | 事業用(その他・一棟所有) | ||
| 所在地 | 愛媛県松山市鴨川3丁目 | ||
| アクセス |
|
||
| 建物面積 | 公315.83㎡ | 駐車場 | |
| 築年月 | 2012年(平成24年)08月築 | ||
| 建物構造 | 木造 合金メッキ鋼板ぶき 2階建 | 工法 | |
| 主要採光 | バルコニー | ||
| 保証・評価 | |||
| リフォーム | |||
| 土地面積 |
公499.29㎡(151.03坪) 路地状部:67㎡ 持分:1/2 |
接道 | 南側(公道)幅 約4.0m |
| 私道 | 含:公67.00㎡(持分 1/2) | セットバック | |
| 地目 | 宅地 | 地勢 | |
| 権利 | 所有権 |
||
| 都市計画 | 市街化区域 |
用途地域 | 1種低層 |
| 建ぺい/容積率 | 50% / 80% | 土地国土法 | |
| 許可番号 | 建築基準法 | ||
| 法令制限 | |||
| 小学区 | 久枝小学校 徒歩16分 (約1210m) | 中学区 | 鴨川中学校 徒歩4分 (約260m) |
| 現況 | 賃貸中 | 引渡 | 相談 |
| その他費用 | |||
| 収益情報 | |||
| 周辺環境 | 鴨川中学校 徒歩4分 (約260m) 潮見保育園 徒歩9分 (約660m) くすりのレデイ 東長戸店 徒歩11分 (約850m) スーパー日東 鴨川店 徒歩11分 (約830m) ローソン 松山安城寺店 徒歩12分 (約940m) 潮見小学校 徒歩10分 (約740m) セブンスター 東長戸店 徒歩11分 (約850m) 久枝幼稚園 徒歩14分 (約1110m) フジ 安城寺店 徒歩13分 (約1040m) 久枝小学校 徒歩16分 (約1210m) |
||
| 備考 | ■2026年3月現在満室(427.2万円/年収) ■建物 ①グランドフォルクA・B棟…種類:共同住宅 延床面積:155.67㎡ ②グレイスフォルクA棟…種類:居宅 延床面積:80.08㎡ ③グレイスフォルクB棟…種類:居宅 延床面積:80.08㎡ ■河川管理道から位置指定道路(1051-3)までの通路は県から占用許可を受けています ※河川占用料:3,750円/年 ■2×4工法 ■省令準耐火建築物 ■預り敷金は別途引継ぎ ■別途収入 ・NTT電柱⇒3年に1回12月に振り込まれる(4,500円/回) ・四国電力電柱⇒毎年10月に振り込まれる(3,000円/回) |
||
| 物件番号 | 4651320 | 取引態様 | 一般媒介 |
取扱店舗情報
ハウスドゥ!松山北店 株式会社D'sエステート 店舗詳細ページへ
| 電話番号 | 089-925-2149 |
|---|---|
| 所在地 | 〒791-8013 愛媛県松山市山越6丁目2-21 |
| 営業時間 | 9:00~18:00 |
| 定休日 | 年末年始 |
| 宅建免許番号 | 愛媛県知事(4)第5043号 |
| アクセス | 店舗への地図はこちら |

来店ご予約
愛媛県松山市で価格が似ている物件はこちら
- 愛媛県
マイページ物件数 - 3,700件
最近見た物件
-
-

-
- 中古マンション
- 2,330万円
-
茨木市南春日丘7丁目
-
大阪モノレール彩都阪大病院前
-
-
-

-
- 中古一戸建て
- 6,780万円
-
足立区弘道1丁目
-
東武伊勢崎・大師線五反野
-
-
-

-
- 中古一戸建て
- 6,480万円
-
板橋区小茂根2丁目
-
西武有楽町線小竹向原
-
愛媛県事業用・収益物件新着物件
- お近くの店舗を探す
-







担当エージェント:油 俊介
同エリアにて売出し中の物件情報はほぼ取り揃えています。お客様のご希望条件に合わせて即ご紹介致します。