宇都宮市清原台3丁目の収益物件
NEW 04.23掲載情報更新日:2026年04月24日 次回更新予定日:2026年05月08日
- 1,680万円
-
- 借入ご希望金額
万円 - 借入期間
年 - 借入金利
% - 月々のお支払い金額
円
- 借入ご希望金額
※ 月々のお支払例は目安の試算となりますので、実際の金額とは異なる場合がございます。詳しくは店舗までお問合わせください。
- 宇都宮市清原台3丁目
-
宇都宮芳賀ライト線『ゆいの杜西』 徒歩12分 (約960m)
宇都宮市清原台3丁目の収益物件 | 物件情報
物件詳細情報
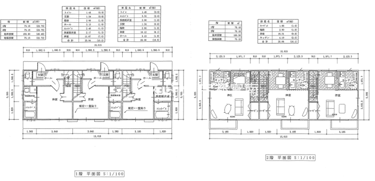
| 価格 | 1,680万円 | 間取り | 1LDK |
|---|---|---|---|
| 物件種別 | 事業用(アパート・収益・一棟所有) | ||
| 所在地 | 栃木県宇都宮市清原台3丁目 | ||
| アクセス |
|
||
| 建物面積 | 公150.3㎡ | 駐車場 | |
| 築年月 | 2006年(平成18年)03月築 | ||
| 建物構造 | 木造 2階建 | 工法 | |
| 主要採光 | 南向 | バルコニー | |
| 保証・評価 | |||
| リフォーム | |||
| 土地面積 | 公182.35㎡(55.16坪) | 接道 | 東側(公道)幅 約10.1m 間口 約7.65m |
| 私道 | 含:実16.45㎡(持分 1/1) | セットバック | |
| 地目 | 宅地 | 地勢 | 平坦 |
| 権利 | 所有権 |
||
| 都市計画 | 市街化区域 |
用途地域 | 1種中高 |
| 建ぺい/容積率 | 60% / 200% | 土地国土法 | |
| 許可番号 | 建築基準法 | ||
| 法令制限 | 景観法・宅地造成工事規制区域・法22条区域 | ||
| 小学区 | 清原中央小学校 徒歩17分 (約1360m) | 中学区 | 清原中学校 徒歩31分 (約2422m) |
| 現況 | 賃貸中 | 引渡 | 相談 |
| その他費用 | |||
| 収益情報 | 想定利回り:12.14% 想定家賃収入:2,040,000円 | ||
| 備考 | ※3世帯中1世帯入居中。 ※満室想定利回り:12.14% ※約20年前精神的瑕疵あり ※私道負担あり |
||
| 物件番号 | 4687179 | 取引態様 | 専任媒介 |
※利回りとは、当該不動産の1年間の予定賃料収入の不動産取得対価に対する割合であり、公租公課その他当該物件を維持するために必要な費用の控除前のものです。また、予定賃料収入が確実に得られる事を保証するものではありません。
※利回り、想定年収に関する詳しい内容は、直接店舗までお問い合わせ下さい。
取扱店舗情報
| 電話番号 | 028-678-2888 |
|---|---|
| 所在地 | 〒320-0826 栃木県宇都宮市西原町466-1 |
| 営業時間 | 10:00~18:30 |
| 定休日 | 火曜日・水曜日 |
| 宅建免許番号 | 栃木県知事(2)第5075号 |
| アクセス | 店舗への地図はこちら |

来店ご予約
栃木県宇都宮市で価格が似ている物件はこちら
- 栃木県
マイページ物件数 - 5,233件
最近見た物件
-
-

-
- 新築一戸建て
- 3,398万円
-
糟屋郡久山町大字久原
-
JR篠栗線篠栗
-
-
-

-
- 中古一戸建て
- 3,980万円
-
交野市妙見東4丁目
-
JR片町線星田
-
-
-

-
- 中古一戸建て
- 2,580万円
-
北九州市八幡西区浅川学園台2丁目
-
JR筑豊本線本城
-
栃木県事業用・収益物件新着物件
-
-

-
- 収益
- 1,680万円
-
宇都宮市清原台3丁目
-
宇都宮芳賀ライト線ゆいの杜西駅
-
-
-

-
- 収益
- 2,050万円
-
宇都宮市上戸祭町
-
JR東北本線宇都宮駅
-
-
-

-
- 事業用
- 550万円
-
日光市川治温泉高原
-
野岩鉄道会津鬼怒川線川治湯元駅
-
-
-

-
- 収益
- 2,399万円
-
さくら市氏家
-
JR東北本線蒲須坂駅
-
-
-

-
- 事業用
- 300万円
-
足利市福富町
-
東武伊勢崎・大師線県駅
-
- お近くの店舗を探す
-
おすすめ物件
-
-

-
- 収益
- 1,600万円
-
宇都宮市下栗町
-
JR東北本線宇都宮
-


