松山市祝谷3丁目の土地
掲載情報更新日:2026年01月19日 次回更新予定日:2026年02月02日
- 1,240万円
-
- 借入ご希望金額
万円 - 借入期間
年 - 借入金利
% - 月々のお支払い金額
円
- 借入ご希望金額
※ 月々のお支払例は目安の試算となりますので、実際の金額とは異なる場合がございます。詳しくは店舗までお問合わせください。
- 松山市祝谷3丁目
-
伊予鉄道環状線『平和通一丁目』 徒歩14分 (約1120m)
『祝谷橋 バス停』 徒歩6分 (約480m)
松山市祝谷3丁目土地 | 物件情報
建築条件なし!お好きなハウスメーカーで建築していただけます♪
※マウスを乗せると画像が切り替わります。
建築条件なし!お好きなハウスメーカーで建築していただけます♪★不動産購入のご不安やお悩みは全て【ハウスドゥ松山北店】で解決!リフォーム・住宅ローンのご相談もお任せください!
物件の設備
- 電気
- 上水道
- 浄化槽
- プロパンガス
物件の特徴
- 南側道路面す
- 建築条件無
物件詳細情報
| 価格 | 1,240万円 | 坪単価 | 坪20.0万円 |
|---|---|---|---|
| 物件種別 | 土地 | ||
| 所在地 | 愛媛県松山市祝谷3丁目 | ||
| アクセス |
|
||
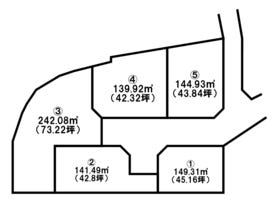
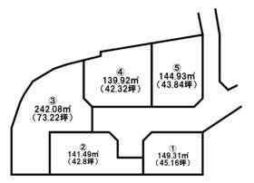
| 土地面積 | 公205.02㎡(62.01坪) | 接道 | 南側(私道)幅 約3.4m 間口 約2.00m |
| 私道 | セットバック | ||
| 最適用途 | 住宅用地 | 造成完了時期 | |
| 地目 | 宅地 | 地勢 | |
| 権利 | 所有権 |
||
| 都市計画 | 市街化区域 |
用途地域 | 1種中高 |
| 建ぺい/容積率 | 60% / 200% | 土地国土法 | |
| 許可番号 | 建築基準法 | ||
| 法令制限 | |||
| 小学区 | 湯築小学校 徒歩7分 (約500m) | 中学区 | 道後中学校 徒歩28分 (約2200m) |
| 現況 | 更地 | 引渡 | 相談(現況渡し) |
| 建築条件 | 建築条件なし | ||
| その他費用 | |||
| 周辺環境 | 湯築小学校 徒歩7分 (約500m) 道後中学校 徒歩28分 (約2200m) セブンイレブン 松山祝谷4丁目店 徒歩3分 (約240m) くすりのレデイ 道後樋又店 徒歩10分 (約750m) |
||
| 備考 | ※建築の際は、43条但し書き許可が必要になります。 | ||
| 物件番号 | 3557213 | 取引態様 | 媒介 |
取扱店舗情報
ハウスドゥ!松山北店 株式会社D'sエステート 店舗詳細ページへ
| 電話番号 | 089-925-2149 |
|---|---|
| 所在地 | 〒791-8013 愛媛県松山市山越6丁目2-21 |
| 営業時間 | 9:00~18:00 |
| 定休日 | 年末年始 |
| 宅建免許番号 | 愛媛県知事(4)第5043号 |
| アクセス | 店舗への地図はこちら |

来店ご予約
愛媛県松山市で価格が似ている物件はこちら
![]()
![]()
-
- 土地 2007.09.30
-
-
- 1,298万円
-
松山市祝谷東町
-
伊予鉄道城南線「道後温泉駅」まで徒歩18分
- 225.79m2
-
-
- 土地 2018.04.11
-
-
- 1,160万円
-
松山市堀江町
-
JR予讃線「堀江駅」まで徒歩19分
- 404.17m2
-
-
- 土地 2020.02.01
-
-
- 1,317万円
-
松山市余戸中2丁目
-
伊予鉄道郡中線「鎌田駅」まで徒歩4分
- 140.55m2
-
-
- 土地 2021.05.25
-
-
- 1,180万円
-
松山市紅葉町
-
伊予鉄道環状線「勝山町駅」まで徒歩15分
- 98.62m2
-
-
- 土地 2022.11.15
-
-
- 1,180万円
-
松山市吉藤2丁目
-
伊予鉄道環状線「木屋町駅」まで徒歩28分
- 150.84m2
-
-
- 土地 2023.05.17
-
-
- 1,150万円
-
松山市鴨川1丁目
-
伊予鉄道本町線「本町六丁目駅」まで徒歩30分
- 131.43m2
-
-
- 土地 2023.06.28
-
-
- 1,250万円
-
松山市清水町4丁目
-
伊予鉄道環状線「木屋町駅」まで徒歩8分
- 171.90m2
-
-
- 土地 2023.06.28
-
-
- 1,250万円
-
松山市清水町4丁目
-
伊予鉄道環状線「木屋町駅」まで徒歩8分
- 171.90m2
-
-
- 土地 2023.09.08
-
-
- 1,230万円
-
松山市高岡町
-
伊予鉄バス 高岡バス停まで徒歩8分
- 204.05m2
-
-
- 土地 2023.09.09
-
-
- 1,150万円
-
松山市山西町
-
伊予鉄道高浜線「山西駅」まで徒歩4分
- 164.25m2
-
-
- 土地 2023.09.29
-
-
- 1,180万円
-
松山市紅葉町
-
伊予鉄バス湯渡バス停まで徒歩2分
- 98.62m2
-
-
- 土地 2023.10.07
-
-
- 1,180万円
-
松山市余戸南4丁目
-
伊予鉄道郡中線「鎌田駅」まで徒歩3分
- 113.58m2
-
-
- 土地 2023.10.07
-
-
- 1,180万円
-
松山市余戸南4丁目
-
伊予鉄道郡中線「鎌田駅」まで徒歩3分
- 113.59m2
-
-
- 土地 2023.10.10
-
-
- 1,240万円
-
松山市祝谷2丁目
-
伊予鉄道城南線「道後温泉駅」まで徒歩9分
- 123.33m2
-
-
- 土地 2023.11.11
-
-
- 1,247万円
-
松山市北斎院町
-
伊予鉄道郡中線「土居田駅」まで車6分
- 133.05m2
-
-
- 土地 2023.11.19
-
-
- 1,199万円
-
松山市西垣生町
-
伊予鉄バス木材団地口まで徒歩5分
- 172.48m2
-
-
- 土地 2024.02.07
-
-
- 1,229万円
-
松山市南吉田町
-
南吉田東 バス停まで徒歩8分
- 135.47m2
-
-
- 土地 2024.02.14
-
-
- 1,200万円
-
松山市南吉田町
-
伊予鉄バス南吉田口バス停まで徒歩5分
- 156.36m2
-
-
- 土地 2024.02.14
-
-
- 1,298万円
-
松山市南吉田町
-
伊予鉄バス南吉田口バス停まで徒歩5分
- 171.76m2
-
-
- 土地 2024.02.16
-
-
- 1,200万円
-
松山市南吉田町
-
伊予鉄道郡中線「余戸駅」まで徒歩37分
- 156.36m2
-
-
- 土地 2024.02.16
-
-
- 1,298万円
-
松山市南吉田町
-
伊予鉄道郡中線「余戸駅」まで徒歩37分
- 171.76m2
-
-
- 土地 2024.02.17
-
-
- 1,286.01万円
-
松山市別府町
-
伊予鉄道高浜線「山西駅」まで徒歩19分
- 157.48m2
-
-
- 土地 2024.02.17
-
-
- 1,227.42万円
-
松山市別府町
-
伊予鉄道高浜線「山西駅」まで徒歩19分
- 150.31m2
-
-
- 土地 2024.02.17
-
-
- 1,226.07万円
-
松山市別府町
-
伊予鉄道高浜線「山西駅」まで徒歩19分
- 150.13m2
-
-
- 土地 2024.02.17
-
-
- 1,178.52万円
-
松山市別府町
-
伊予鉄道高浜線「山西駅」まで徒歩19分
- 139.17m2
-
-
- 土地 2024.03.10
-
-
- 1,200万円
-
松山市北斎院町
-
伊予鉄道高浜線「山西駅」まで徒歩26分
- 105.95m2
-
-
- 土地 2024.03.18
-
-
- 1,250万円
-
松山市山越1丁目
-
伊予鉄道環状線「本町六丁目駅」まで徒歩10分
- 134.53m2
-
-
- 土地 2024.03.18
-
-
- 1,250万円
-
松山市山越1丁目
-
伊予鉄道本町線「本町六丁目駅」まで徒歩9分
- 134.53m2
-
-
- 土地 2024.04.06
-
-
- 1,330万円
-
松山市北斎院町
-
伊予鉄道高浜線「山西駅」まで徒歩24分
- 134.48m2
-
-
- 土地 2024.04.06
-
-
- 1,220万円
-
松山市北斎院町
-
伊予鉄道高浜線「山西駅」まで徒歩24分
- 134.50m2
-
-
- 土地 2024.04.12
-
-
- 1,230万円
-
松山市平井町
-
伊予鉄道横河原線「平井駅」まで徒歩3分
- 138.65m2
-
-
- 土地 2024.05.23
-
-
- 1,240万円
-
松山市祝谷3丁目
-
伊予鉄道城南線「道後温泉駅」まで徒歩18分
- 205.02m2
-
-
- 土地 2024.05.30
-
-
- 1,199万円
-
松山市東長戸3丁目
-
JR予讃線「伊予和気駅」まで徒歩34分
- 183.71m2
-
-
- 土地 2024.07.23
-
-
- 1,300万円
-
松山市南斎院町
-
伊予鉄道高浜線「西衣山駅」まで徒歩37分
- 175.00m2
-
-
- 土地 2024.07.31
-
-
- 1,210万円
-
松山市東長戸1丁目
-
伊予鉄道本町線「本町六丁目駅」まで徒歩24分
- 134.42m2
-
-
- 土地 2024.08.02
-
-
- 1,300万円
-
松山市南斎院町
-
伊予鉄道高浜線「西衣山駅」まで徒歩37分
- 175.00m2
-
-
- 土地 2024.08.29
-
-
- 1,188.50万円
-
松山市神田町
-
伊予鉄道高浜線「三津駅」まで徒歩9分
- 157.18m2
-
-
- 土地 2024.08.29
-
-
- 1,237.75万円
-
松山市神田町
-
伊予鉄道高浜線「三津駅」まで徒歩9分
- 163.69m2
-
-
- 土地 2024.08.30
-
-
- 1,296万円
-
松山市北斎院町
-
伊予鉄道郡中線「土居田駅」まで徒歩35分
- 145.29m2
-
-
- 土地 2024.09.22
-
-
- 1,339万円
-
松山市松前町5丁目
-
伊予鉄道本町線「本町五丁目駅」まで徒歩2分
- 116.51m2
-
-
- 土地 2024.10.25
-
-
- 1,207.87万円
-
松山市北斎院町
-
伊予鉄道高浜線「西衣山駅」まで車8分
- 124.78m2
-
-
- 土地 2024.10.25
-
-
- 1,140.23万円
-
松山市北斎院町
-
伊予鉄道高浜線「西衣山駅」まで車8分
- 134.62m2
-
-
- 土地 2024.12.10
-
-
- 1,280万円
-
松山市高岡町
-
伊予鉄バス高岡公民館前まで徒歩2分
- 135.65m2
-
-
- 土地 2024.12.10
-
-
- 1,200万円
-
松山市高岡町
-
伊予鉄バス高岡公民館前まで徒歩2分
- 132.81m2
-
-
- 土地 2024.12.10
-
-
- 1,240万円
-
松山市高岡町
-
伊予鉄バス高岡公民館前まで徒歩2分
- 133.03m2
-
-
- 土地 2024.12.10
-
-
- 1,250万円
-
松山市東垣生町
-
伊予鉄バス東垣生まで徒歩11分
- 135.06m2
-
-
- 土地 2024.12.10
-
-
- 1,240万円
-
松山市東垣生町
-
伊予鉄バス東垣生まで徒歩11分
- 134.84m2
-
-
- 土地 2024.12.10
-
-
- 1,240万円
-
松山市東垣生町
-
伊予鉄バス東垣生まで徒歩11分
- 134.47m2
-
-
- 土地 2024.12.10
-
-
- 1,170万円
-
松山市東垣生町
-
伊予鉄バス東垣生まで徒歩11分
- 134.13m2
-
-
- 土地 2024.12.10
-
-
- 1,230万円
-
松山市東垣生町
-
伊予鉄バス東垣生まで徒歩11分
- 133.93m2
-
-
- 土地 2024.12.10
-
-
- 1,230万円
-
松山市東垣生町
-
伊予鉄バス東垣生まで徒歩11分
- 133.71m2
-
-
- 土地 2024.12.10
-
-
- 1,230万円
-
松山市東垣生町
-
伊予鉄バス東垣生まで徒歩11分
- 133.63m2
-
-
- 土地 2024.12.10
-
-
- 1,230万円
-
松山市東垣生町
-
伊予鉄バス東垣生まで徒歩11分
- 133.38m2
-
-
- 土地 2024.12.10
-
-
- 1,160万円
-
松山市東垣生町
-
伊予鉄バス東垣生まで徒歩11分
- 133.14m2
-
-
- 土地 2024.12.10
-
-
- 1,290万円
-
松山市東垣生町
-
伊予鉄バス東垣生まで徒歩11分
- 137.33m2
-
-
- 土地 2024.12.10
-
-
- 1,290万円
-
松山市東垣生町
-
伊予鉄バス東垣生まで徒歩11分
- 137.45m2
-
-
- 土地 2024.12.10
-
-
- 1,220万円
-
松山市東垣生町
-
伊予鉄バス東垣生まで徒歩11分
- 137.57m2
-
-
- 土地 2024.12.10
-
-
- 1,290万円
-
松山市東垣生町
-
伊予鉄バス東垣生まで徒歩11分
- 137.68m2
-
-
- 土地 2024.12.10
-
-
- 1,290万円
-
松山市東垣生町
-
伊予鉄バス東垣生まで徒歩11分
- 137.79m2
-
-
- 土地 2024.12.10
-
-
- 1,290万円
-
松山市東垣生町
-
伊予鉄バス東垣生まで徒歩11分
- 137.92m2
-
-
- 土地 2024.12.10
-
-
- 1,290万円
-
松山市東垣生町
-
伊予鉄バス東垣生まで徒歩11分
- 138.02m2
-
-
- 土地 2024.12.25
-
-
- 1,247万円
-
松山市北斎院町
-
JR予讃線「松山駅」まで徒歩25分
- 133.05m2
-
-
- 土地 2025.01.10
-
-
- 1,260万円
-
松山市北土居2丁目
-
伊予鉄バス乙井橋まで徒歩6分
- 132.46m2
-
-
- 土地 2025.01.16
-
-
- 1,247万円
-
松山市北斎院町
-
伊予鉄バス北斎院住宅前まで徒歩1分
- 133.05m2
-
-
- 土地 2025.01.31
-
-
- 1,200万円
-
松山市高岡町
-
生石小学校前 バス停まで徒歩2分
- 179.30m2
-
-
- 土地 2025.02.04
-
-
- 1,150万円
-
松山市石風呂町
-
伊予鉄道高浜線「港山駅」まで徒歩8分
- 148.26m2
-
-
- 土地 2025.02.11
-
-
- 1,300万円
-
松山市南斎院町
-
伊予鉄道高浜線「西衣山駅」まで徒歩26分
- 175.00m2
-
-
- 土地 2025.02.11
-
-
- 1,150万円
-
松山市山西町
-
伊予鉄道高浜線「山西駅」まで徒歩2分
- 207.05m2
-
-
- 土地 2025.02.26
-
-
- 1,151万円
-
松山市平田町
-
平田 バス停まで徒歩6分
- 165.49m2
-
-
- 土地 2025.02.26
-
-
- 1,335万円
-
松山市平田町
-
平田 バス停まで徒歩6分
- 176.62m2
-
-
- 土地 2025.02.26
-
-
- 1,338万円
-
松山市平田町
-
平田 バス停まで徒歩6分
- 177.02m2
-
-
- 土地 2025.03.15
-
-
- 1,240万円
-
松山市南斎院町
-
西衣山駅 バス停まで徒歩13分
- 195.67m2
-
-
- 土地 2025.03.25
-
-
- 1,265万円
-
松山市水泥町
-
伊予鉄道横河原線「平井駅」まで徒歩9分
- 168.44m2
-
-
- 土地 2025.04.10
-
-
- 1,250万円
-
松山市みどりケ丘
-
JR予讃線「三津浜駅」まで徒歩10分
- 153.94m2
-
-
- 土地 2025.05.09
-
-
- 1,200万円
-
松山市南吉田町
-
南吉田口 バス停まで徒歩5分
- 156.36m2
-
-
- 土地 2025.05.09
-
-
- 1,298万円
-
松山市南吉田町
-
南吉田口 バス停まで徒歩5分
- 171.76m2
-
-
- 土地 2025.07.15
-
-
- 1,235万円
-
松山市吉藤2丁目
-
伊予鉄道環状線「木屋町駅」まで車10分
- 140.82m2
-
-
- 土地 2025.08.27
-
-
- 1,290万円
-
松山市保免西2丁目
-
余土中学校前 バス停まで徒歩6分
- 115.42m2
-
-
- 土地 2025.09.08
-
-
- 1,312.50万円
-
松山市中村3丁目
-
伊予鉄道横河原線「いよ立花駅」まで徒歩10分
- 123.97m2
-
-
- 土地 2025.09.16
-
-
- 1,153万円
-
松山市南吉田町
-
伊予鉄道郡中線「鎌田駅」まで車8分
- 165.86m2
-
-
- 土地 2025.09.18
-
-
- 1,274万円
-
松山市北斎院町
-
高岡天神前まで徒歩10分
- 156.02m2
-
-
- 土地 2025.09.19
-
-
- 1,280万円
-
松山市北斎院町
-
伊予鉄道高浜線「山西駅」まで徒歩8分
- 127.66m2
-
-
- 土地 2025.09.20
-
-
- 1,298万円
-
松山市南吉田町
-
伊予鉄道郡中線「余戸駅」まで徒歩36分
- 171.76m2
-
-
- 土地 2025.09.28
-
-
- 1,153万円
-
松山市南吉田町
-
伊予鉄道郡中線「鎌田駅」まで徒歩37分
- 165.86m2
-
-
- 土地 2025.10.04
-
-
- 1,212万円
-
松山市東垣生町
-
伊予鉄道郡中線「鎌田駅」まで車5分
- 125.63m2
-
-
- 土地 2025.10.09
-
-
- 1,200万円
-
松山市ひばりケ丘
-
JR予讃線「三津浜駅」まで徒歩4分
- 200.59m2
-
-
- 土地 2025.10.12
-
-
- 1,140万円
-
松山市北斎院町
-
高岡天神前まで徒歩10分
- 134.62m2
-
-
- 土地 2025.10.20
-
-
- 1,281.30万円
-
松山市北斎院町
-
伊予鉄バス高岡天神前まで徒歩8分
- 141.20m2
-
-
- 土地 2025.11.08
-
-
- 1,150万円
-
松山市山西町
-
伊予鉄道高浜線「山西駅」まで徒歩3分
- 207.05m2
-
-
- 土地 2025.11.08
-
-
- 1,339万円
-
松山市松前町5丁目
-
伊予鉄道本町線「本町六丁目駅」まで徒歩5分
- 116.52m2
-
-
- 土地 2025.11.09
-
-
- 1,150万円
-
松山市山西町
-
伊予鉄道高浜線「山西駅」まで徒歩4分
- 164.25m2
-
-
- 土地 2025.11.09
-
-
- 1,312.50万円
-
松山市中村3丁目
-
伊予鉄道横河原線「いよ立花駅」まで徒歩9分
- 123.97m2
-
-
- 土地 2025.11.09
-
-
- 1,300万円
-
松山市南斎院町
-
高岡天神前まで徒歩3分
- 175.00m2
-
-
- 土地 2025.11.13
-
-
- 1,180.40万円
-
松山市西垣生町
-
伊予鉄バス三島神社前まで徒歩3分
- 195.11m2
-
-
- 土地 2025.11.13
-
-
- 1,174.50万円
-
松山市西垣生町
-
伊予鉄バス三島神社前まで徒歩3分
- 155.31m2
-
-
- 土地 2025.11.17
-
-
- 1,270万円
-
松山市衣山3丁目
-
伊予鉄道高浜線「衣山駅」まで徒歩6分
- 209.67m2
-
-
- 土地 2025.11.17
-
-
- 1,270万円
-
松山市衣山3丁目
-
伊予鉄道高浜線「衣山駅」まで徒歩7分
- 209.67m2
-
-
- 土地 2025.12.01
-
-
- 1,332万円
-
松山市清住1丁目
-
伊予鉄道高浜線「山西駅」まで徒歩9分
- 166.21m2
-
-
- 土地 2025.12.02
-
-
- 1,280万円
-
松山市三杉町
-
伊予鉄道高浜線「三津駅」まで徒歩4分
- 204.29m2
-
-
- 土地 2025.12.11
-
-
- 1,190万円
-
松山市北斎院町
-
伊予鉄道高浜線「山西駅」まで車5分
- 135.49m2
-
-
- 土地 2025.12.23
-
-
- 1,180万円
-
松山市平田町
-
JR予讃線「堀江駅」まで車6分
- 167.24m2
-
-
- 土地 2025.12.23
-
-
- 1,180万円
-
松山市平田町
-
JR予讃線「堀江駅」まで車6分
- 171.46m2
-
-
-
土地
2026.01.16
-
-
- 1,140万円
-
松山市北斎院町
-
伊予鉄道高浜線「山西駅」まで車7分
- 134.62m2
-
-
土地
2026.01.16
-
-
土地
2026.01.16
-
-
- 1,274万円
-
松山市北斎院町
-
伊予鉄道高浜線「山西駅」まで車7分
- 156.02m2
-
-
土地
2026.01.16
- 愛媛県
マイページ物件数 - 3,658件
愛媛県土地新着物件
- お近くの店舗を探す
-
おすすめ物件
-
-

-
- 土地
- 900万円
-
松山市三杉町
-
伊予鉄道高浜線三津
-
-
-

-
- 土地
- 930万円
-
松山市土居田町
-
伊予鉄道郡中線土居田
-
-
-

-
- 土地
- 1,070万円
-
伊予郡松前町大字北黒田
-
伊予鉄道郡中線地蔵町
-
-
-

-
- 土地
- 300万円
-
伊予市尾崎
-
JR予讃線伊予市
-
-
-

-
- 土地
- 790万円
-
伊予市上吾川
-
JR予讃線鳥ノ木
-
-
-

-
- 土地
- 1,800万円
-
松山市古三津1丁目
-
伊予鉄道高浜線山西
-
-
-

-
- 土地
- 780万円
-
松山市高浜町2丁目
-
伊予鉄道高浜線高浜
-
-
-

-
- 土地
- 1,380万円
-
松山市高岡町
-
伊予鉄道高浜線山西
-
-
-

-
- 土地
- 1,980万円
-
松山市土居田町
-
伊予鉄道郡中線土居田
-
-
-

-
- 土地
- 1,190万円
-
伊予郡松前町大字北川原
-
伊予鉄道郡中線松前
-



















担当エージェント:松岡 麻起子
弊社の強みは、スタッフが不動産業に誇りを持ち、お客様の立場に立ってライフプランに応じたご提案させていただくことです。我々のモットーは、皆様に“幸せ”を届けることを実現させることです。ご要望等ございましたらお気軽にお申し付けくださいませ。