名古屋市中川区打出1丁目 建築条件なし土地
掲載情報更新日:2025年12月13日 次回更新予定日:2025年12月27日
- 2,690万円
-
- 借入ご希望金額
万円 - 借入期間
年 - 借入金利
% - 月々のお支払い金額
円
- 借入ご希望金額
※ 月々のお支払例は目安の試算となりますので、実際の金額とは異なる場合がございます。詳しくは店舗までお問合わせください。
- 名古屋市中川区打出1丁目
-
名古屋市東山線『高畑』 徒歩14分 (約1120m)
近鉄名古屋線『伏屋』 徒歩24分 (約1920m)
名古屋市営バス『「打出町」停』 徒歩2分 (約160m)
名古屋市中川区打出1丁目 建築条件なし土地土地 | 物件情報
【2沿線利用可能で通勤・通学にも便利な立地です】解体後更地渡し◎
■接客評価コメント五つ星!ハウスドゥ 中川区八熊通野田■
\あれこれ不動産サイトを見なくても当店で解決/
当店はエリア内の物件の大半を最・新・情・報で掲載!
ほかのページで気になる物件もご相談ください。
◆野田小学校/一柳中学校
◆市営バス「打出町」停まで徒歩約2分
◆建築条件なしでお好きなハウスメーカーで建築可能
◆スーパーなどの生活施設が徒歩10分圏内に充実♪
※写真をクリックすると、詳細をご覧いただけます。
=========================
《お問合せからすぐご案内!》
見るだけOK、聞くだけOK。
実際に現地を体感してみてください。
=========================
物件の設備
- 電気
- 上水道
- 下水道
- 都市ガス
物件の特徴
- 2沿線利用可
- 前道6m以上
- スーパーが近い
- 平坦地
- 整形地
- 更地渡
- 建築条件無
物件詳細情報
| 価格 | 2,690万円 | 坪単価 | 坪62.7万円 |
|---|---|---|---|
| 物件種別 | 土地 | ||
| 所在地 | 愛知県名古屋市中川区打出1丁目 1号地 | ||
| アクセス |
|
||
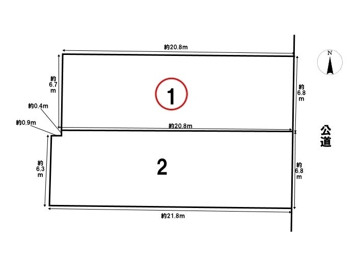
| 土地面積 | 141.72㎡(42.87坪) | 接道 | 東側(公道)幅 約10.8m 間口 約6.80m |
| 私道 | セットバック | 無 | |
| 最適用途 | 住宅用地 | 造成完了時期 | |
| 地目 | 宅地 | 地勢 | 平坦 |
| 権利 | 所有権 |
||
| 分譲情報 | |||
| 都市計画 | 市街化区域 |
用途地域 | 近隣商業(一部2種中高 含む) |
| 建ぺい/容積率 | 80%(一部60% 含む) / 200% | 土地国土法 | |
| 許可番号 | 建築基準法 | ||
| 法令制限 | 準防火地域・31m高度地区 | ||
| 小学区 | 荒子小学校 徒歩14分 (約1100m) | 中学区 | 一柳中学校 徒歩13分 (約1000m) |
| 現況 | 古家付 | 引渡 | 相談(更地渡し) |
| 建築条件 | 建築条件なし | ||
| その他費用 | |||
| 周辺環境 | 名古屋市立荒子小学校 徒歩14分 (約1100m) 名古屋市立一柳中学校 徒歩13分 (約1000m) うちなか幼稚園 徒歩10分 (約750m) 打出保育園 徒歩5分 (約370m) フィールアイアイプラザ 徒歩11分 (約870m) クスリのアオキ野田店 徒歩7分 (約550m) 西垣医院 徒歩2分 (約110m) 打出第一公園 徒歩5分 (約400m) セブンイレブン名古屋打中1丁目店 徒歩3分 (約220m) 名古屋中郷郵便局 徒歩5分 (約370m) |
||
| 備考 | ※北側隣地建物トタン一部越境の可能性あり※空家 ※引渡し条件:更地渡し(既存建物、ブロックあり) ※建物は解体して確定測量してお渡し ※工事完了予定日:2026年4月末 ・名古屋市立荒子小学校まで徒歩14分(約1100m) ・名古屋市立一柳中学校まで徒歩13分(約1000m) ・うちなか幼稚園まで徒歩10分(約750m) ・打出保育園まで徒歩5分(約370m) ・フィールアイアイプラザまで徒歩11分(約870m) ・クスリのアオキ野田店まで徒歩7分(約550m) ・西垣医院まで徒歩2分(約110m) ・打出第一公園まで徒歩5分(約400m) ・セブンイレブン名古屋打中1丁目店まで徒歩3分(約220m) ・名古屋中郷郵便局まで徒歩5分(約370m) |
||
| 物件番号 | 4057664 | 取引態様 | 媒介 |
取扱店舗情報
ハウスドゥ 中川区八熊通野田 ファミリアホームサービス株式会社 店舗詳細ページへ
| 電話番号 | 052-369-2100 |
|---|---|
| 所在地 | 〒454-0926 愛知県名古屋市中川区打出1丁目1 |
| 営業時間 | 10:00~18:00 |
| 定休日 | 水曜日・年末年始(水曜日が祝日の場合は営業) |
| 宅建免許番号 | 国土交通大臣(2)第9218号 |
| アクセス | 店舗への地図はこちら |

来店ご予約
愛知県名古屋市中川区で価格が似ている物件はこちら
- 愛知県
マイページ物件数 - 31,346件
最近見た物件
-
-

-
- 新築一戸建て
- 3,898万円
-
北九州市八幡西区星和町
-
JR筑豊本線本城
-
-
-

-
- 土地
- 2,300万円
-
宮崎市波島2丁目
-
波島1丁目
-
愛知県土地新着物件
-
-

-
- 土地
- 4,780万円
-
名古屋市千種区楠元町1丁目
-
名古屋市東山線本山駅
-
-
-

-
- 土地
- 2,080万円
-
稲沢市小池2丁目
-
JR東海道本線稲沢駅
-
-
-

-
- 土地
- 2,600万円
-
豊橋市三ノ輪町4丁目
-
豊橋鉄道東田本線豊橋公園前駅
-
-
-

-
- 土地
- 2,600万円
-
豊橋市三ノ輪町4丁目
-
豊橋鉄道東田本線豊橋公園前駅
-
-
-

-
- 土地
- 2,600万円
-
豊橋市三ノ輪町4丁目
-
豊橋鉄道東田本線豊橋公園前駅
-
-
-

-
- 土地
- 970万円
-
愛西市町方町大原
-
名鉄尾西線町方駅
-
-
-

-
- 土地
- 1,700万円
-
知多郡武豊町字迎戸
-
名鉄河和線知多武豊駅
-
- お近くの店舗を探す
-
おすすめ物件
-
-

-
- 土地
- 2,146万円
-
知多郡阿久比町大字阿久比字元荒古
-
名鉄河和線阿久比
-
-
-

-
- 土地
- 1,090万円
-
一宮市今伊勢町馬寄字大日
-
名鉄名古屋本線石刀
-
-
-

-
- 土地
- 1,999万円
-
清須市西枇杷島町上新
-
名鉄犬山線下小田井
-
-
-

-
- 土地
- 1,990万円
-
豊田市平戸橋町永和
-
名鉄三河線平戸橋
-
-
-

-
- 土地
- 678万円
-
北名古屋市二子栄和
-
名鉄犬山線西春
-
-
-

-
- 土地
- 1,990万円
-
名古屋市熱田区千年2丁目
-
名古屋市名城線熱田神宮伝馬町
-
-
-

-
- 土地
- 678万円
-
北名古屋市二子栄和
-
名鉄犬山線西春
-
-
-

-
- 土地
- 3,180万円
-
日進市岩崎町新ラ田
-
名鉄豊田線日進
-
-
-

-
- 土地
- 2,200万円
-
豊田市高町東山
-
名鉄三河線猿投
-
-
-

-
- 土地
- 3,420万円
-
富士宮市貴船町
-
JR身延線西富士宮
-








担当エージェント:森 謙弥
《平日もご案内可能です♪》
地域密着店の私達は、周辺環境、相場、
お得な住宅ローンプランなどご丁寧にご案内できます。