岡崎市中島中町1丁目の土地
掲載情報更新日:2025年11月10日 次回更新予定日:2025年11月24日
- 1,650万円
-
- 借入ご希望金額
万円 - 借入期間
年 - 借入金利
% - 月々のお支払い金額
円
- 借入ご希望金額
※ 月々のお支払例は目安の試算となりますので、実際の金額とは異なる場合がございます。詳しくは店舗までお問合わせください。
- 岡崎市中島中町1丁目
-
JR東海道本線『相見』 車12分(約5.9km)
JR東海道本線『岡崎』 車14分(約5.7km)
JR東海道本線『幸田』 車15分(約9.1km)
岡崎市中島中町1丁目土地 | 物件情報
【岡崎市中島中町の土地】家づくりがしやすい整形地!!
【周辺環境】
・クスリのアオキ中島中町店 徒歩5分
・ゲンキー中島上町店 徒歩8分
・デイリーヤマザキ 岡崎中島町店 徒歩14分
【オススメ】
・閑静な住宅街♪周辺環境充実!!
・平坦地&日当たり良好!
「ちょっと見てみたいだけ…」
「ローンの相談がしたい…」
というお問い合わせ大歓迎◎
お気軽にお問い合わせください!
当日案内OK、自己資金なしでもOK♪
お仕事終わりでのご案内もご相談下さい!
・JR東海道本線 相見駅 徒歩5分
・駐車場3台あり!
・キッズスペース完備!
「おうち探しはハウスドゥ幸田へ!」
物件の設備
- 公営水道
- 公共下水
- プロパンガス
物件の特徴
- 前道6m以上
- 建築条件無
物件詳細情報
| 価格 | 1,650万円 | 坪単価 | 坪48.3万円 |
|---|---|---|---|
| 物件種別 | 土地 | ||
| 所在地 | 愛知県岡崎市中島中町1丁目 | ||
| アクセス |
|
||
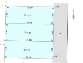
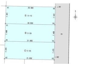
| 土地面積 | 公113㎡(34.18坪) | 接道 | 北西側(公道)幅 約7.4m 間口 約10.70m |
| 私道 | セットバック | ||
| 最適用途 | 造成完了時期 | ||
| 地目 | 宅地 | 地勢 | |
| 権利 | 所有権 |
||
| 都市計画 | 市街化区域 |
用途地域 | 2種住居 |
| 建ぺい/容積率 | 60% / 200% | 土地国土法 | |
| 許可番号 | 建築基準法 | ||
| 法令制限 | |||
| 小学区 | 六ツ美南部小学校 徒歩4分 (約260m) | 中学区 | 六ツ美中学校 徒歩35分 (約2800m) |
| 現況 | 更地 | 引渡 | 相談 |
| 建築条件 | 建築条件なし | ||
| その他費用 | |||
| 周辺環境 | 六ッ美南部小学校 徒歩3分 (約230m) ゲンキー中島上町店 徒歩6分 (約450m) 六ツ美郵便局 徒歩8分 (約570m) 志賀医院 徒歩9分 (約710m) ローソンストア100岡崎中島町店 徒歩11分 (約820m) 中島保育園 徒歩17分 (約1350m) マグフーズ中島店 徒歩19分 (約1470m) セブンイレブン岡崎中島店 徒歩24分 (約1890m) フェルナ中島店 徒歩25分 (約1980m) ファミリーマート 岡崎国正店 徒歩28分 (約2170m) |
||
| 備考 | |||
| 物件番号 | 4104993 | 取引態様 | 媒介 |
取扱店舗情報
| 電話番号 | 0564-73-1620 |
|---|---|
| 所在地 | 〒444-0117 愛知県額田郡幸田町大字相見字沖原69番地 アヴニール相見101号室 |
| 営業時間 | 9:00~18:00 |
| 定休日 | 水曜日 |
| 宅建免許番号 | 愛知県知事(1)第25500号 |
| アクセス | 店舗への地図はこちら |

来店ご予約
愛知県岡崎市で価格が似ている物件はこちら
- 愛知県
マイページ物件数 - 30,203件
最近見た物件
-
-

-
- 中古マンション
- 1,980万円
-
豊中市新千里南町2丁目
-
北大阪急行南北線桃山台
-
愛知県土地新着物件
-
-

-
- 土地
- 2,300万円
-
半田市堀崎町1丁目
-
名鉄河和線住吉町駅
-
-
-

-
- 土地
- 3,000万円
-
名古屋市緑区亀が洞3丁目
-
名古屋市桜通線徳重駅
-
-
-

-
- 土地
- 1,180万円
-
春日井市牛山町
-
名鉄小牧線牛山駅
-
-
-

-
- 土地
- 2,290万円
-
丹羽郡扶桑町大字斎藤字緑
-
名鉄犬山線柏森駅
-
-
-

-
- 土地
- 580万円
-
名古屋市中川区下之一色町字古川
-
近鉄名古屋線伏屋駅
-
-
-

-
- 土地
- 530万円
-
知多市八幡字西水代
-
名鉄常滑線寺本駅
-
-
-

-
- 土地
- 1,620万円
-
半田市柊町5丁目
-
名鉄河和線知多半田駅
-
- お近くの店舗を探す
-
おすすめ物件
-
-

-
- 土地
- 1,280万円
-
名古屋市中川区戸田ゆたか1丁目
-
近鉄名古屋線戸田
-
-
-

-
- 土地
- 1,098万円
-
稲沢市平和町須ケ脇
-
名鉄尾西線六輪
-
-
-

-
- 土地
- 5,000万円
-
豊田市豊栄町12丁目
-
愛知環状鉄道末野原
-
-
-

-
- 土地
- 1,990万円
-
豊田市平戸橋町永和
-
名鉄三河線平戸橋
-
-
-

-
- 土地
- 2,490万円
-
知立市昭和4丁目
-
名鉄名古屋本線牛田
-
-
-

-
- 土地
- 1,588万円
-
尾張旭市城山町三ツ池
-
名鉄瀬戸線尾張旭
-
-
-

-
- 土地
- 2,350万円
-
名古屋市中川区万町
-
名古屋臨海高速鉄道小本
-
-
-

-
- 土地
- 1,090万円
-
一宮市今伊勢町馬寄字大日
-
名鉄名古屋本線石刀
-
-
-

-
- 土地
- 980万円
-
半田市花園町4丁目
-
名鉄河和線青山
-
-
-

-
- 土地
- 1,100万円
-
知多郡阿久比町大字白沢字ミノカケ
-
名鉄河和線巽ヶ丘
-



