売土地 城下3丁目
掲載情報更新日:2026年01月04日 次回更新予定日:2026年01月18日
- 900万円
-
- 借入ご希望金額
万円 - 借入期間
年 - 借入金利
% - 月々のお支払い金額
円
- 借入ご希望金額
※ 月々のお支払例は目安の試算となりますので、実際の金額とは異なる場合がございます。詳しくは店舗までお問合わせください。
- 八戸市城下3丁目
-
市営バス『城下4丁目バス停』 徒歩6分 (約410m)
売土地 城下3丁目土地 | 物件情報
◎建築条件無し◎スーパーやコンビニなど生活利便性の高い土地です♪
※マウスを乗せると画像が切り替わります。
≪周辺環境≫
▽ローソン 八戸沼館1丁目店まで徒歩3分(約220m)
▽薬王堂 八戸城下店まで徒歩4分(約270m)
▽シンフォニープラザ沼館まで徒歩12分(約920m)
物件の見学をご希望の方は【見学予約する】
物件の詳細を知りたい方は【資料請求・お問合せ】よりお気軽にお問合せくださいませ♪
物件の特徴
- 小学校徒歩10分以内
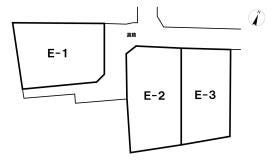
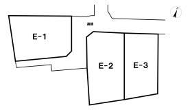
- 角地
- 更地渡
- 建築条件無
物件詳細情報
| 価格 | 900万円 | 坪単価 | 坪20.5万円 |
|---|---|---|---|
| 物件種別 | 土地 | ||
| 所在地 | 青森県八戸市城下3丁目 | ||
| アクセス |
|
||
| 土地面積 | 公145.45㎡(43.99坪) | 接道 | |
| 私道 | セットバック | ||
| 最適用途 | 造成完了時期 | ||
| 地目 | 宅地 | 地勢 | |
| 権利 | 所有権 |
||
| 都市計画 | 市街化区域 |
用途地域 | 準工業 |
| 建ぺい/容積率 | 60% / 200% | 土地国土法 | |
| 許可番号 | 建築基準法 | ||
| 法令制限 | |||
| 小学区 | 城下小学校 徒歩4分 (約290m) | 中学区 | 第二中学校 徒歩14分 (約1120m) |
| 現況 | 古家付 | 引渡 | 期日指定:2025年03月末以降(更地渡し) |
| 建築条件 | 建築条件なし | ||
| その他費用 | |||
| 周辺環境 | 八戸市立城下小学校 徒歩4分 (約290m) 八戸市立第二中学校 徒歩14分 (約1120m) 薬王堂 八戸城下店 徒歩4分 (約270m) 青森みちのく銀行 城下支店 徒歩5分 (約330m) まべち公園 徒歩5分 (約390m) ファミリーマート 八戸城下四丁目店 徒歩6分 (約450m) 城下保育園 徒歩10分 (約760m) 青森みちのく銀行 城下支店 徒歩11分 (約820m) シンフォニープラザ沼館 徒歩12分 (約920m) |
||
| 備考 | ※現況:古家付(コンテナ) ※更地渡し |
||
| 物件番号 | 4130001 | 取引態様 | 媒介 |
取扱店舗情報
ハウスドゥ 八戸市庁前 株式会社といず不動産 店舗詳細ページへ
| 電話番号 | 0178-32-7981 |
|---|---|
| 所在地 | 〒031-0075 青森県八戸市内丸3丁目1-39 |
| 営業時間 | 9:30~18:00 |
| 定休日 | 火曜日 |
| 宅建免許番号 | 青森県知事(3)第3406号 |
| アクセス | 店舗への地図はこちら |

来店ご予約
青森県八戸市で価格が似ている物件はこちら
![]()
![]()
-
- 土地 2017.12.23
-
-
- 1,000万円
-
八戸市大字田面木字田面木平
-
市営・南部バスニュータウン南バス停まで徒歩4分
- 8582.00m2
-
-
- 土地 2018.02.24
-
-
- 800万円
-
八戸市大字田面木字外久保
-
市営・南部バス高専前バス停まで徒歩1分
- 150.41m2
-
-
- 土地 2019.07.01
-
-
- 950万円
-
八戸市日計2丁目
-
市営・南部バス小田前バス停より徒歩まで徒歩7分
- 331.00m2
-
-
- 土地 2021.05.09
-
-
- 888万円
-
八戸市田向1丁目
-
市営・南部バス田向バス停まで徒歩5分
- 171.81m2
-
-
- 土地 2021.09.14
-
-
- 840万円
-
八戸市是川3丁目
-
南部バス是川団地バス停まで徒歩7分
- 455.00m2
-
-
- 土地 2021.09.15
-
-
- 840万円
-
八戸市是川3丁目
-
市営・南部バス是川団地バス停まで徒歩10分
- 455.00m2
-
-
- 土地 2022.06.30
-
-
- 840万円
-
八戸市是川3丁目
-
市営・南部バス是川団地バス停まで徒歩10分
- 455.00m2
-
-
- 土地 2022.07.02
-
-
- 800万円
-
八戸市大字田面木字外久保
-
市営・南部バス高専前バス停まで徒歩1分
- 150.41m2
-
-
- 土地 2022.07.14
-
-
- 880万円
-
八戸市大字新井田字丑鞍森
-
市営バス旭ケ丘西口バス停まで徒歩3分
- 327.63m2
-
-
- 土地 2022.07.14
-
-
- 880万円
-
八戸市大字新井田字丑鞍森
-
市営バス旭ケ丘西口バス停より徒歩まで徒歩3分
- 327.63m2
-
-
- 土地 2022.07.15
-
-
- 880万円
-
八戸市大字新井田字丑鞍森
-
市営バス旭ケ丘西口バス停より徒歩まで徒歩3分
- 327.63m2
-
-
- 土地 2022.08.07
-
-
- 870万円
-
八戸市湊高台1丁目
-
市営バス湊高台一丁目バス停まで徒歩4分
- 151.68m2
-
-
- 土地 2022.09.19
-
-
- 864万円
-
八戸市小中野7丁目
-
市営バス南横町バス停より徒歩まで徒歩3分
- 285.91m2
-
-
- 土地 2022.11.26
-
-
- 940万円
-
八戸市北白山台1丁目
-
市営・南部バス北白山台バス停より徒歩まで徒歩6分
- 200.20m2
-
-
- 土地 2022.12.08
-
-
- 907.20万円
-
八戸市諏訪2丁目
-
市営バス諏訪バス停まで徒歩8分
- 222.40m2
-
-
- 土地 2023.01.07
-
-
- 907.20万円
-
八戸市諏訪2丁目
-
市営バス諏訪バス停まで徒歩8分
- 222.40m2
-
-
- 土地 2023.03.26
-
-
- 980万円
-
八戸市大字尻内町字矢沢
-
JR東北新幹線「八戸駅」まで徒歩10分
- 218.00m2
-
-
- 土地 2023.03.26
-
-
- 980万円
-
八戸市大字尻内町字矢沢
-
JR東北新幹線「八戸駅」まで徒歩10分
- 218.00m2
-
-
- 土地 2023.03.29
-
-
- 870.48万円
-
八戸市南白山台2丁目
-
市営・南部バスニュータウン中央バス停まで徒歩6分
- 221.38m2
-
-
- 土地 2023.04.11
-
-
- 905万円
-
八戸市松ケ丘
-
市営・十鉄バス陸上自衛隊前バス停まで徒歩3分
- 299.39m2
-
-
- 土地 2023.04.11
-
-
- 907万円
-
八戸市松ケ丘
-
市営・十鉄バス陸上自衛隊前バス停まで徒歩3分
- 299.99m2
-
-
- 土地 2023.04.11
-
-
- 908万円
-
八戸市松ケ丘
-
市営・十鉄バス陸上自衛隊前バス停まで徒歩3分
- 300.26m2
-
-
- 土地 2023.04.11
-
-
- 907万円
-
八戸市松ケ丘
-
市営・十鉄バス陸上自衛隊前バス停まで徒歩3分
- 300.09m2
-
-
- 土地 2023.04.11
-
-
- 960万円
-
八戸市松ケ丘
-
市営・十鉄バス陸上自衛隊前バス停まで徒歩3分
- 288.78m2
-
-
- 土地 2023.04.15
-
-
- 870.48万円
-
八戸市南白山台2丁目
-
市営バスニュータウン中央バス停まで徒歩6分
- 221.38m2
-
-
- 土地 2023.05.20
-
-
- 980万円
-
八戸市大字尻内町字矢沢
-
JR東北新幹線「八戸駅」まで徒歩9分
- 218.00m2
-
-
- 土地 2023.05.21
-
-
- 920万円
-
八戸市下長1丁目
-
市営・南部バス石堂二丁目バス停まで徒歩4分
- 159.29m2
-
-
- 土地 2023.05.25
-
-
- 888万円
-
八戸市田向1丁目
-
市営・南部バス田向バス停まで徒歩5分
- 171.81m2
-
-
- 土地 2023.06.01
-
-
- 870万円
-
八戸市湊高台1丁目
-
市営バス湊高台一丁目バス停まで徒歩4分
- 151.68m2
-
-
- 土地 2023.06.02
-
-
- 1,000万円
-
八戸市大字田面木字田面木平
-
市営・南部バスニュータウン南バス停まで徒歩4分
- 8582.00m2
-
-
- 土地 2023.06.19
-
-
- 800万円
-
八戸市大字田面木字外久保
-
市営・南部バス高専前バス停まで徒歩1分
- 150.41m2
-
-
- 土地 2023.06.19
-
-
- 1,000万円
-
八戸市大字田面木字田面木平
-
市営・南部バスニュータウン南バス停まで徒歩4分
- 8582.00m2
-
-
- 土地 2023.07.02
-
-
- 845.78万円
-
八戸市大字尻内町字鴨ケ池
-
JR八戸線「八戸駅」まで徒歩12分
- 229.00m2
-
-
- 土地 2023.07.14
-
-
- 900万円
-
八戸市大字田面木字神明沢
-
市営・南部バス田面木バス停まで徒歩4分
- 361.82m2
-
-
- 土地 2023.07.15
-
-
- 900万円
-
八戸市大字田面木字神明沢
-
市営・南部バス田面木バス停まで徒歩4分
- 361.82m2
-
-
- 土地 2023.07.15
-
-
- 900万円
-
八戸市大字田面木字神明沢
-
市営・南部バス田面木バス停まで徒歩4分
- 361.82m2
-
-
- 土地 2023.08.16
-
-
- 800万円
-
八戸市大字妙字西平
-
市営・南部バス出口平バス停まで徒歩4分
- 927.00m2
-
-
- 土地 2023.08.16
-
-
- 800万円
-
八戸市大字妙字西平
-
市営・南部バス出口平バス停まで徒歩4分
- 927.00m2
-
-
- 土地 2023.08.17
-
-
- 800万円
-
八戸市大字妙字西平
-
市営・南部バス出口平バス停まで徒歩4分
- 927.00m2
-
-
- 土地 2023.09.17
-
-
- 998万円
-
八戸市売市1丁目
-
市営・南部バス新組町バス停まで徒歩3分
- 486.61m2
-
-
- 土地 2023.09.28
-
-
- 950万円
-
八戸市大字白銀町字八森
-
市営バス東ケ丘バス停まで徒歩6分
- 1668.00m2
-
-
- 土地 2023.11.10
-
-
- 980万円
-
八戸市大字新井田字木戸場
-
市営・南部バス新井田大橋バス停まで徒歩6分
- 417.04m2
-
-
- 土地 2023.11.11
-
-
- 990万円
-
八戸市根城2丁目
-
市営バス根城三丁目バス停まで徒歩3分
- 168.00m2
-
-
- 土地 2023.11.11
-
-
- 980万円
-
八戸市大字新井田字木戸場
-
市営・南部バス新井田大橋バス停まで徒歩6分
- 417.04m2
-
-
- 土地 2023.11.19
-
-
- 950万円
-
八戸市日計2丁目
-
市営・南部バス小田前バス停まで徒歩7分
- 331.00m2
-
-
- 土地 2023.11.19
-
-
- 845.78万円
-
八戸市大字尻内町字鴨ケ池
-
JR八戸線「八戸駅」まで徒歩12分
- 229.00m2
-
-
- 土地 2023.11.29
-
-
- 950万円
-
八戸市日計2丁目
-
市営・南部バス小田前バス停まで徒歩7分
- 331.00m2
-
-
- 土地 2023.12.04
-
-
- 918万円
-
八戸市大字尻内町字前河原
-
JR八戸線「八戸駅」まで徒歩22分
- 187.98m2
-
-
- 土地 2023.12.06
-
-
- 845.78万円
-
八戸市大字尻内町字鴨ケ池
-
JR八戸線「八戸駅」まで徒歩12分
- 229.00m2
-
-
- 土地 2023.12.12
-
-
- 980万円
-
八戸市大字新井田字木戸場
-
市営・南部バス新井田大橋バス停まで徒歩6分
- 417.04m2
-
-
- 土地 2023.12.28
-
-
- 830万円
-
八戸市大字是川字ウトウ
-
南部バス土橋入口バス停まで徒歩3分
- 914.00m2
-
-
- 土地 2024.03.05
-
-
- 990万円
-
八戸市大字田面木字上野平
-
JR八戸線「八戸駅」まで徒歩29分
- 712.00m2
-
-
- 土地 2024.03.14
-
-
- 895万円
-
八戸市大字尻内町字張田
-
JR八戸線「八戸駅」まで徒歩18分
- 197.24m2
-
-
- 土地 2024.04.30
-
-
- 984万円
-
八戸市大字尻内町字高田
-
市営・南部バス西高校前バス停まで徒歩5分
- 185.76m2
-
-
- 土地 2024.04.30
-
-
- 984万円
-
八戸市大字尻内町字高田
-
市営・南部バス西高校前バス停まで徒歩5分
- 185.73m2
-
-
- 土地 2024.07.15
-
-
- 950万円
-
八戸市柏崎6丁目
-
市営・南部・十鉄バス緑町バス停まで徒歩2分
- 152.30m2
-
-
- 土地 2024.08.18
-
-
- 989.92万円
-
八戸市大字尻内町字鴨ケ池
-
JR八戸線「八戸駅」まで徒歩12分
- 204.54m2
-
-
- 土地 2024.08.23
-
-
- 989.92万円
-
八戸市大字尻内町字鴨ケ池
-
JR八戸線「八戸駅」まで徒歩12分
- 204.54m2
-
-
- 土地 2024.09.01
-
-
- 960万円
-
八戸市大字尻内町字前河原
-
市営・南部バス青龍寺バス停まで徒歩12分
- 211.69m2
-
-
- 土地 2024.09.05
-
-
- 1,000万円
-
八戸市大字田向字檀ノ平
-
市営・南部バス間ノ田バス停まで徒歩6分
- 194.44m2
-
-
- 土地 2024.09.05
-
-
- 940万円
-
八戸市大字田向字檀ノ平
-
市営・南部バス間ノ田バス停まで徒歩6分
- 193.80m2
-
-
- 土地 2024.11.24
-
-
- 890万円
-
八戸市売市4丁目
-
市営・南部・十鉄バス緑ヶ丘バス停まで徒歩3分
- 167.88m2
-
-
- 土地 2024.11.24
-
-
- 850万円
-
八戸市売市4丁目
-
市営・南部・十鉄バス緑ヶ丘バス停まで徒歩3分
- 168.49m2
-
-
- 土地 2024.12.15
-
-
- 1,000万円
-
八戸市根城7丁目
-
市営バス根城七丁目バス停まで徒歩4分
- 583.00m2
-
-
- 土地 2025.01.21
-
-
- 900万円
-
八戸市城下3丁目
-
市営バス城下4丁目バス停まで徒歩6分
- 145.45m2
-
-
- 土地 2025.01.23
-
-
- 900万円
-
八戸市城下3丁目
-
市営バス城下4丁目バス停まで徒歩6分
- 145.45m2
-
-
- 土地 2025.02.01
-
-
- 907万円
-
八戸市大字河原木
-
JR八戸線「長苗代駅」まで徒歩19分
- 184.00m2
-
-
- 土地 2025.02.13
-
-
- 900万円
-
八戸市大字大久保字沢目
-
市営・南部バス大久保通バス停まで徒歩3分
- 912.20m2
-
-
- 土地 2025.02.14
-
-
- 900万円
-
八戸市大字大久保字沢目
-
市営・南部バス大久保通バス停まで徒歩3分
- 912.20m2
-
-
- 土地 2025.02.14
-
-
- 900万円
-
八戸市大字大久保字沢目
-
市営・南部バス大久保通バス停まで徒歩3分
- 912.20m2
-
-
- 土地 2025.03.08
-
-
- 915.60万円
-
八戸市大字糠塚字柳ノ下
-
市営・南部バス上大杉平バス停まで徒歩10分
- 252.24m2
-
-
- 土地 2025.03.08
-
-
- 987.50万円
-
八戸市大字糠塚字柳ノ下
-
市営・南部バス上大杉平バス停まで徒歩10分
- 261.16m2
-
-
- 土地 2025.03.10
-
-
- 815万円
-
八戸市大字尻内町字矢沢
-
JR東北新幹線「八戸駅」まで徒歩12分
- 168.62m2
-
-
- 土地 2025.04.03
-
-
- 815万円
-
八戸市大字尻内町字矢沢
-
JR東北新幹線「八戸駅」まで徒歩12分
- 168.62m2
-
-
- 土地 2025.05.12
-
-
- 800万円
-
八戸市大字河原木字久保
-
市営バス八戸基地バス停まで徒歩5分
- 265.00m2
-
-
- 土地 2025.05.18
-
-
- 800万円
-
八戸市大字河原木字久保
-
市営バス八戸基地バス停まで徒歩5分
- 265.00m2
-
-
- 土地 2025.05.22
-
-
- 800万円
-
八戸市大字河原木字久保
-
市営バス八戸基地バス停まで徒歩5分
- 265.00m2
-
-
- 土地 2025.05.25
-
-
- 825万円
-
八戸市南白山台3丁目
-
市営・南部バス南白山台バス停まで徒歩5分
- 242.20m2
-
-
- 土地 2025.05.25
-
-
- 870万円
-
八戸市南白山台3丁目
-
市営・南部バス南白山台バス停まで徒歩5分
- 240.60m2
-
-
- 土地 2025.06.02
-
-
- 950万円
-
八戸市大字鮫町字忍町
-
JR八戸線「鮫駅」まで徒歩1分
- 509.91m2
-
-
- 土地 2025.06.03
-
-
- 950万円
-
八戸市大字鮫町字忍町
-
JR八戸線「鮫駅」まで徒歩1分
- 509.91m2
-
-
- 土地 2025.06.04
-
-
- 800万円
-
八戸市小中野5丁目
-
市営・南部バス上左比代バス停まで徒歩3分
- 172.01m2
-
-
- 土地 2025.06.04
-
-
- 950万円
-
八戸市大字鮫町字忍町
-
JR八戸線「鮫駅」まで徒歩1分
- 509.91m2
-
-
- 土地 2025.06.04
-
-
- 800万円
-
八戸市小中野5丁目
-
市営・南部バス上左比代バス停まで徒歩3分
- 172.01m2
-
-
- 土地 2025.06.05
-
-
- 800万円
-
八戸市小中野5丁目
-
市営・南部バス上左比代バス停まで徒歩3分
- 172.01m2
-
-
- 土地 2025.06.09
-
-
- 890万円
-
八戸市大字田向字檀ノ平
-
市営・南部バス田向バス停まで徒歩5分
- 172.25m2
-
-
- 土地 2025.06.12
-
-
- 840万円
-
八戸市大字新井田字長塚森
-
市営バス旭ケ丘西口バス停まで徒歩3分
- 240.24m2
-
-
- 土地 2025.06.13
-
-
- 840万円
-
八戸市大字新井田字長塚森
-
市営バス旭ケ丘西口バス停まで徒歩3分
- 240.24m2
-
-
- 土地 2025.06.14
-
-
- 840万円
-
八戸市大字新井田字長塚森
-
市営バス旭ケ丘西口バス停まで徒歩3分
- 240.24m2
-
-
- 土地 2025.07.21
-
-
- 989.92万円
-
八戸市大字尻内町字鴨ケ池
-
JR八戸線「八戸駅」まで徒歩12分
- 204.54m2
-
-
- 土地 2025.08.17
-
-
- 930万円
-
八戸市西白山台2丁目
-
市営バス白山台中学校前バス停まで徒歩5分
- 247.57m2
-
-
- 土地 2025.09.19
-
-
- 900万円
-
八戸市大字中居林字雷
-
市営・南部バス春日町バス停まで徒歩7分
- 216.99m2
-
-
- 土地 2025.09.20
-
-
- 900万円
-
八戸市大字中居林字雷
-
市営・南部バス春日町バス停まで徒歩7分
- 216.99m2
-
-
- 土地 2025.09.21
-
-
- 900万円
-
八戸市大字中居林字雷
-
市営・南部バス春日町バス停まで徒歩7分
- 216.99m2
-
-
- 土地 2025.09.27
-
-
- 800万円
-
八戸市大字新井田字寺ノ上
-
市営バス重地バス停まで徒歩10分
- 369.90m2
-
-
- 土地 2025.09.29
-
-
- 800万円
-
八戸市大字新井田字寺ノ上
-
市営バス重地バス停まで徒歩10分
- 369.90m2
-
-
- 土地 2025.10.02
-
-
- 800万円
-
八戸市大字新井田字寺ノ上
-
市営バス重地バス停まで徒歩10分
- 369.90m2
-
-
- 土地 2025.11.15
-
-
- 850万円
-
八戸市大字尻内町字矢沢
-
JR八戸線「八戸駅」まで徒歩12分
- 167.74m2
-
-
- 土地 2025.11.15
-
-
- 816万円
-
八戸市大字尻内町字矢沢
-
JR八戸線「八戸駅」まで徒歩12分
- 170.00m2
-
-
- 土地 2025.11.29
-
-
- 1,000万円
-
八戸市大字田向字館越下
-
市営・南部バス田向バス停まで徒歩6分
- 1451.00m2
-
-
- 土地 2025.11.30
-
-
- 1,000万円
-
八戸市大字田向字館越下
-
市営・南部バス田向バス停まで徒歩6分
- 1451.00m2
-
-
- 土地 2025.11.30
-
-
- 1,000万円
-
八戸市大字田向字館越下
-
市営・南部バス田向バス停まで徒歩6分
- 1451.00m2
-
-
- 土地 2025.12.06
-
-
- 800万円
-
八戸市大字尻内町字尻内河原
-
JR八戸線「八戸駅」まで徒歩20分
- 331.11m2
-
-
- 土地 2025.12.06
-
-
- 800万円
-
八戸市大字尻内町字尻内河原
-
JR八戸線「八戸駅」まで徒歩20分
- 331.11m2
-
-
- 土地 2025.12.08
-
-
- 800万円
-
八戸市大字尻内町字尻内河原
-
JR八戸線「八戸駅」まで徒歩20分
- 331.11m2
-
-
-
土地
2025.12.20
-
-
- 800万円
-
八戸市大字新井田字外久保
-
市営バス旭ケ丘西口バス停まで徒歩7分
- 205.75m2
-
-
土地
2025.12.20
-
-
土地
2025.12.21
-
-
- 800万円
-
八戸市大字新井田字外久保
-
市営バス旭ケ丘西口バス停まで徒歩7分
- 205.75m2
-
-
土地
2025.12.21
-
-
土地
2025.12.26
-
-
- 800万円
-
八戸市大字新井田字外久保
-
市営バス旭ケ丘西口バス停まで徒歩7分
- 205.75m2
-
-
土地
2025.12.26
-
-
土地
2026.01.10
-
-
- 1,000万円
-
八戸市大字市川町字桔梗野
-
市営・十鉄バス桔梗野小学校通バス停まで徒歩6分
- 247.61m2
-
-
土地
2026.01.10
-
-
土地
2026.01.10
-
-
- 850万円
-
八戸市大字市川町字桔梗野
-
市営・十鉄バス桔梗野小学校通バス停まで徒歩6分
- 230.00m2
-
-
土地
2026.01.10
- 青森県
マイページ物件数 - 2,100件
最近見た物件
-
-

-
- 土地
- 898万円
-
一宮市浅井町大野字如来前
-
JR東海道本線尾張一宮
-
-
-

-
- 土地
- 798万円
-
岐阜市江崎南
-
JR東海道本線西岐阜
-
青森県土地新着物件
-
-

-
- 土地
- 200万円
-
八戸市大字糠塚字狐森
-
市営・南部バス長者中学校前バス停
-
-
-

-
- 土地
- 700万円
-
八戸市大字市川町字桔梗野
-
市営・十鉄バス桔梗野小学校通バス停
-
-
-

-
- 土地
- 850万円
-
八戸市大字市川町字桔梗野
-
市営・十鉄バス桔梗野小学校通バス停
-
-
-

-
- 土地
- 200万円
-
八戸市大字糠塚字狐森
-
市営・南部バス長者中学校前バス停
-
-
-

-
- 土地
- 1,000万円
-
八戸市大字市川町字桔梗野
-
市営・十鉄バス桔梗野小学校通バス停
-
-
-

-
- 土地
- 500万円
-
青森市千刈1丁目
-
JR奥羽本線青森駅
-
-
-

-
- 土地
- 1,625万円
-
八戸市大字新井田字石動木平
-
市営バス重地バス停
-
- お近くの店舗を探す
-
おすすめ物件
-
-

-
- 土地
- 750万円
-
青森市小柳3丁目
-
青い森鉄道小柳
-
-
-

-
- 土地
- 700万円
-
八戸市江陽5丁目
-
JR八戸線小中野
-
-
-

-
- 土地
- 1,260万円
-
八戸市城下2丁目
-
市営・南部バスデイリー東北新聞社前バス停
-
-
-

-
- 土地
- 960万円
-
青森市小柳3丁目
-
青い森鉄道小柳
-
-
-

-
- 土地
- 2,000万円
-
八戸市南類家2丁目
-
市営・南部バス田向バス停
-
-
-

-
- 土地
- 3,833万円
-
八戸市湊高台1丁目
-
市営バス湊高台1丁目バス停
-
-
-

-
- 土地
- 550万円
-
青森市大字新城字平岡
-
JR奥羽本線津軽新城
-
-
-

-
- 土地
- 180万円
-
三戸郡階上町蒼前西2丁目
-
コミュニティバスみうらクリニックバス停
-
-
-

-
- 土地
- 1,450万円
-
青森市橋本3丁目
-
JR奥羽本線青森
-
-
-

-
- 土地
- 490万円
-
青森市原別5丁目
-
青い森鉄道矢田前
-








◇◆◇ハウスドゥ 八戸市庁前 といず不動産◇◆◇
お客様にあった住宅ローン返済プラン&銀行住宅ローンをご提案!
ハウスドゥ 八戸市庁前へお気軽にお問い合わせください♪
■ご内覧ご希望の際は、平日・夜間・祝日問わずご対応致します!!
事前にご連絡を頂き、内覧予約頂く事で即対応可能です♪
■■■住宅ローンに関して■■■
現在お借入れのある方、就労一年未満の方、自己資金無しでお考えの方、
買換え・借換えの方、、etc
全てお気軽にご相談下さい!!
住宅ローンはお客様に最適の金融機関を選定する事により、条件が大きく変わります。
金利0.1%違うだけで総支払金額が大きく変わります。
返済プラン・返済シュミレーションもお気軽にご相談下さい♪
ご購入後の税金・住宅給付金に関しても全て細かくご説明させて頂きます!
融資承認実績へ自信あります!金利に関しても最善の優遇金利を!!
エージェントがお客様一人ひとりに合ったご提案をさせていただきます!
まずはお気軽にお問い合わせください!