上田市岩下の土地
掲載情報更新日:2026年01月31日 次回更新予定日:2026年02月14日
※ 月々のお支払例は目安の試算となりますので、実際の金額とは異なる場合がございます。詳しくは店舗までお問合わせください。
- 上田市岩下
-
しなの鉄道『信濃国分寺』 徒歩18分 (約1440m)
しなの鉄道『大屋』 徒歩18分 (約1440m)
- 取扱会社:ハウスドゥ 上田駅前 美し信州建設株式会社
-
-

- ■お電話はこちら
0268-71-5605
上田市岩下土地 | 物件情報
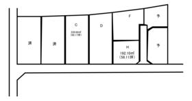
広々とした、全11区画の分譲地です。
【区画図】

【外観】
【外観】
- 取扱会社
ハウスドゥ 上田駅前
-
-
- ■お電話はこちら
0268-71-5605
国道へのアクセスが大変便利です♪
物件の特徴
物件詳細情報
| 価格 |
818万円 |
坪単価 |
坪12.0万円 |
| 物件種別 |
土地 |
| 所在地 |
長野県上田市岩下 ⑩号地 |
| アクセス |
- しなの鉄道『信濃国分寺』 徒歩18分 (約1440m)
- しなの鉄道『大屋』 徒歩18分 (約1440m)
|
| 土地面積 |
実224.69㎡(67.96坪) |
接道 |
南側(公道)幅 約4.0m
|
| 私道 |
|
セットバック |
|
| 最適用途 |
住宅用地 |
造成完了時期 |
|
| 地目 |
宅地 |
地勢 |
|
| 権利 |
所有権
|
| 分譲情報 |
【販売区画】:11区画 【価格】:708万円 ~868万円 【土地面積】:185.78㎡ ~373.10㎡
|
| 都市計画 |
非線引区域
|
用途地域 |
指定無 |
| 建ぺい/容積率 |
60%
/ 200%
|
土地国土法 |
|
| 許可番号 |
|
建築基準法 |
|
| 法令制限 |
|
| 小学区 |
神川小学校 徒歩13分 (約980m) |
中学区 |
第一中学校 徒歩31分 (約2450m) |
| 現況 |
更地 |
引渡 |
期日指定:2025年06月下旬以降(更地渡し) |
| 建築条件 |
建築条件なし |
| その他費用 |
|
| 周辺環境 |
ローソン 上田岩下店 徒歩5分 (約360m) 蒼久保簡易郵便局 徒歩10分 (約790m) 大屋幼稚園 徒歩13分 (約1020m) 神川小学校 徒歩13分 (約980m) セブンーイレブン 上田芳田店 徒歩15分 (約1160m) 信濃国分寺駅 徒歩16分 (約1270m) クスリのアオキ 大屋店 徒歩17分 (約1290m) セブンーイレブン 上田国分店 徒歩17分 (約1290m) 大屋駅 徒歩19分 (約1500m) DAISO上田大屋店 徒歩21分 (約1610m) |
| 備考 |
千曲川近くですが、令和元年の台風災害時にも被害がなかったエリアです。
※特定建築条件付売買予定地(お好きなハウスメーカーで建てられます。)
※別途上水道加入金・受益者負担金あり
価格:①738万円 ②868万円 ③798万円 ④758万円 ⑥868万円 ⑦728万円 ⑧778万円 ⑨728万円 ⑩818万円 ⑪708万円 |
| 物件番号 |
4263516 |
取引態様 |
媒介 |
取扱店舗情報
長野県上田市で価格が似ている物件はこちら


-
-
土地
2024.05.11
-
-
- 850万円
-
上田市中野
-
上田電鉄別所線「塩田町駅」まで徒歩6分
-
212.34m2

-
-
土地
2024.05.11
-
-
- 750万円
-
上田市中野
-
上田電鉄別所線「塩田町駅」まで徒歩6分
-
234.30m2

-
-
土地
2025.02.01
-
-
- 780万円
-
上田市常磐城
-
しなの鉄道「上田駅」まで徒歩38分
-
182.89m2

-
-
土地
2025.02.01
-
-
- 795万円
-
上田市常磐城
-
しなの鉄道「上田駅」まで徒歩38分
-
186.26m2

-
-
土地
2025.03.06
-
-
- 800万円
-
上田市蒼久保
-
しなの鉄道「信濃国分寺駅」まで徒歩18分
-
209.84m2

-
-
土地
2025.04.12
-
-
- 821万円
-
上田市中之条
-
上田電鉄別所線「赤坂上駅」まで徒歩14分
-
198.02m2

-
-
土地
2025.04.18
-
-
- 720万円
-
上田市諏訪形
-
上田電鉄別所線「三好町駅」まで徒歩13分
-
292.85m2

-
-
土地
2025.04.28
-

-
-
土地
2025.05.01
-
-
- 753.90万円
-
上田市住吉
-
JR北陸新幹線「上田駅」まで徒歩38分
-
184.56m2

-
-
土地
2025.05.01
-
-
- 800万円
-
上田市住吉
-
JR北陸新幹線「上田駅」まで徒歩60分
-
200.04m2

-
-
土地
2025.05.10
-
-
- 900万円
-
上田市五加
-
上田電鉄別所線「塩田町駅」まで徒歩7分
-
520.65m2

-
-
土地
2025.05.17
-
-
- 738万円
-
上田市岩下
-
しなの鉄道「信濃国分寺駅」まで徒歩18分
-
186.55m2

-
-
土地
2025.05.17
-
-
- 868万円
-
上田市岩下
-
しなの鉄道「信濃国分寺駅」まで徒歩18分
-
224.74m2

-
-
土地
2025.05.17
-
-
- 798万円
-
上田市岩下
-
しなの鉄道「信濃国分寺駅」まで徒歩18分
-
206.54m2

-
-
土地
2025.05.17
-
-
- 758万円
-
上田市岩下
-
しなの鉄道「信濃国分寺駅」まで徒歩18分
-
203.35m2

-
-
土地
2025.05.17
-
-
- 868万円
-
上田市岩下
-
しなの鉄道「信濃国分寺駅」まで徒歩18分
-
237.45m2

-
-
土地
2025.05.17
-
-
- 728万円
-
上田市岩下
-
しなの鉄道「信濃国分寺駅」まで徒歩18分
-
185.80m2

-
-
土地
2025.05.17
-
-
- 778万円
-
上田市岩下
-
しなの鉄道「信濃国分寺駅」まで徒歩18分
-
214.87m2

-
-
土地
2025.05.17
-
-
- 728万円
-
上田市岩下
-
しなの鉄道「信濃国分寺駅」まで徒歩18分
-
185.78m2

-
-
土地
2025.05.18
-
-
- 880万円
-
上田市諏訪形
-
上田電鉄別所線「城下駅」まで徒歩7分
-
244.20m2

-
-
土地
2025.05.22
-
-
- 776.20万円
-
上田市住吉
-
JR北陸新幹線「上田駅」まで徒歩38分
-
189.94m2

-
-
土地
2025.05.22
-
-
- 837万円
-
上田市住吉
-
JR北陸新幹線「上田駅」まで徒歩38分
-
191.40m2

-
-
土地
2025.05.22
-
-
- 826.40万円
-
上田市住吉
-
JR北陸新幹線「上田駅」まで徒歩38分
-
188.44m2

-
-
土地
2025.05.25
-
-
- 880万円
-
上田市上田
-
JR北陸新幹線「上田駅」まで徒歩27分
-
382.02m2

-
-
土地
2025.05.27
-

-
-
土地
2025.07.01
-
-
- 850万円
-
上田市国分
-
しなの鉄道「上田駅」まで徒歩36分
-
559.75m2

-
-
土地
2025.07.13
-
-
- 780万円
-
上田市上田
-
しなの鉄道「上田駅」まで徒歩32分
-
197.04m2

-
-
土地
2025.09.11
-
-
- 890万円
-
上田市中之条
-
上田電鉄別所線「赤坂上駅」まで徒歩17分
-
248.58m2

-
-
土地
2025.10.25
-
-
- 798万円
-
上田市五加
-
上田電鉄別所線「中塩田駅」まで徒歩5分
-
229.56m2

-
-
土地
2025.10.25
-
-
- 804万円
-
上田市五加
-
上田電鉄別所線「中塩田駅」まで徒歩5分
-
231.34m2

-
-
土地
2025.10.28
-
-
- 732.10万円
-
上田市五加
-
上田電鉄別所線「中塩田駅」まで徒歩10分
-
220.26m2

-
-
土地
2025.10.28
-
-
- 884.50万円
-
上田市本郷
-
上田電鉄別所線「中塩田駅」まで徒歩7分
-
243.92m2

-
-
土地
2025.11.01
-
-
- 860万円
-
上田市五加
-
上田電鉄別所線「中塩田駅」まで徒歩6分
-
239.52m2

-
-
土地
2025.11.27
-
-
- 766万円
-
上田市中野
-
上田電鉄別所線「中野駅」まで徒歩5分
-
230.24m2

-
-
土地
2025.12.04
-
-
- 850万円
-
上田市本郷
-
上田電鉄別所線「塩田町駅」まで徒歩4分
-
399.71m2

長野県上田市の
土地
一覧から探す
長野県上田市で種別を変更して探す
キッズスペースあります♪ 小さなお客様大歓迎(*'ω'*)
中国語対応可能。 水曜日固定休。