岡崎市二軒屋町1丁目の土地
掲載情報更新日:2026年04月24日 次回更新予定日:2026年05月08日
- 1,490万円
-
- 借入ご希望金額
万円 - 借入期間
年 - 借入金利
% - 月々のお支払い金額
円
- 借入ご希望金額
※ 月々のお支払例は目安の試算となりますので、実際の金額とは異なる場合がございます。詳しくは店舗までお問合わせください。
- 岡崎市二軒屋町1丁目
-
JR東海道本線『相見』 車10分(約km)
名鉄東部交通バス『「井ノ上」停』 徒歩5分 (約400m)
岡崎市二軒屋町1丁目土地 | 物件情報
物件の設備
- 電気
- 上水道
- 下水道
- 都市ガス
物件の特徴
- 小学校徒歩10分以内
- 前道6m以上
- 閑静な住宅街
- 陽当り良好
- 平坦地
- 更地渡
- 建築条件無
物件詳細情報
| 価格 | 1,490万円 | 坪単価 | 坪31.4万円 |
|---|---|---|---|
| 物件種別 | 土地 | ||
| 所在地 | 愛知県岡崎市二軒屋町1丁目 C区画 | ||
| アクセス |
|
||
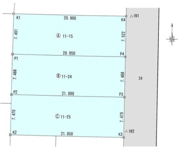
| 土地面積 | 157.06㎡(47.51坪) | 接道 | 東側(公道)幅 約6.0m 間口 約7.47m |
| 私道 | セットバック | ||
| 最適用途 | 造成完了時期 | ||
| 地目 | 宅地 | 地勢 | |
| 権利 | 所有権 |
||
| 分譲情報 | 【販売区画】:3区画 |
||
| 都市計画 | 市街化区域 |
用途地域 | 1種中高 |
| 建ぺい/容積率 | 60% / 200% | 土地国土法 | |
| 許可番号 | 建築基準法 | ||
| 法令制限 | |||
| 小学区 | 六ツ美南部小学校 徒歩6分 (約450m) | 中学区 | 六ツ美中学校 徒歩37分 (約2900m) |
| 現況 | 古家付 | 引渡 | 相談(更地渡し) |
| 建築条件 | 建築条件なし | ||
| その他費用 | |||
| 周辺環境 | 六ツ美南部小学校 徒歩6分 (約450m) 六ツ美中学校 徒歩37分 (約2900m) 六ツ美南保育園 徒歩6分 (約450m) フェルナ福岡店 徒歩24分 (約1900m) クスリのアオキ 中島中町店 徒歩10分 (約750m) ゲンキー 中島上町店 徒歩14分 (約1100m) デイリーヤマザキ 中島店 徒歩19分 (約1500m) ローソンストア100 岡崎中島町店 徒歩19分 (約1500m) 村山医院 徒歩7分 (約550m) 六ツ美郵便局 徒歩3分 (約210m) |
||
| 備考 | |||
| 物件番号 | 4286169 | 取引態様 | 媒介 |
取扱店舗情報
| 電話番号 | 0564-57-1366 |
|---|---|
| 所在地 | 〒444-0830 愛知県岡崎市柱西1丁目7-5 |
| 営業時間 | 9:00-18:00 |
| 定休日 | 水曜日 |
| 宅建免許番号 | 国土交通大臣(1)第10568号 |
| アクセス | 店舗への地図はこちら |

来店ご予約
愛知県岡崎市で価格が似ている物件はこちら
- 愛知県
マイページ物件数 - 32,417件
最近見た物件
-
-

-
- 土地
- 350万円
-
鹿児島市下伊敷2丁目
-
玉里団地北口バス停
-
-
-

-
- 土地
- 1,200万円
-
福山市高西町川尻
-
JR山陽本線東尾道
-
-
-

-
- 中古一戸建て
- 2,300万円
-
鹿児島市玉里町
-
玉里公民館前バス停
-
愛知県土地新着物件
-
-

-
- 土地
- 2,700万円
-
名古屋市南区戸部町2丁目
-
名鉄名古屋本線本笠寺駅
-
-
-

-
- 土地
- 3,600万円
-
名古屋市南区戸部町2丁目
-
名鉄名古屋本線本笠寺駅
-
-
-

-
- 土地
- 4,990万円
-
一宮市大和町馬引字郷丑寅
-
JR東海道本線尾張一宮駅
-
-
-

-
- 土地
- 2,298万円
-
一宮市南出町
-
名鉄尾西線西一宮駅
-
-
-

-
- 土地
- 2,380万円
-
長久手市東田
-
愛知高速東部丘陵線公園西駅
-
-
-

-
- 土地
- 2,530万円
-
長久手市東田
-
愛知高速東部丘陵線公園西駅
-
-
-

-
- 土地
- 2,280万円
-
名古屋市緑区鳴海町字姥子山
-
名鉄名古屋本線有松駅
-
- お近くの店舗を探す
-
おすすめ物件
-
-

-
- 土地
- 300万円
-
一宮市千秋町塩尻字南出
-
名鉄犬山線岩倉
-
-
-

-
- 土地
- 950万円
-
知多郡東浦町大字緒川字鰻池
-
名鉄河和線巽ヶ丘
-
-
-

-
- 土地
- 1,050万円
-
小牧市大字池之内
-
名鉄小牧線小牧原
-
-
-

-
- 土地
- 1,498万円
-
稲沢市北島町神明前
-
名鉄名古屋本線奥田
-
-
-

-
- 土地
- 5,000万円
-
豊田市豊栄町12丁目
-
愛知環状鉄道末野原
-
-
-

-
- 土地
- 2,200万円
-
東海市荒尾町赤羽根
-
名鉄常滑線聚楽園
-
-
-

-
- 土地
- 820万円
-
愛西市下東川町中山
-
名鉄尾西線丸渕
-
-
-

-
- 土地
- 2,040万円
-
名古屋市港区小碓1丁目
-
名古屋臨海高速鉄道港北
-
-
-

-
- 土地
- 800万円
-
犬山市字山崎西
-
名鉄小牧線楽田
-
-
-

-
- 土地
- 980万円
-
稲沢市田代2丁目
-
名鉄津島線青塚
-


