船橋市大穴北4丁目の土地
掲載情報更新日:2026年02月20日 次回更新予定日:2026年03月06日
- 1,980万円
-
- 借入ご希望金額
万円 - 借入期間
年 - 借入金利
% - 月々のお支払い金額
円
- 借入ご希望金額
※ 月々のお支払例は目安の試算となりますので、実際の金額とは異なる場合がございます。詳しくは店舗までお問合わせください。
- 船橋市大穴北4丁目
-
京成電鉄松戸線『三咲』 徒歩25分 (約1970m)
船橋市大穴北4丁目土地 | 物件情報
◎建築条件なし!お好きなハウスメーカーで建築できます ◎整形地・敷地約107坪
物件の設備
- 公営水道
- 公共下水
- 都市ガス
物件の特徴
- 整形地
- 建築条件無
物件詳細情報
| 価格 | 1,980万円 | 坪単価 | 坪18.4万円 |
|---|---|---|---|
| 物件種別 | 土地 | ||
| 所在地 | 千葉県船橋市大穴北4丁目5-11 | ||
| アクセス |
|
||
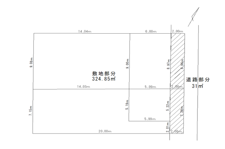
| 土地面積 | 355.85㎡(107.64坪) | 接道 | 北東側(私道)幅 約4.0m |
| 私道 | セットバック | ||
| 最適用途 | 造成完了時期 | ||
| 地目 | 宅地 | 地勢 | |
| 権利 | 所有権 |
||
| 都市計画 | 市街化区域 |
用途地域 | 1種低層 |
| 建ぺい/容積率 | 50% / 100% | 土地国土法 | |
| 許可番号 | 建築基準法 | ||
| 法令制限 | 景観法・法22条区域 | ||
| 小学区 | 大穴北小学校 徒歩16分 (約1230m) | 中学区 | 大穴中学校 徒歩25分 (約1960m) |
| 現況 | 古家付 | 引渡 | 相談 |
| 建築条件 | 建築条件なし | ||
| その他費用 | |||
| 備考 | ◎建築条件なし!お好きなハウスメーカーで建築できます ◎整形地・敷地約107坪 |
||
| 物件番号 | 4294901 | 取引態様 | 媒介 |
取扱店舗情報
ハウスドゥ 東習志野 株式会社Delta company 店舗詳細ページへ
| 電話番号 | 047-411-6912 |
|---|---|
| 所在地 | 〒275-0001 千葉県習志野市東習志野5丁目19-17 宮澤マンションC号室 |
| 営業時間 | 平日9:30~18:30 土日祝日8:30~17:30 |
| 定休日 | 水曜日 |
| 宅建免許番号 | 千葉県知事(1)第18367号 |
| アクセス | 店舗への地図はこちら |

来店ご予約
千葉県船橋市で価格が似ている物件はこちら
- 千葉県
マイページ物件数 - 2,144件
最近見た物件
-
-

-
- 土地
- 1,562.70万円
-
岐阜市柳津町下佐波7丁目
-
名鉄竹鼻・羽島線南宿
-
-
-

-
- 土地
- 1,600万円
-
札幌市豊平区西岡二条4丁目
-
札幌市南北線南平岸
-
-
-

-
- 土地
- 2,850万円
-
豊田市小坂町8丁目
-
愛知環状鉄道新豊田
-
千葉県土地新着物件
- お近くの店舗を探す
-



















□当社は住宅ローンに『自信』があります。是非一度ご相談下さい□
「他社で断られた」 「頭金が無いからな」
「他の返済があるからな」
住宅ローンがご不安な方もお気軽にご相談下さい♪
親身にご相談させていただき、お客様に最適な金融機関をご紹介いたします。
◇頭金0円からのご購入可能(諸費用もOK)
◇他の物件も見てみたい!などお気軽にお申し付け下さい♪
■現地案内会
平日のご見学もお電話1本で駆けつけます。
047-411-6912までお電話下さい。
■ご案内方法
ご来店できないお客様は、ご自宅への送迎やご指定の場所で待ち合わせてご案内。ご希望に合わせ周辺情報もご案内!
■キッズスペース
お子様が退屈しないようDVD、ぬりえ、おもちゃなどをご用意していますので安心してご来店ください。
■専用駐車場
お客様専用駐車場完備!お気軽にご来店お待ちいたしております。
■売却査定買取
仲介による売却はもちろん、ご近所に知られたくない、急いで売却したいときには高額査定で買取します!!
地元密着の情報量とフットワークの良さでお手伝いさせて頂きます。