川口市大字安行領根岸の土地
掲載情報更新日:2025年12月17日 次回更新予定日:2025年12月31日
- 780万円
-
- 借入ご希望金額
万円 - 借入期間
年 - 借入金利
% - 月々のお支払い金額
円
- 借入ご希望金額
※ 月々のお支払例は目安の試算となりますので、実際の金額とは異なる場合がございます。詳しくは店舗までお問合わせください。
- 川口市大字安行領根岸
-
埼玉高速鉄道『新井宿』 徒歩30分 (約2330m)
川口市大字安行領根岸土地 | 物件情報
物件の特徴
- 建築条件無
物件詳細情報
| 価格 | 780万円 | 坪単価 | 坪36.7万円 |
|---|---|---|---|
| 物件種別 | 土地 | ||
| 所在地 | 埼玉県川口市大字安行領根岸 | ||
| アクセス |
|
||
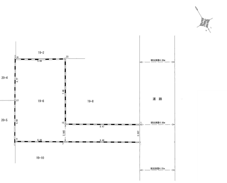
| 土地面積 | 公70.28㎡(21.25坪) | 接道 | |
| 私道 | セットバック | ||
| 最適用途 | 造成完了時期 | ||
| 地目 | 宅地 | 地勢 | |
| 権利 | 所有権 |
||
| 都市計画 | 市街化区域 |
用途地域 | 2種中高 |
| 建ぺい/容積率 | 60% / 160% | 土地国土法 | |
| 許可番号 | 建築基準法 | ||
| 法令制限 | |||
| 小学区 | 中学区 | ||
| 現況 | 古家付 | 引渡 | 相談 |
| 建築条件 | 建築条件なし | ||
| その他費用 | |||
| 備考 | |||
| 物件番号 | 4299839 | 取引態様 | 媒介 |
取扱店舗情報
ハウスドゥ 鳩ヶ谷坂下町 株式会社ウェルカムホーム 店舗詳細ページへ
| 電話番号 | 048-242-5180 |
|---|---|
| 所在地 | 〒334-0003 埼玉県川口市坂下町3丁目32-21 |
| 営業時間 | 9:00~18:00 |
| 定休日 | 火曜日、水曜日、年末年始 |
| 宅建免許番号 | 埼玉県知事(1)第25389号 |
| アクセス | 店舗への地図はこちら |

来店ご予約
埼玉県川口市で価格が似ている物件はこちら
- 埼玉県
マイページ物件数 - 3,188件
埼玉県土地新着物件
- お近くの店舗を探す
-
おすすめ物件
-
-

-
- 土地
- 1,980万円
-
さいたま市見沼区堀崎町
-
東武野田線大和田
-
-
-

-
- 土地
- 850万円
-
北足立郡伊奈町栄5丁目
-
湘南新宿ライン宇須蓮田
-
-
-

-
- 土地
- 3,590万円
-
さいたま市北区本郷町
-
埼玉新都市交通今羽
-
-
-

-
- 土地
- 1,600万円
-
さいたま市見沼区大字小深作
-
東武野田線七里
-
-
-

-
- 土地
- 2,590万円
-
上尾市大字小泉
-
JR高崎線上尾
-
-
-

-
- 土地
- 2,400万円
-
川越市広栄町
-
東武東上線川越
-
-
-

-
- 土地
- 3,090万円
-
蓮田市椿山1丁目
-
JR東北本線蓮田
-
-
-

-
- 土地
- 780万円
-
加須市馬内
-
東武伊勢崎・大師線加須
-
-
-

-
- 土地
- 2,285万円
-
さいたま市北区別所町
-
JR高崎線宮原
-
-
-

-
- 土地
- 3,380万円
-
さいたま市見沼区大字小深作
-
東武野田線七里
-











