豊橋市北山町の土地
掲載情報更新日:2025年10月21日 次回更新予定日:2025年11月04日
- 1,790万円
-
- 借入ご希望金額
万円 - 借入期間
年 - 借入金利
% - 月々のお支払い金額
円
- 借入ご希望金額
※ 月々のお支払例は目安の試算となりますので、実際の金額とは異なる場合がございます。詳しくは店舗までお問合わせください。
- 豊橋市北山町
-
豊橋鉄道渥美線『南栄』 徒歩18分 (約1400m)
豊橋鉄道渥美線『愛知大学前』 徒歩18分 (約1400m)
JR東海道本線『豊橋』 車14分(約4.1km)
豊橋市北山町土地 | 物件情報
\豊橋市北山町 売土地/ 家を売るのも買うのもハウスドゥ豊橋藤沢・向山・岩田にお任せください♪
◎整形地!
◎周辺環境良好!生活便利♪
『 全国700店舗展開のハウスドゥ 』だから、紹介物件数が多い!
全国のネットワークを駆使したトータルサポートで、住宅ローンに強い!交渉力がある!サービスも負けません♪
オプション工事も自社一環で承りますので、お客様のご負担が軽くて安心です☆
■各種ご相談
●住宅ローン相談
・自営業の方
・他不動産屋で断られた方
・現在、他の借入のある方
・リフォーム、太陽光相談 等々
住まいに関することは何でもご相談ください!!
■キッズスペース
小さなお子様も退屈しないよう、
おもちゃとDVDがたくさんあるキッズスペースをご用意しております☆
■無人タッチパネル物件検索
「ゆっくり見たい」「たくさん見たい」「営業の人がいると探しづらい」「ちょっと見たいだけなんだよなー」
というお客様にも安心して物件をご覧いただけるよう、タッチパネルを設置しております。
タッチパネルではネットでは見られない物件などすべての物件をご覧いただけます。
物件の設備
- 上水道
- 下水道
物件の特徴
- 整形地
- 更地渡
- 建築条件無
物件詳細情報
| 価格 | 1,790万円 | 坪単価 | 坪44.7万円 |
|---|---|---|---|
| 物件種別 | 土地 | ||
| 所在地 | 愛知県豊橋市北山町 1号棟 | ||
| アクセス |
|
||
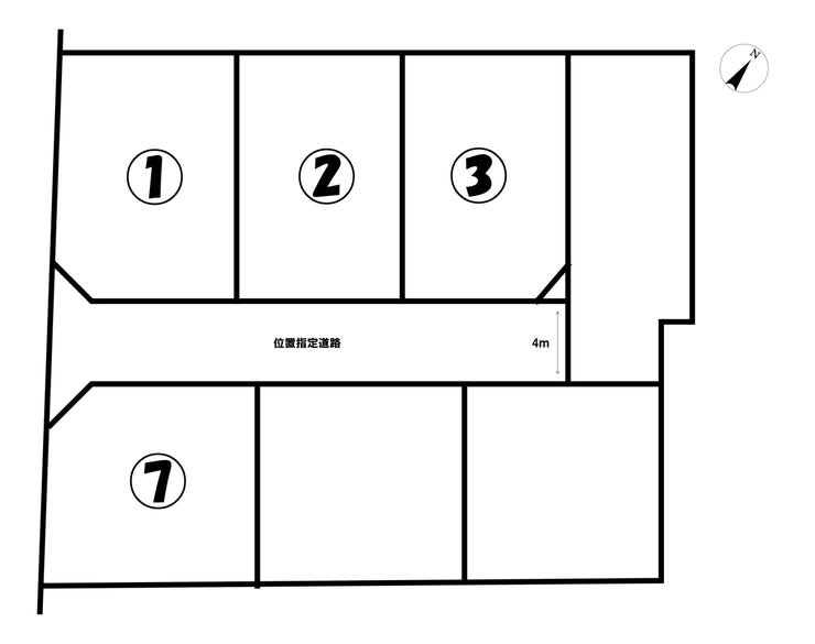
| 土地面積 | 実132.31㎡(40.02坪) | 接道 | 南西側(公道)幅 約4.5m 間口 約11.23m 南東側(私道)幅 約4.0m 間口 約8.28m |
| 私道 | セットバック | ||
| 最適用途 | 住宅用地 | 造成完了時期 | |
| 地目 | 宅地 | 地勢 | |
| 権利 | 所有権 |
||
| 分譲情報 | |||
| 都市計画 | 市街化区域 |
用途地域 | 1種中高 |
| 建ぺい/容積率 | 60% / 200% | 土地国土法 | |
| 許可番号 | 建築基準法 | ||
| 法令制限 | |||
| 小学区 | 栄小学校 徒歩13分 (約1040m) | 中学区 | 南部中学校 徒歩15分 (約1150m) |
| 現況 | 更地 | 引渡 | 相談(更地渡し) |
| 建築条件 | 建築条件なし | ||
| その他費用 | |||
| 周辺環境 | 栄小学校 徒歩13分 (約1040m) 南部中学校 徒歩15分 (約1150m) ジュンレディースクリニック 徒歩3分 (約220m) スギ薬局 豊橋牧野店 徒歩3分 (約170m) フードショップコロナ 牧野店 徒歩8分 (約570m) Vドラッグ 豊橋牧野店 徒歩7分 (約530m) こばとこども園 徒歩7分 (約560m) 竜ヶ池公園 徒歩10分 (約730m) ゲンキー 牧野店 徒歩10分 (約750m) クスリのアオキ 山田三番町店 徒歩9分 (約700m) |
||
| 備考 | ※1号地・2号地・3号地・7号地のみ土地販売中 ※4号地・5号地・6号地は建売又は賃貸になります。 ※位置指定道路あり:南東4m |
||
| 物件番号 | 4305062 | 取引態様 | 媒介 |
取扱店舗情報
ハウスドゥ 豊橋向山 株式会社夢のおてつだい 店舗詳細ページへ
| 電話番号 | 0532-64-1555 |
|---|---|
| 所在地 | 〒440-0858 愛知県豊橋市つつじが丘1-8-14 |
| 営業時間 | 9:00~18:00 |
| 定休日 | 水曜日・年末年始 |
| 宅建免許番号 | 国土交通大臣(2)第9405号 |
| アクセス | 店舗への地図はこちら |

来店ご予約
愛知県豊橋市で価格が似ている物件はこちら
![]()
![]()
-
- 土地 2020.02.03
-
-
- 1,800万円
-
豊橋市下地町字四ツ屋
-
JR飯田線「下地駅」まで徒歩10分
- 273.23m2
-
-
- 土地 2021.04.11
-
-
- 1,700万円
-
豊橋市多米中町4丁目
-
豊橋鉄道東田本線「赤岩口駅」まで徒歩19分
- 223.67m2
-
-
- 土地 2021.06.21
-
-
- 1,800万円
-
豊橋市下地町字四ツ屋
-
JR飯田線「下地駅」まで徒歩10分
- 273.23m2
-
-
- 土地 2022.04.10
-
-
- 1,880万円
-
豊橋市曲尺手町
-
豊橋鉄道東田本線「豊橋公園前駅」まで徒歩3分
- 154.94m2
-
-
- 土地 2022.04.10
-
-
- 1,880万円
-
豊橋市曲尺手町
-
豊橋鉄道東田本線「豊橋公園前駅」まで徒歩3分
- 154.94m2
-
-
- 土地 2022.10.06
-
-
- 1,880万円
-
豊橋市曲尺手町
-
豊橋鉄道東田本線「豊橋公園前駅」まで徒歩3分
- 154.94m2
-
-
- 土地 2022.10.06
-
-
- 1,800万円
-
豊橋市下地町字四ツ屋
-
JR飯田線「下地駅」まで徒歩10分
- 273.23m2
-
-
- 土地 2023.04.22
-
-
- 1,700万円
-
豊橋市東岩田4丁目
-
豊橋鉄道東田本線「運動公園前駅」まで徒歩19分
- 169.18m2
-
-
- 土地 2023.04.22
-
-
- 1,700万円
-
豊橋市東岩田4丁目
-
豊橋鉄道東田本線「運動公園前駅」まで徒歩19分
- 169.18m2
-
-
- 土地 2023.04.22
-
-
- 1,700万円
-
豊橋市東岩田4丁目
-
豊橋鉄道東田本線「運動公園前駅」まで徒歩19分
- 169.18m2
-
-
- 土地 2023.07.13
-
-
- 1,720万円
-
豊橋市平川町
-
豊橋鉄道東田本線「井原駅」まで徒歩2分
- 135.53m2
-
-
- 土地 2023.07.13
-
-
- 1,720万円
-
豊橋市平川町
-
豊橋鉄道東田本線「井原駅」まで徒歩2分
- 135.53m2
-
-
- 土地 2023.07.13
-
-
- 1,720万円
-
豊橋市平川町
-
豊橋鉄道東田本線「井原駅」まで徒歩2分
- 135.53m2
-
-
- 土地 2023.07.25
-
-
- 1,880万円
-
豊橋市西岩田1丁目
-
豊橋鉄道東田本線「運動公園前駅」まで徒歩10分
- 194.66m2
-
-
- 土地 2023.07.25
-
-
- 1,880万円
-
豊橋市西岩田1丁目
-
豊橋鉄道東田本線「運動公園前駅」まで徒歩10分
- 194.66m2
-
-
- 土地 2023.10.20
-
-
- 1,842万円
-
豊橋市牟呂町字大塚
-
JR東海道本線「豊橋駅」バス乗車17分 バス停「豊鉄バス「西部団地」」まで徒歩7分
- 160.32m2
-
-
- 土地 2023.10.20
-
-
- 1,842万円
-
豊橋市牟呂町字大塚
-
JR東海道本線「豊橋駅」バス乗車17分 バス停「豊鉄バス「西部団地」」まで徒歩7分
- 160.32m2
-
-
- 土地 2023.10.20
-
-
- 1,842万円
-
豊橋市牟呂町字大塚
-
JR東海道本線「豊橋駅」バス乗車17分 バス停「豊鉄バス「西部団地」」まで徒歩7分
- 160.32m2
-
-
- 土地 2023.11.21
-
-
- 1,840万円
-
豊橋市牛川町字西側
-
豊橋鉄道東田本線「東田坂上駅」まで徒歩25分
- 264.50m2
-
-
- 土地 2023.11.21
-
-
- 1,735万円
-
豊橋市牛川町字西側
-
豊橋鉄道東田本線「東田坂上駅」まで徒歩25分
- 249.46m2
-
-
- 土地 2024.01.14
-
-
- 1,840万円
-
豊橋市牛川町字西側
-
豊橋鉄道東田本線「東田坂上駅」まで徒歩25分
- 264.50m2
-
-
- 土地 2024.01.14
-
-
- 1,735万円
-
豊橋市牛川町字西側
-
豊橋鉄道東田本線「東田坂上駅」まで徒歩25分
- 249.46m2
-
-
- 土地 2024.01.14
-
-
- 1,840万円
-
豊橋市牛川町字西側
-
豊橋鉄道東田本線「東田坂上駅」まで徒歩25分
- 264.50m2
-
-
- 土地 2024.03.23
-
-
- 1,728.06万円
-
豊橋市曲尺手町
-
豊橋鉄道東田本線「豊橋公園前駅」まで徒歩2分
- 114.74m2
-
-
- 土地 2024.03.23
-
-
- 1,728.06万円
-
豊橋市曲尺手町
-
豊橋鉄道東田本線「豊橋公園前駅」まで徒歩2分
- 114.74m2
-
-
- 土地 2024.03.23
-
-
- 1,728.06万円
-
豊橋市曲尺手町
-
豊橋鉄道東田本線「豊橋公園前駅」まで徒歩2分
- 114.74m2
-
-
- 土地 2024.05.01
-
-
- 1,798万円
-
豊橋市つつじが丘2丁目
-
豊橋鉄道渥美線「小池駅」まで徒歩17分
- 198.66m2
-
-
- 土地 2024.05.01
-
-
- 1,798万円
-
豊橋市つつじが丘2丁目
-
豊橋鉄道渥美線「小池駅」まで徒歩17分
- 182.31m2
-
-
- 土地 2024.05.01
-
-
- 1,798万円
-
豊橋市つつじが丘2丁目
-
豊橋鉄道渥美線「小池駅」まで徒歩17分
- 181.60m2
-
-
- 土地 2024.05.30
-
-
- 1,798万円
-
豊橋市つつじが丘2丁目
-
豊橋鉄道渥美線「小池駅」まで徒歩17分
- 198.66m2
-
-
- 土地 2024.05.30
-
-
- 1,798万円
-
豊橋市つつじが丘2丁目
-
豊橋鉄道渥美線「小池駅」まで徒歩17分
- 198.66m2
-
-
- 土地 2024.05.30
-
-
- 1,798万円
-
豊橋市つつじが丘2丁目
-
豊橋鉄道渥美線「小池駅」まで徒歩17分
- 198.66m2
-
-
- 土地 2024.05.30
-
-
- 1,798万円
-
豊橋市つつじが丘2丁目
-
豊橋鉄道渥美線「小池駅」まで徒歩17分
- 182.31m2
-
-
- 土地 2024.05.30
-
-
- 1,798万円
-
豊橋市つつじが丘2丁目
-
豊橋鉄道渥美線「小池駅」まで徒歩17分
- 182.31m2
-
-
- 土地 2024.05.30
-
-
- 1,798万円
-
豊橋市つつじが丘2丁目
-
豊橋鉄道渥美線「小池駅」まで徒歩17分
- 182.31m2
-
-
- 土地 2024.05.30
-
-
- 1,798万円
-
豊橋市つつじが丘2丁目
-
豊橋鉄道渥美線「小池駅」まで徒歩17分
- 181.60m2
-
-
- 土地 2024.05.30
-
-
- 1,798万円
-
豊橋市つつじが丘2丁目
-
豊橋鉄道渥美線「小池駅」まで徒歩17分
- 181.60m2
-
-
- 土地 2024.05.30
-
-
- 1,798万円
-
豊橋市つつじが丘2丁目
-
豊橋鉄道渥美線「小池駅」まで徒歩17分
- 181.60m2
-
-
- 土地 2024.06.27
-
-
- 1,779.60万円
-
豊橋市牟呂町字大塚
-
豊橋鉄道渥美線「愛知大学前駅」まで徒歩25分
- 181.69m2
-
-
- 土地 2024.06.27
-
-
- 1,779.60万円
-
豊橋市牟呂町字大塚
-
豊橋鉄道渥美線「愛知大学前駅」まで徒歩25分
- 181.70m2
-
-
- 土地 2024.06.27
-
-
- 1,779.30万円
-
豊橋市牟呂町字大塚
-
豊橋鉄道渥美線「愛知大学前駅」まで徒歩25分
- 181.68m2
-
-
- 土地 2024.06.27
-
-
- 1,889.50万円
-
豊橋市牟呂町字大塚
-
豊橋鉄道渥美線「愛知大学前駅」まで徒歩25分
- 181.70m2
-
-
- 土地 2024.06.27
-
-
- 1,889.50万円
-
豊橋市牟呂町字大塚
-
豊橋鉄道渥美線「愛知大学前駅」まで徒歩25分
- 181.69m2
-
-
- 土地 2024.06.27
-
-
- 1,779.60万円
-
豊橋市牟呂町字大塚
-
豊橋鉄道渥美線「愛知大学前駅」まで徒歩25分
- 181.69m2
-
-
- 土地 2024.06.27
-
-
- 1,779.60万円
-
豊橋市牟呂町字大塚
-
豊橋鉄道渥美線「愛知大学前駅」まで徒歩25分
- 181.69m2
-
-
- 土地 2024.06.27
-
-
- 1,779.60万円
-
豊橋市牟呂町字大塚
-
豊橋鉄道渥美線「愛知大学前駅」まで徒歩25分
- 181.70m2
-
-
- 土地 2024.06.27
-
-
- 1,779.60万円
-
豊橋市牟呂町字大塚
-
豊橋鉄道渥美線「愛知大学前駅」まで徒歩25分
- 181.70m2
-
-
- 土地 2024.06.27
-
-
- 1,779.30万円
-
豊橋市牟呂町字大塚
-
豊橋鉄道渥美線「愛知大学前駅」まで徒歩25分
- 181.68m2
-
-
- 土地 2024.06.27
-
-
- 1,779.30万円
-
豊橋市牟呂町字大塚
-
豊橋鉄道渥美線「愛知大学前駅」まで徒歩25分
- 181.68m2
-
-
- 土地 2024.06.27
-
-
- 1,889.50万円
-
豊橋市牟呂町字大塚
-
豊橋鉄道渥美線「愛知大学前駅」まで徒歩25分
- 181.70m2
-
-
- 土地 2024.06.27
-
-
- 1,889.50万円
-
豊橋市牟呂町字大塚
-
豊橋鉄道渥美線「愛知大学前駅」まで徒歩25分
- 181.70m2
-
-
- 土地 2024.06.27
-
-
- 1,889.50万円
-
豊橋市牟呂町字大塚
-
豊橋鉄道渥美線「愛知大学前駅」まで徒歩25分
- 181.69m2
-
-
- 土地 2024.06.27
-
-
- 1,889.50万円
-
豊橋市牟呂町字大塚
-
豊橋鉄道渥美線「愛知大学前駅」まで徒歩25分
- 181.69m2
-
-
- 土地 2024.07.09
-
-
- 1,750万円
-
豊橋市柳生町
-
豊橋鉄道渥美線「柳生橋駅」まで徒歩4分
- 236.43m2
-
-
- 土地 2024.07.09
-
-
- 1,750万円
-
豊橋市柳生町
-
豊橋鉄道渥美線「柳生橋駅」まで徒歩4分
- 236.43m2
-
-
- 土地 2024.07.09
-
-
- 1,750万円
-
豊橋市柳生町
-
豊橋鉄道渥美線「柳生橋駅」まで徒歩4分
- 313.24m2
-
-
- 土地 2024.07.09
-
-
- 1,750万円
-
豊橋市柳生町
-
豊橋鉄道渥美線「柳生橋駅」まで徒歩4分
- 313.24m2
-
-
- 土地 2024.08.08
-
-
- 1,735万円
-
豊橋市牛川町字西側
-
豊橋鉄道東田本線「東田坂上駅」まで徒歩25分
- 249.46m2
-
-
- 土地 2024.09.19
-
-
- 1,750万円
-
豊橋市老松町
-
豊橋鉄道東田本線「東田坂上駅」まで徒歩5分
- 238.93m2
-
-
- 土地 2024.09.19
-
-
- 1,830万円
-
豊橋市老松町
-
豊橋鉄道東田本線「東田坂上駅」まで徒歩5分
- 182.53m2
-
-
- 土地 2024.09.19
-
-
- 1,750万円
-
豊橋市老松町
-
豊橋鉄道東田本線「東田坂上駅」まで徒歩5分
- 238.93m2
-
-
- 土地 2024.09.19
-
-
- 1,830万円
-
豊橋市老松町
-
豊橋鉄道東田本線「東田坂上駅」まで徒歩5分
- 182.53m2
-
-
- 土地 2024.09.19
-
-
- 1,750万円
-
豊橋市老松町
-
豊橋鉄道東田本線「東田坂上駅」まで徒歩5分
- 238.93m2
-
-
- 土地 2024.09.19
-
-
- 1,830万円
-
豊橋市老松町
-
豊橋鉄道東田本線「東田坂上駅」まで徒歩5分
- 182.53m2
-
-
- 土地 2024.10.03
-
-
- 1,750万円
-
豊橋市高師本郷町字東上
-
豊橋鉄道渥美線「芦原駅」まで徒歩22分
- 311.00m2
-
-
- 土地 2024.10.07
-
-
- 1,750万円
-
豊橋市高師本郷町字東上
-
豊橋鉄道渥美線「芦原駅」まで徒歩22分
- 311.00m2
-
-
- 土地 2024.10.07
-
-
- 1,750万円
-
豊橋市高師本郷町字東上
-
豊橋鉄道渥美線「芦原駅」まで徒歩22分
- 311.00m2
-
-
- 土地 2025.01.16
-
-
- 1,750万円
-
豊橋市三ノ輪町5丁目
-
豊橋鉄道東田本線「運動公園前駅」まで徒歩20分
- 188.32m2
-
-
- 土地 2025.01.20
-
-
- 1,690万円
-
豊橋市南大清水町字藤ケ谷
-
豊橋鉄道渥美線「大清水駅」まで徒歩22分
- 219.08m2
-
-
- 土地 2025.01.20
-
-
- 1,690万円
-
豊橋市南大清水町字藤ケ谷
-
豊橋鉄道渥美線「大清水駅」まで徒歩22分
- 219.08m2
-
-
- 土地 2025.01.20
-
-
- 1,690万円
-
豊橋市南大清水町字藤ケ谷
-
豊橋鉄道渥美線「大清水駅」まで徒歩22分
- 219.08m2
-
-
- 土地 2025.01.27
-
-
- 1,750万円
-
豊橋市富士見台2丁目
-
豊鉄バス「小学校西」停まで徒歩2分
- 231.47m2
-
-
- 土地 2025.01.27
-
-
- 1,750万円
-
豊橋市富士見台2丁目
-
豊鉄バス「小学校西」停まで徒歩2分
- 231.47m2
-
-
- 土地 2025.01.27
-
-
- 1,750万円
-
豊橋市富士見台2丁目
-
豊鉄バス「小学校西」停まで徒歩2分
- 231.47m2
-
-
- 土地 2025.03.02
-
-
- 1,698万円
-
豊橋市東脇3丁目
-
JR東海道本線「豊橋駅」まで徒歩18分
- 159.00m2
-
-
- 土地 2025.03.08
-
-
- 1,698万円
-
豊橋市東脇3丁目
-
JR東海道本線「豊橋駅」まで徒歩18分
- 159.00m2
-
-
- 土地 2025.03.08
-
-
- 1,698万円
-
豊橋市東脇3丁目
-
JR東海道本線「豊橋駅」まで徒歩18分
- 159.00m2
-
-
- 土地 2025.04.06
-
-
- 1,880.20万円
-
豊橋市忠興2丁目
-
豊鉄バス「忠興」停 まで徒歩1分
- 222.00m2
-
-
- 土地 2025.04.06
-
-
- 1,880.20万円
-
豊橋市忠興2丁目
-
豊鉄バス「忠興」停 まで徒歩1分
- 222.00m2
-
-
- 土地 2025.04.06
-
-
- 1,880.20万円
-
豊橋市忠興2丁目
-
豊鉄バス「忠興」停 まで徒歩1分
- 222.00m2
-
-
- 土地 2025.04.21
-
-
- 1,880万円
-
豊橋市つつじが丘3丁目
-
豊橋鉄道渥美線「小池駅」まで徒歩23分
- 158.66m2
-
-
- 土地 2025.04.21
-
-
- 1,880万円
-
豊橋市つつじが丘3丁目
-
豊橋鉄道渥美線「小池駅」まで徒歩23分
- 158.66m2
-
-
- 土地 2025.04.21
-
-
- 1,880万円
-
豊橋市つつじが丘3丁目
-
豊橋鉄道渥美線「小池駅」まで徒歩23分
- 158.66m2
-
-
- 土地 2025.05.11
-
-
- 1,880万円
-
豊橋市西岩田1丁目
-
豊橋鉄道東田本線「運動公園前駅」まで徒歩10分
- 194.66m2
-
-
- 土地 2025.05.30
-
-
- 1,833万円
-
豊橋市忠興2丁目
-
豊橋鉄道東田本線「赤岩口駅」まで徒歩25分
- 303.00m2
-
-
- 土地 2025.05.30
-
-
- 1,833万円
-
豊橋市忠興2丁目
-
豊橋鉄道東田本線「赤岩口駅」まで徒歩25分
- 303.00m2
-
-
- 土地 2025.05.30
-
-
- 1,833万円
-
豊橋市忠興2丁目
-
豊橋鉄道東田本線「赤岩口駅」まで徒歩25分
- 303.00m2
-
-
- 土地 2025.06.06
-
-
- 1,695万円
-
豊橋市牟呂町字内田
-
JR東海道本線「豊橋駅」まで徒歩36分
- 165.30m2
-
-
- 土地 2025.06.06
-
-
- 1,695万円
-
豊橋市牟呂町字内田
-
JR東海道本線「豊橋駅」まで徒歩36分
- 165.30m2
-
-
- 土地 2025.06.06
-
-
- 1,695万円
-
豊橋市牟呂町字内田
-
JR東海道本線「豊橋駅」まで徒歩36分
- 165.30m2
-
-
- 土地 2025.06.06
-
-
- 1,695万円
-
豊橋市牟呂町字内田
-
JR東海道本線「豊橋駅」まで徒歩36分
- 165.30m2
-
-
- 土地 2025.06.06
-
-
- 1,695万円
-
豊橋市牟呂町字内田
-
JR東海道本線「豊橋駅」まで徒歩36分
- 165.30m2
-
-
- 土地 2025.06.06
-
-
- 1,695万円
-
豊橋市牟呂町字内田
-
JR東海道本線「豊橋駅」まで徒歩36分
- 165.30m2
-
-
- 土地 2025.06.16
-
-
- 1,710万円
-
豊橋市飯村北5丁目
-
豊橋鉄道東田本線「運動公園前駅」まで徒歩28分
- 188.17m2
-
-
- 土地 2025.06.17
-
-
- 1,790万円
-
豊橋市北山町
-
豊橋鉄道渥美線「南栄駅」まで徒歩18分
- 132.31m2
-
-
- 土地 2025.06.17
-
-
- 1,690万円
-
豊橋市北山町
-
豊橋鉄道渥美線「南栄駅」まで徒歩18分
- 130.47m2
-
-
- 土地 2025.06.17
-
-
- 1,790万円
-
豊橋市北山町
-
豊橋鉄道渥美線「南栄駅」まで徒歩18分
- 132.31m2
-
-
- 土地 2025.06.17
-
-
- 1,690万円
-
豊橋市北山町
-
豊橋鉄道渥美線「南栄駅」まで徒歩18分
- 130.47m2
-
-
- 土地 2025.06.17
-
-
- 1,690万円
-
豊橋市北山町
-
豊橋鉄道渥美線「南栄駅」まで徒歩18分
- 130.47m2
-
-
- 土地 2025.06.24
-
-
- 1,730万円
-
豊橋市高師石塚町字石塚
-
豊橋鉄道渥美線「愛知大学前駅」まで徒歩8分
- 150.18m2
-
-
- 土地 2025.07.15
-
-
- 1,710万円
-
豊橋市飯村北5丁目
-
豊橋鉄道東田本線「運動公園前駅」まで徒歩28分
- 188.17m2
-
-
- 土地 2025.07.15
-
-
- 1,710万円
-
豊橋市飯村北5丁目
-
豊橋鉄道東田本線「運動公園前駅」まで徒歩28分
- 188.17m2
-
-
- 土地 2025.08.10
-
-
- 1,730万円
-
豊橋市東田町字西郷
-
豊橋鉄道東田本線「前畑駅」まで徒歩8分
- 167.58m2
-
-
- 土地 2025.08.19
-
-
- 1,750万円
-
豊橋市三ノ輪町5丁目
-
豊橋鉄道東田本線「運動公園前駅」まで徒歩20分
- 188.32m2
-
-
- 土地 2025.08.19
-
-
- 1,750万円
-
豊橋市三ノ輪町5丁目
-
豊橋鉄道東田本線「運動公園前駅」まで徒歩20分
- 188.32m2
-
-
- 土地 2025.08.24
-
-
- 1,700万円
-
豊橋市多米中町4丁目
-
豊橋鉄道東田本線「赤岩口駅」まで徒歩19分
- 223.67m2
-
-
- 土地 2025.08.24
-
-
- 1,700万円
-
豊橋市多米中町4丁目
-
豊橋鉄道東田本線「赤岩口駅」まで徒歩19分
- 223.67m2
-
-
- 土地 2025.09.06
-
-
- 1,880万円
-
豊橋市東雲町
-
豊橋鉄道東田本線「東田駅」まで徒歩2分
- 199.24m2
-
-
- 土地 2025.09.06
-
-
- 1,880万円
-
豊橋市東雲町
-
豊橋鉄道東田本線「東田駅」まで徒歩2分
- 199.24m2
-
-
- 土地 2025.09.06
-
-
- 1,880万円
-
豊橋市東雲町
-
豊橋鉄道東田本線「東田駅」まで徒歩2分
- 199.24m2
-
-
- 土地 2025.09.08
-
-
- 1,820万円
-
豊橋市西高師町字小谷
-
豊橋鉄道渥美線「芦原駅」まで徒歩13分
- 313.98m2
-
-
- 土地 2025.09.08
-
-
- 1,820万円
-
豊橋市西高師町字小谷
-
豊橋鉄道渥美線「芦原駅」まで徒歩13分
- 313.98m2
-
-
- 土地 2025.09.10
-
-
- 1,750万円
-
豊橋市朝丘町
-
豊橋鉄道東田本線「井原駅」まで徒歩7分
- 165.29m2
-
-
- 土地 2025.09.10
-
-
- 1,750万円
-
豊橋市朝丘町
-
豊橋鉄道東田本線「井原駅」まで徒歩7分
- 165.29m2
-
-
- 土地 2025.09.10
-
-
- 1,750万円
-
豊橋市朝丘町
-
豊橋鉄道東田本線「井原駅」まで徒歩7分
- 165.29m2
-
-
- 土地 2025.09.20
-
-
- 1,820万円
-
豊橋市住吉町
-
豊橋鉄道東田本線「東田駅」まで徒歩5分
- 158.51m2
-
-
- 土地 2025.09.20
-
-
- 1,820万円
-
豊橋市住吉町
-
豊橋鉄道東田本線「東田駅」まで徒歩5分
- 158.51m2
-
-
- 土地 2025.09.25
-
-
- 1,862.80万円
-
豊橋市三ツ相町
-
JR飯田線「船町駅」まで徒歩11分
- 361.72m2
-
-
- 土地 2025.09.25
-
-
- 1,862.80万円
-
豊橋市三ツ相町
-
JR飯田線「船町駅」まで徒歩11分
- 361.72m2
-
-
- 土地 2025.09.26
-
-
- 1,800万円
-
豊橋市下地町字長池
-
JR飯田線「下地駅」まで徒歩21分
- 290.58m2
-
-
- 土地 2025.09.26
-
-
- 1,800万円
-
豊橋市下地町字長池
-
JR飯田線「下地駅」まで徒歩21分
- 290.58m2
-
-
- 土地 2025.09.26
-
-
- 1,800万円
-
豊橋市下地町字長池
-
JR飯田線「下地駅」まで徒歩21分
- 290.58m2
-
-
-
土地
2025.10.08
-
-
- 1,730万円
-
豊橋市高師石塚町字石塚
-
豊橋鉄道渥美線「愛知大学前駅」まで徒歩8分
- 150.18m2
-
-
土地
2025.10.08
-
-
土地
2025.10.08
-
-
- 1,730万円
-
豊橋市高師石塚町字石塚
-
豊橋鉄道渥美線「愛知大学前駅」まで徒歩8分
- 150.18m2
-
-
土地
2025.10.08
-
-
土地
2025.10.10
-
-
- 1,821万円
-
豊橋市石巻町字東頭
-
豊橋鉄道東田本線「赤岩口駅」まで徒歩43分
- 1803.91m2
-
-
土地
2025.10.10
-
-
土地
2025.10.10
-
-
- 1,821万円
-
豊橋市石巻町字東頭
-
豊橋鉄道東田本線「赤岩口駅」まで徒歩43分
- 1803.91m2
-
-
土地
2025.10.10
-
-
土地
2025.10.10
-
-
- 1,821万円
-
豊橋市石巻町字東頭
-
豊橋鉄道東田本線「赤岩口駅」まで徒歩43分
- 1803.91m2
-
-
土地
2025.10.10
-
-
土地
2025.10.13
-
-
- 1,780万円
-
豊橋市松井町字松井
-
豊橋鉄道渥美線「芦原駅」まで徒歩9分
- 134.04m2
-
-
土地
2025.10.13
-
-
土地
2025.10.13
-
-
- 1,780万円
-
豊橋市松井町字松井
-
豊橋鉄道渥美線「芦原駅」まで徒歩9分
- 134.04m2
-
-
土地
2025.10.13
-
-
土地
2025.10.13
-
-
- 1,780万円
-
豊橋市松井町字松井
-
豊橋鉄道渥美線「芦原駅」まで徒歩9分
- 134.04m2
-
-
土地
2025.10.13
-
-
土地
2025.10.14
-
-
- 1,750万円
-
豊橋市小松町
-
豊橋鉄道渥美線「愛知大学前駅」まで徒歩11分
- 165.11m2
-
-
土地
2025.10.14
-
-
土地
2025.10.14
-
-
- 1,750万円
-
豊橋市小松町
-
豊橋鉄道渥美線「愛知大学前駅」まで徒歩11分
- 165.11m2
-
-
土地
2025.10.14
-
-
土地
2025.10.18
-
-
- 1,888万円
-
豊橋市牛川通1丁目
-
豊橋鉄道東田本線「競輪場前駅」まで徒歩18分
- 248.37m2
-
-
土地
2025.10.18
-
-
土地
2025.11.01
-
-
- 1,730万円
-
豊橋市佐藤4丁目
-
豊橋鉄道渥美線「小池駅」まで徒歩33分
- 163.48m2
-
-
土地
2025.11.01
-
-
土地
2025.11.01
-
-
- 1,730万円
-
豊橋市佐藤4丁目
-
豊橋鉄道渥美線「小池駅」まで徒歩33分
- 163.48m2
-
-
土地
2025.11.01
-
-
土地
2025.11.01
-
-
- 1,730万円
-
豊橋市佐藤4丁目
-
豊橋鉄道渥美線「小池駅」まで徒歩33分
- 163.48m2
-
-
土地
2025.11.01
- 愛知県
マイページ物件数 - 30,210件
最近見た物件
-
-

-
- 土地
- 1,055万円
-
豊川市一宮町上新切
-
JR飯田線三河一宮
-
-
-

-
- 土地
- 250万円
-
児湯郡高鍋町大字高鍋町
-
JR日豊本線高鍋
-
愛知県土地新着物件
-
-

-
- 土地
- 1,730万円
-
豊橋市佐藤4丁目
-
豊橋鉄道渥美線小池駅
-
-
-

-
- 土地
- 1,730万円
-
豊橋市佐藤4丁目
-
豊橋鉄道渥美線小池駅
-
-
-

-
- 土地
- 1,730万円
-
豊橋市佐藤4丁目
-
豊橋鉄道渥美線小池駅
-
-
-

-
- 土地
- 3,699万円
-
名古屋市中村区長戸井町2丁目
-
近鉄名古屋線黄金駅
-
-
-

-
- 土地
- 1,998万円
-
海部郡蟹江町城2丁目
-
近鉄名古屋線近鉄蟹江駅
-
-
-

-
- 土地
- 1,275万円
-
豊田市宮口町1丁目
-
愛知環状鉄道新豊田駅
-
-
-

-
- 土地
- 2,310万円
-
豊田市千足町10丁目
-
名鉄三河線豊田市駅
-
- お近くの店舗を探す
-
おすすめ物件
-
-

-
- 土地
- 1,790万円
-
豊田市水源町2丁目
-
愛知環状鉄道三河豊田
-
-
-

-
- 土地
- 700万円
-
常滑市山方町6丁目
-
名鉄常滑線常滑
-
-
-

-
- 土地
- 1,048万円
-
知多市日長台
-
名鉄常滑線日長
-
-
-

-
- 土地
- 1,724万円
-
豊川市御津町西方長田
-
JR東海道本線愛知御津
-
-
-

-
- 土地
- 2,240万円
-
知多郡東浦町大字森岡字浜田
-
JR武豊線尾張森岡
-
-
-

-
- 土地
- 2,680万円
-
名古屋市千種区宮根台1丁目
-
名古屋市名城線茶屋ヶ坂
-
-
-

-
- 土地
- 980万円
-
愛西市善太新田町大前
-
近鉄名古屋線佐古木
-
-
-

-
- 土地
- 2,249万円
-
尾張旭市旭ケ丘町山の手
-
名鉄瀬戸線尾張旭
-
-
-

-
- 土地
- 500万円
-
常滑市大野町4丁目
-
名鉄常滑線大野町
-
-
-

-
- 土地
- 2,200万円
-
名古屋市西区浮野町
-
名古屋市鶴舞線上小田井
-












担当エージェント:水崎 佑輝
こんにちは♪
・当店は豊橋市を中心に、常時800件の仲介物件を取り扱っています。
新築戸建だけでなく、中古戸建・売土地・マンションまで幅広くご紹介しております。
リフォームや注文住宅も自社で施工しているので、住宅についてトータルサポート!
地域密着・即日対応でお客様のお家選びをおてつだい致します。安心してご相談ください。
・住宅ローンの相談も承っております。
当社のご成約事例ですが、借入がある方、自営業の方、転職歴のある方、
従業年数1年未満の方も、おてつだいさせて頂きました。
・お住み替えやご売却も経験豊富なスタッフがご相談に応じます。
お客様の住まいに関わるあらゆるご不安を一緒に解決して、理想のマイホームを探しましょう!
--●SNSも随時更新しているので是非フォローやいいね!お願いします♪●--
ゆめてつInstagram ☆ @hd_yumetetsu
ここすもInstagram ☆ @cocosumohouse