お好きなハウスメーカーご利用頂けます
掲載情報更新日:2026年01月05日 次回更新予定日:2026年01月19日
- 3,280万円
-
- 借入ご希望金額
万円 - 借入期間
年 - 借入金利
% - 月々のお支払い金額
円
- 借入ご希望金額
※ 月々のお支払例は目安の試算となりますので、実際の金額とは異なる場合がございます。詳しくは店舗までお問合わせください。
- 平塚市花水台
-
JR東海道本線『平塚』 バス乗車11分 下花水橋 停 徒歩3分 (約240m)
お好きなハウスメーカーご利用頂けます土地 | 物件情報
お好きなハウスメーカーご利用頂けます
■建築条件なし、お好きなハウスメーカーご利用頂けます
■なでしこ小学校まで徒歩10分圏内
■閑静な住宅街
■南道路、幅員約6mに接道
物件の設備
- 電気
- 公営水道
- 公共下水
- 都市ガス
物件の特徴
- 小学校徒歩10分以内
- 前道6m以上
- 南側道路面す
- 更地渡
- 建築条件無
物件詳細情報
| 価格 | 3,280万円 | 坪単価 | 坪84.5万円 |
|---|---|---|---|
| 物件種別 | 土地 | ||
| 所在地 | 神奈川県平塚市花水台 No.2 | ||
| アクセス |
|
||
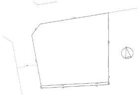
| 土地面積 | 公128.38㎡(38.83坪) | 接道 | 南側(公道)幅 約6.0m 間口 約8.16m |
| 私道 | セットバック | ||
| 最適用途 | 住宅用地 | 造成完了時期 | |
| 地目 | 宅地 | 地勢 | |
| 権利 | 所有権 |
||
| 分譲情報 | |||
| 都市計画 | 市街化区域 |
用途地域 | 1種低層 |
| 建ぺい/容積率 | 60% / 100% | 土地国土法 | |
| 許可番号 | 建築基準法 | ||
| 法令制限 | 景観法・法22条区域 | ||
| 小学区 | なでしこ小学校 徒歩9分 (約650m) | 中学区 | 浜岳中学校 徒歩14分 (約1100m) |
| 現況 | 更地 | 引渡 | 相談(更地渡し) |
| 建築条件 | 建築条件なし | ||
| その他費用 | |||
| 周辺環境 | なでしこ小学校 徒歩9分 (約650m) 浜岳中学校 徒歩14分 (約1100m) 黒部丘幼稚園 徒歩6分 (約460m) 花水さくら保育園 徒歩4分 (約320m) ファミリーマート 虹ケ浜店 徒歩8分 (約630m) たまや 大磯店 徒歩11分 (約860m) クリエイトS・D 大磯店 徒歩11分 (約860m) ロイヤルホームセンター 湘南大磯 徒歩18分 (約1370m) |
||
| 備考 | ■建築条件なし、お好きなハウスメーカーご利用頂けます ■なでしこ小学校まで徒歩10分圏内 ■閑静な住宅街 ■南道路、幅員約6mに接道 |
||
| 物件番号 | 4328183 | 取引態様 | 媒介 |
取扱店舗情報
| 電話番号 | 0463-24-8885 |
|---|---|
| 所在地 | 〒254-0073 神奈川県平塚市西八幡2丁目9-1 |
| 営業時間 | 9:00~18:00 |
| 定休日 | 第1・3火曜日、水曜日、年末年始 |
| 宅建免許番号 | 神奈川県知事(3)第28824号 |
| アクセス | 店舗への地図はこちら |

来店ご予約
神奈川県平塚市で価格が似ている物件はこちら
- 神奈川県
マイページ物件数 - 3,012件
最近見た物件
-
-

-
- 土地
- 400万円
-
西条市氷見乙
-
JR予讃線伊予西条
-
神奈川県土地新着物件
-
-

-
- 土地
- 2,480万円
-
平塚市横内
-
JR東海道本線平塚駅
-
-
-

-
- 土地
- 1,380万円
-
相模原市中央区上矢部4丁目
-
JR横浜線淵野辺駅
-
-
-

-
- 土地
- 1,530万円
-
厚木市上依知
-
小田急小田原線本厚木駅
-
-
-

-
- 土地
- 4,250万円
-
相模原市中央区清新6丁目
-
JR相模線南橋本駅
-
-
-

-
- 土地
- 1,790万円
-
厚木市金田
-
小田急小田原線本厚木駅
-
-
-

-
- 土地
- 2,350万円
-
相模原市中央区弥栄1丁目
-
JR横浜線淵野辺駅
-
-
-

-
- 土地
- 3,580万円
-
相模原市中央区富士見2丁目
-
JR横浜線矢部駅
-
- お近くの店舗を探す
-













ハウスドゥ 湘南平塚(株式会社プレジャー)
[営業時間]9:00~18:00
[定休日]第1週・第3週の火曜日、及び毎週水曜日
JR東海道線「平塚」駅よりバス乗車6分
「八幡」停留所 目の前です。
●店舗前に5台分の駐車スペースがございます。
●平塚駅など近隣地への送迎いたします。
●キッズスペース、授乳室を完備しております。
お子様連れのお客様もご安心してご来店ください。
●すぐにご来店が難しいお客様もお気軽にご相談ください。