加古川市平荘町西山の土地
掲載情報更新日:2026年04月09日 次回更新予定日:2026年04月23日
- 1,060万円
-
- 借入ご希望金額
万円 - 借入期間
年 - 借入金利
% - 月々のお支払い金額
円
- 借入ご希望金額
※ 月々のお支払例は目安の試算となりますので、実際の金額とは異なる場合がございます。詳しくは店舗までお問合わせください。
- 加古川市平荘町西山
-
JR山陽本線『加古川』 バス乗車20分 第二鹿児の郷 停 徒歩15分 (約1200m)
JR加古川線『神野』 車11分(約4.7km)
JR山陽本線『宝殿』 車15分(約7.1km)
加古川市平荘町西山土地 | 物件情報
農家用住宅から一般住宅へ用途変更済み(8-24号)
ハウスドゥ加古川インターの掲載物件を閲覧頂きましてありがとうございます!
加古川市内の土地、戸建て、マンションのHP掲載数トップクラス !
ハウスドゥ加古川インターでは加古川市、明石市、三木市、加西市に強いスタッフが在籍しておりますので加古川以外の地域でお考えのお客様も手厚くサポートさせて頂きます◎
【ご購入のお客様】
宅建士複数名在籍!
住宅ローンアドバイザーや、女性スタッフも在籍してますので女性のお客様でもご来店・ご相談しやすい店舗の空間となっております。
物件内覧希望につきましてはお気軽にお問い合わせ下さい。
【お住替えのお客様】
関連会社は加古川市で解体業を行っております。
古家の解体や不用品の処分も是非お任せください!
買取も強化中です!是非ご相談ください!
物件の設備
- 電気
物件の特徴
- 前道6m以上
- 建築条件無
物件詳細情報
| 価格 | 1,060万円 | 坪単価 | 坪5.0万円 |
|---|---|---|---|
| 物件種別 | 土地 | ||
| 所在地 | 兵庫県加古川市平荘町西山 | ||
| アクセス |
|
||
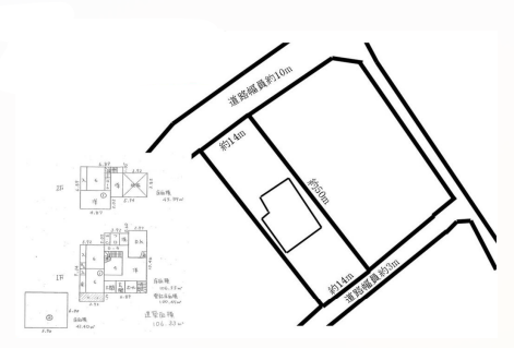
| 土地面積 | 公702㎡(212.35坪) | 接道 | 北西側(公道)幅 約10.0m 南東側(公道)幅 約3.0m |
| 私道 | セットバック | ||
| 最適用途 | 造成完了時期 | ||
| 地目 | 宅地 | 地勢 | |
| 権利 | 所有権 |
||
| 都市計画 | 調整区域 |
用途地域 | 指定無 |
| 建ぺい/容積率 | 60% / 200% | 土地国土法 | |
| 許可番号 | 建築基準法 | ||
| 法令制限 | |||
| 小学区 | 両荘みらい学園 徒歩30分 (約2400m) | 中学区 | 両荘みらい学園 徒歩30分 (約2400m) |
| 現況 | 古家付 | 引渡 | 相談 |
| 建築条件 | 建築条件なし | ||
| その他費用 | |||
| 周辺環境 | ローソン加古川平荘小畑 徒歩3分 (約210m) 平荘郵便局 徒歩26分 (約2020m) 加古川ウェルネスパーク 徒歩42分 (約3350m) 両荘市民センター 徒歩30分 (約2390m) 加古川市立義務教育学校両荘みらい学園 徒歩31分 (約2450m) Aコープ神野 徒歩51分 (約4080m) |
||
| 備考 | ・農家用住宅から一般住宅へ用途変更済み(8-24号) ・木造S52年1月築 1F106.33㎡ 2F43.39㎡ 計149.72㎡ ・物置S54年築41.40㎡ 鉄筋コンクリートブロック造有り ・上水道・電気・汲み取り式(下水道配管ありません) |
||
| 物件番号 | 4330061 | 取引態様 | 媒介 |
取扱店舗情報
ハウスドゥ 加古川インター TREK株式会社 店舗詳細ページへ
| 電話番号 | 079-451-5840 |
|---|---|
| 所在地 | 〒675-0067 兵庫県加古川市加古川町河原359-7 |
| 営業時間 | 10:00~19:00 |
| 定休日 | 水曜日、年末年始 |
| 宅建免許番号 | 兵庫県知事(1)第401686号 |
| アクセス | 店舗への地図はこちら |

来店ご予約
兵庫県加古川市で価格が似ている物件はこちら
- 兵庫県
マイページ物件数 - 3,140件
最近見た物件
-
-

-
- 土地
- 100万円
-
白老郡白老町字北吉原
-
JR室蘭本線萩野
-
-
-

-
- 土地
- 1,350万円
-
鹿児島市西坂元町
-
JR日豊本線鹿児島
-
兵庫県土地新着物件
-
-

-
- 土地
- 990万円
-
加古川市東神吉町西井ノ口
-
JR山陽本線宝殿駅
-
-
-

-
- 土地
- 450万円
-
姫路市飾磨区富士見ケ丘町
-
JR山陽本線英賀保駅
-
-
-

-
- 土地
- 8,426万円
-
神戸市灘区篠原中町3丁目
-
阪急電鉄神戸線六甲駅
-
-
-

-
- 土地
- 1,490万円
-
加古川市平岡町中野
-
JR山陽本線東加古川駅
-
-
-

-
- 土地
- 1,680万円
-
加古川市平岡町二俣
-
JR山陽本線東加古川駅
-
-
-

-
- 土地
- 1億2,000万円
-
尼崎市名神町3丁目
-
JR福知山線塚口駅
-
-
-

-
- 土地
- 1,180万円
-
加古川市別府町新野辺
-
山陽電鉄本線浜の宮駅
-
- お近くの店舗を探す
-
おすすめ物件
-
-

-
- 土地
- 522万円
-
加古川市米田町船頭
-
JR山陽本線加古川
-
-
-

-
- 土地
- 1,150万円
-
加古川市新神野4丁目
-
JR加古川線神野
-
-
-

-
- 土地
- 1,450万円
-
揖保郡太子町東保
-
JR山陽本線網干
-
-
-

-
- 土地
- 2,980万円
-
川西市久代4丁目
-
JR福知山線北伊丹
-
-
-

-
- 土地
- 2,180万円
-
川西市大和東5丁目
-
能勢電鉄笹部
-
-
-

-
- 土地
- 1,200万円
-
明石市魚住町錦が丘2丁目
-
JR山陽本線魚住
-
-
-

-
- 土地
- 1,798万円
-
加古川市野口町長砂
-
山陽電鉄本線浜の宮
-
-
-

-
- 土地
- 1,300万円
-
加古川市新神野3丁目
-
JR加古川線神野
-
-
-

-
- 土地
- 1,700万円
-
加古川市東神吉町出河原
-
JR山陽本線加古川
-
-
-

-
- 土地
- 1,098万円
-
姫路市飾磨区矢倉町2丁目
-
JR山陽本線英賀保
-



物置S54年築41.40㎡
鉄筋コンクリートブロック造有り