柏原市片山町の土地
掲載情報更新日:2026年04月10日 次回更新予定日:2026年04月24日
- 2,980万円
-
- 借入ご希望金額
万円 - 借入期間
年 - 借入金利
% - 月々のお支払い金額
円
- 借入ご希望金額
※ 月々のお支払例は目安の試算となりますので、実際の金額とは異なる場合がございます。詳しくは店舗までお問合わせください。
- 柏原市片山町
-
近鉄大阪線『河内国分』 徒歩5分 (約360m)
JR関西本線『高井田』 徒歩13分 (約1040m)
近鉄道明寺線『柏原南口』 徒歩32分 (約2560m)
柏原市片山町土地 | 物件情報
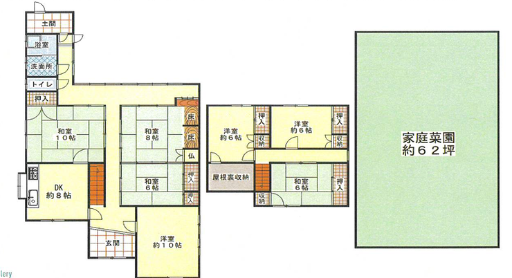
◇約168坪の古家付き土地◇ ◇建て替え用地としても◎、セカンドハウスとしても◎◇
。・☆・。・☆・。・☆・。・☆・。・☆・。・☆・。
◇約168坪の古家付き土地◇
◇建て替え用地としても◎、セカンドハウスとしても◎◇
約168坪もある土地をご紹介♪
事業用途や建て替え用地としてもご利用いただけます!
上物は約75坪あり随所に趣のある日本家屋となっております。
現状62坪の家庭菜園もついていますので、家庭菜園を始めたいと
思っていただける方にぴったりな物件となっております♪
・柏原市立玉手小学校
・柏原市立玉手中学校
。・☆・。・☆・。・☆・。・☆・。・☆・。・☆・。
物件の設備
- 電気
- 上水道
- 浄化槽
- 個別浄化槽
- 都市ガス
物件の特徴
- 即引渡可
- 建築条件無
物件詳細情報
| 価格 | 2,980万円 | 坪単価 | 坪17.8万円 |
|---|---|---|---|
| 物件種別 | 土地 | ||
| 所在地 | 大阪府柏原市片山町 | ||
| アクセス |
|
||
| 土地面積 | 公552.25㎡(167.05坪) | 接道 | 北側(私道)幅 約4.0m 間口 約12.00m |
| 私道 | セットバック | ||
| 最適用途 | 住宅用地 | 造成完了時期 | |
| 地目 | 宅地 | 地勢 | 雛段 |
| 権利 | 所有権 |
||
| 都市計画 | 市街化区域 |
用途地域 | 1種低層 |
| 建ぺい/容積率 | 60% / 150% | 土地国土法 | |
| 許可番号 | 建築基準法 | ||
| 法令制限 | 準防火地域 | ||
| 小学区 | 玉手小学校 徒歩20分 (約1600m) | 中学区 | 玉手中学校 徒歩14分 (約1100m) |
| 現況 | 古家付 | 引渡 | 即 |
| 建築条件 | 建築条件なし | ||
| その他費用 | |||
| 周辺環境 | 河内国分駅 徒歩5分 (約360m) セブンイレブン柏原国分本町店 徒歩9分 (約680m) 柏原市立玉手中学校 徒歩12分 (約960m) JA大阪中河内 玉手出張所 徒歩12分 (約960m) 柏原玉手郵便局 徒歩13分 (約1000m) 柏原市立玉手小学校 徒歩13分 (約980m) 柏原市立国分図書館 徒歩12分 (約910m) 柏原市立こくぶこども園 徒歩13分 (約1040m) |
||
| 備考 | 上水及び下水は北側前面道路に本管がなく、南側他人地を経由して本物件へ引込みされています。 私道面積有85㎡(持分4分の1) |
||
| 物件番号 | 4398644 | 取引態様 | 媒介 |
取扱店舗情報
| 電話番号 | 072-920-7218 |
|---|---|
| 所在地 | 〒581-0030 大阪府八尾市都塚南1丁目30 |
| 営業時間 | 9:30~17:30 |
| 定休日 | 水曜日 |
| 宅建免許番号 | 大阪府知事(16)第5955号 |
| アクセス | 店舗への地図はこちら |

来店ご予約
大阪府柏原市で価格が似ている物件はこちら
- 大阪府
マイページ物件数 - 18,247件
最近見た物件
-
-

-
- 新築一戸建て
- 3,702万円
-
岡山市南区築港新町2丁目
-
『新町中央』バス停
-
-
-

-
- 中古一戸建て
- 4,280万円
-
川口市中青木3丁目
-
JR京浜東北・根岸線西川口
-
-
-

-
- 土地
- 980万円
-
東大阪市下小阪4丁目
-
近鉄難波・奈良線八戸ノ里
-
大阪府土地新着物件
- お近くの店舗を探す
-
おすすめ物件
-
-

-
- 土地
- 980万円
-
泉大津市松之浜町2丁目
-
南海電鉄本線松ノ浜
-
-
-

-
- 土地
- 2,480万円
-
高槻市弥生が丘町
-
JR東海道線高槻
-
-
-

-
- 土地
- 4,130万円
-
摂津市正雀本町2丁目
-
阪急電鉄京都線正雀
-
-
-

-
- 土地
- 1,490万円
-
大阪市住吉区墨江1丁目
-
南海電鉄本線住吉大社
-
-
-

-
- 土地
- 1,100万円
-
大阪市住之江区安立1丁目
-
南海電鉄本線住ノ江
-
-
-

-
- 土地
- 2,280万円
-
大阪市東住吉区南田辺1丁目
-
JR阪和線南田辺
-
-
-

-
- 土地
- 980万円
-
泉南郡熊取町大久保南4丁目
-
JR阪和線熊取
-
-
-

-
- 土地
- 5,880万円
-
堺市北区中長尾町3丁
-
JR阪和線堺市
-
-
-

-
- 土地
- 580万円
-
泉佐野市岡本3丁目
-
南海電鉄本線羽倉崎
-
-
-

-
- 土地
- 7,300万円
-
大阪市住吉区帝塚山中4丁目
-
阪堺電気軌道上町線帝塚山四丁目
-












~~ハウスドゥ八尾都塚 山下住建株式会社~~
創業58年。創業当時から地域密着で、今後もお客様に寄り添ったご提案をいたします!
不動産のご購入や住宅ローン・リフォームのご相談もお気軽にお問合せください