岡山市南区豊浜町の土地
掲載情報更新日:2025年12月04日 次回更新予定日:2025年12月18日
- 693.75万円
-
- 借入ご希望金額
万円 - 借入期間
年 - 借入金利
% - 月々のお支払い金額
円
- 借入ご希望金額
※ 月々のお支払例は目安の試算となりますので、実際の金額とは異なる場合がございます。詳しくは店舗までお問合わせください。
- 岡山市南区豊浜町
-
岡電バス『浜野西 バス停』 徒歩6分 (約480m)
岡山市南区豊浜町土地 | 物件情報
物件の設備
- 上水道
- 下水道
- プロパンガス
物件の特徴
- 即引渡可
- 建築条件無
物件詳細情報
| 価格 | 693.75万円 | 坪単価 | 坪25.0万円 |
|---|---|---|---|
| 物件種別 | 土地 | ||
| 所在地 | 岡山県岡山市南区豊浜町 | ||
| アクセス |
|
||
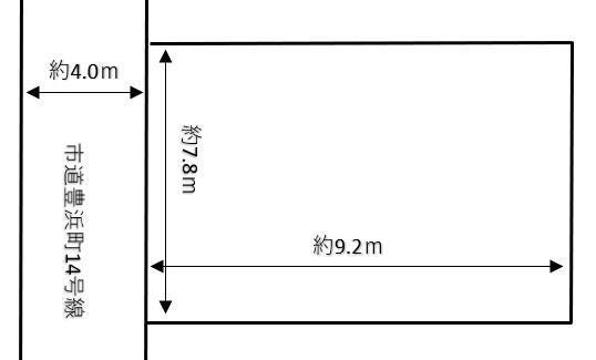
| 土地面積 | 公91.72㎡(27.74坪) | 接道 | 西側(公道)幅 約4.0m 間口 約7.80m |
| 私道 | セットバック | ||
| 最適用途 | 造成完了時期 | ||
| 地目 | 宅地 | 地勢 | |
| 権利 | 所有権 |
||
| 都市計画 | 市街化区域 |
用途地域 | 1種住居 |
| 建ぺい/容積率 | 60% / 200% | 土地国土法 | |
| 許可番号 | 建築基準法 | ||
| 法令制限 | |||
| 小学区 | 福浜小学校 徒歩18分 (約1414m) | 中学区 | 福浜中学校 徒歩30分 (約2373m) |
| 現況 | 更地 | 引渡 | 即 |
| 建築条件 | 建築条件なし | ||
| その他費用 | |||
| 備考 | |||
| 物件番号 | 4402356 | 取引態様 | 媒介 |
取扱店舗情報
ハウスドゥ 岡山南 株式会社インテックスホームズ 店舗詳細ページへ
| 電話番号 | 086-236-7661 |
|---|---|
| 所在地 | 〒701-0221 岡山県岡山市南区藤田652-20 |
| 営業時間 | 9:00~18:00 |
| 定休日 | 水曜日、第2火曜日 |
| 宅建免許番号 | 岡山県知事(2)第5693号 |
| アクセス | 店舗への地図はこちら |

来店ご予約
岡山県岡山市南区で価格が似ている物件はこちら
- 岡山県
マイページ物件数 - 4,457件
最近見た物件
-
-

-
- 収益
- 1,850万円
-
大阪市東淀川区東中島2丁目
-
阪急電鉄京都線崇禅寺
-
-
-

-
- 土地
- 2,080万円
-
川越市大字鴨田
-
東武東上線川越
-
-
-

-
- 土地
- 660万円
-
松阪市駅部田町
-
近鉄山田鳥羽志摩線東松阪
-
岡山県土地新着物件
-
-

-
- 土地
- 1,474.59万円
-
倉敷市中島
-
JR山陽本線西阿知駅
-
-
-

-
- 土地
- 1,560.37万円
-
倉敷市大内
-
JR山陽本線倉敷駅
-
-
-

-
- 土地
- 450万円
-
岡山市東区古都南方
-
JR山陽本線上道駅
-
-
-

-
- 土地
- 850万円
-
倉敷市児島味野城2丁目
-
JR本四備讃線児島駅
-
-
-

-
- 土地
- 1,390万円
-
都窪郡早島町早島
-
JR宇野線早島駅
-
-
-

-
- 土地
- 1,834.86万円
-
倉敷市玉島長尾
-
JR山陽本線新倉敷駅
-
-
-

-
- 土地
- 859.10万円
-
倉敷市児島小川3丁目
-
JR本四備讃線児島駅
-
- お近くの店舗を探す
-













