柏市中新宿1丁目の土地
掲載情報更新日:2026年01月15日 次回更新予定日:2026年01月29日
- 1,980万円
-
- 借入ご希望金額
万円 - 借入期間
年 - 借入金利
% - 月々のお支払い金額
円
- 借入ご希望金額
※ 月々のお支払例は目安の試算となりますので、実際の金額とは異なる場合がございます。詳しくは店舗までお問合わせください。
- 柏市中新宿1丁目
-
JR千代田・常磐緩行線『北小金』 徒歩19分 (約1520m)
JR千代田・常磐緩行線『南柏』 徒歩10分 (約800m)
柏市中新宿1丁目土地 | 物件情報
建築条件無!自由設計可☆ 周辺環境充実でお買い物も便利♪
◇スーパー・コンビニ・ドラッグストア徒歩圏内♪
◇2駅使用可能☆
◇閑静な住宅街♪
物件の設備
- 電気
- 公営水道
- 公共下水
- 側溝
物件の特徴
- スーパーが近い
- 閑静な住宅街
- 即引渡可
- 建築条件無
物件詳細情報
| 価格 | 1,980万円 | 坪単価 | 坪39.2万円 |
|---|---|---|---|
| 物件種別 | 土地 | ||
| 所在地 | 千葉県柏市中新宿1丁目 | ||
| アクセス |
|
||
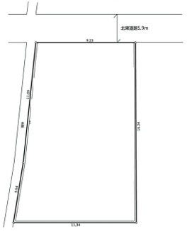
| 土地面積 | 166.78㎡(50.45坪) | 接道 | 北東側(公道)幅 約5.9m |
| 私道 | セットバック | ||
| 最適用途 | 造成完了時期 | ||
| 地目 | 宅地 | 地勢 | |
| 権利 | 所有権 |
||
| 都市計画 | 市街化区域 |
用途地域 | 1種低層 |
| 建ぺい/容積率 | 60% / 200% | 土地国土法 | |
| 許可番号 | 建築基準法 | ||
| 法令制限 | |||
| 小学区 | 光ヶ丘小学校 徒歩19分 (約1500m) | 中学区 | 光ヶ丘中学校 徒歩30分 (約2400m) |
| 現況 | 更地 | 引渡 | 即 |
| 建築条件 | 建築条件なし | ||
| その他費用 | |||
| 周辺環境 | セブンイレブン柏中新宿店 徒歩8分 (約600m) ピアシティ柏中新宿店 徒歩10分 (約730m) |
||
| 備考 | |||
| 物件番号 | 4418348 | 取引態様 | 媒介 |
取扱店舗情報
| 電話番号 | 04-7191-7960 |
|---|---|
| 所在地 | 〒277-0941 千葉県柏市高柳1139-1 |
| 営業時間 | 9:00~18:00 |
| 定休日 | 水曜日、年末年始 |
| 宅建免許番号 | 千葉県知事(1)第17929号 |
| アクセス | 店舗への地図はこちら |

来店ご予約
千葉県柏市で価格が似ている物件はこちら
- 千葉県
マイページ物件数 - 2,833件
最近見た物件
-
-

-
- 土地
- 120万円
-
いなべ市北勢町麻生田
-
三岐鉄道北勢線麻生田
-
-
-

-
- 土地
- 176万円
-
関市関ノ上1丁目
-
長良川鉄道松森
-
-
-

-
- 土地
- 1,790万円
-
豊田市水源町2丁目
-
愛知環状鉄道新豊田
-
千葉県土地新着物件
- お近くの店舗を探す
-



















