岡山市中区山崎の土地
掲載情報更新日:2026年02月24日 次回更新予定日:2026年03月10日
- 1,380万円
-
- 借入ご希望金額
万円 - 借入期間
年 - 借入金利
% - 月々のお支払い金額
円
- 借入ご希望金額
※ 月々のお支払例は目安の試算となりますので、実際の金額とは異なる場合がございます。詳しくは店舗までお問合わせください。
- 岡山市中区山崎
-
両備バス『『曹源寺』バス停』 徒歩12分 (約960m)
岡山市中区山崎土地 | 物件情報
■当方売主の為、仲介費用無し! ■理想の住まいをアイムコラボレーションで実現!
◆見学予約受付中〈無料〉◆
■アイムコラボレーション施工の建築条件付き土地!
■のびのび暮らせる54坪!家族の笑顔が広がる自由設計の家づくり!
■旭操小&操南中エリア!
※司法書士指定有
物件の設備
- 電気
- 上水道
- 公共下水
- 側溝
- 都市ガス
物件の特徴
- 前道6m以上
- 閑静な住宅街
- 周辺交通量少なめ
- 陽当り良好
- 平坦地
- 整形地
- 更地渡
物件詳細情報
| 価格 | 1,380万円 | 坪単価 | 坪25.4万円 |
|---|---|---|---|
| 物件種別 | 土地 | ||
| 所在地 | 岡山県岡山市中区山崎 | ||
| アクセス |
|
||
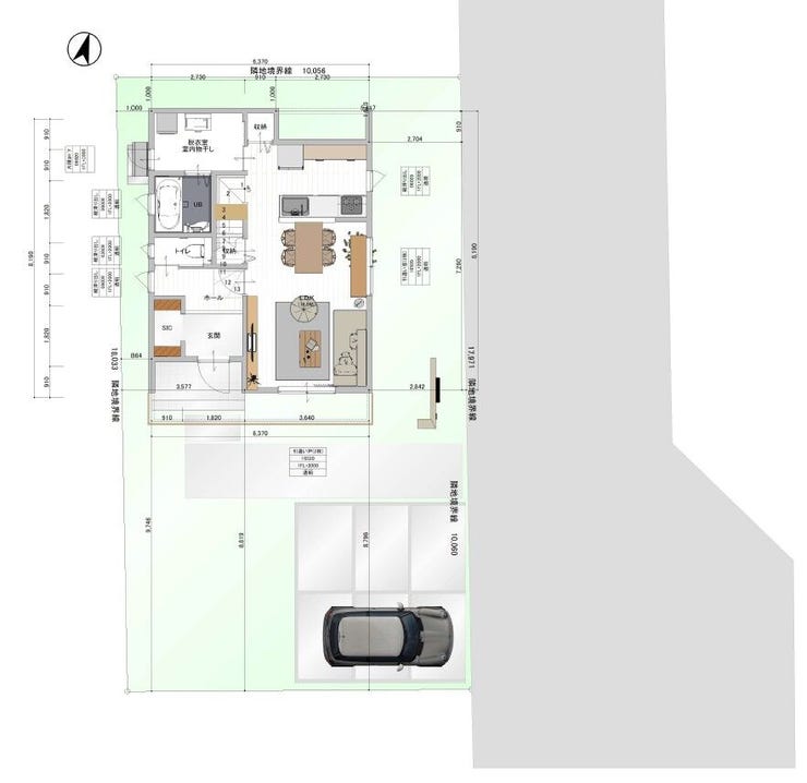
| 土地面積 | 公179.48㎡(54.29坪) | 接道 | 東側(公道)幅 約6.0m 間口 約18.00m |
| 私道 | セットバック | ||
| 最適用途 | 住宅用地 | 造成完了時期 | |
| 地目 | 宅地 | 地勢 | 平坦 |
| 権利 | 所有権 |
||
| 都市計画 | 市街化区域 |
用途地域 | 1種低層 |
| 建ぺい/容積率 | 50% / 100% | 土地国土法 | |
| 許可番号 | 建築基準法 | ||
| 法令制限 | |||
| 小学区 | 旭操小学校 徒歩13分 (約1000m) | 中学区 | 操南中学校 徒歩37分 (約2900m) |
| 現況 | 古家付 | 引渡 | 期日指定:2026年04月末以降(更地渡し) |
| 建築条件 | 建築条件付 | ||
| その他費用 | |||
| 周辺環境 | ハローズ円山店 徒歩13分 (約980m) 中国銀行円山支店 徒歩14分 (約1050m) おかやま信用金庫操山支店 徒歩14分 (約1050m) 天満屋ハピーズ円山店 徒歩20分 (約1550m) 岡山海吉郵便局 徒歩17分 (約1310m) |
||
| 備考 | ■アイムコラボレーション建築条件付 ■境界確定測量、解体費用は売主負担となります。 ※仲介手数料無し(当方不払い) ※司法書士指定有 |
||
| 物件番号 | 4464644 | 取引態様 | 売主 |
取扱店舗情報
ハウスドゥ 岡山平井 株式会社インテックスホームズ 店舗詳細ページへ
| 電話番号 | 086-206-6710 |
|---|---|
| 所在地 | 〒703-8282 岡山県岡山市中区平井7丁目1-18 |
| 営業時間 | 9:00~18:00 |
| 定休日 | 毎週水曜日、第二火曜日 |
| 宅建免許番号 | 岡山県知事(2)第5693号 |
| アクセス | 店舗への地図はこちら |

来店ご予約
岡山県岡山市中区で価格が似ている物件はこちら
- 岡山県
マイページ物件数 - 4,418件
最近見た物件
-
-

-
- 土地
- 1,880万円
-
倉敷市白楽町
-
JR山陽本線倉敷
-
-
-

-
- 土地
- 380万円
-
八戸市大字田面木字赤坂
-
松園町バス停
-
-
-

-
- 土地
- 3,340万円
-
松山市土居田町
-
針田
-
岡山県土地新着物件
- お近くの店舗を探す
-
























担当エージェント:酒井 雄大
《住宅ローンならハウスドゥ 岡山平井にお任せください!》
「いくら借りられるかわからない」「どこの銀行がいいの?」
「車のローンが残っている」など
ご不安がある方はお気軽にご相談ください!
不動産購入には欠かせない大事な資金面のご相談も
しっかりとご対応させて頂きます。
◆◆─────────◆◆
物件見学予約受付中!
お問い合わせはお早めに!
Free【0800-200-2244】
◆◆─────────◆◆