売土地 師岡町2丁目
掲載情報更新日:2026年01月05日 次回更新予定日:2026年01月19日
- 3,980万円
-
- 借入ご希望金額
万円 - 借入期間
年 - 借入金利
% - 月々のお支払い金額
円
- 借入ご希望金額
※ 月々のお支払例は目安の試算となりますので、実際の金額とは異なる場合がございます。詳しくは店舗までお問合わせください。
- 青梅市師岡町2丁目
-
JR青梅線『河辺』 徒歩15分 (約1200m)
JR青梅線『東青梅』 車6分(約1.5km)
JR青梅線『東青梅』 徒歩16分 (約1280m)
売土地 師岡町2丁目土地 | 物件情報
\【青梅市専門!】ハウスドゥ青梅河辺/ 生活品の購入が徒歩圏内で揃います!
\あれこれ不動産サイトを見なくても当店で解決/
当店はエリア内の物件の大半を最・新・情・報で掲載!
ほかのページで気になる物件もご相談ください。
◆用途によって2駅利用可能◎
◆小学校まで約徒歩7分
◆スーパーまで約徒歩9分
◆コンビニまで約徒歩5分
◆ドラックストアまで約徒歩9分
物件の特徴
- 閑静な住宅街
- 陽当り良好
- 更地渡
- 建築条件無
オープンハウス・イベント情報
開催日時:毎週土日祝 10:00~18:00
開催場所:東京都青梅市
◇*◆*◇*◆*◇*◆*◇*◆*◇*◆◇*◆*◇ ――――――― ▼ OPEN HOUSE ▼ ――――――― ハウスドゥ 青梅河辺の \\ 現地販売会! // ~取扱い物件多数♪青梅市の物件はお任せ下さい!~ ―――――――――…
物件詳細情報
| 価格 | 3,980万円 | 坪単価 | 坪59.2万円 |
|---|---|---|---|
| 物件種別 | 土地 | ||
| 所在地 | 東京都青梅市師岡町2丁目327-1 | ||
| アクセス |
|
||
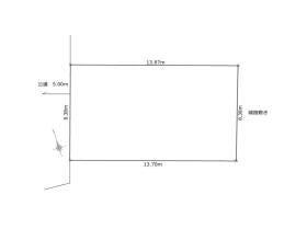
| 土地面積 | 実222.21㎡(67.21坪) | 接道 | 東側(私道)幅 約4.0m 間口 約3.35m |
| 私道 | 別:2.46㎡ | セットバック | |
| 最適用途 | 住宅用地 | 造成完了時期 | |
| 地目 | 宅地 | 地勢 | 平坦 |
| 権利 | 所有権 |
||
| 都市計画 | 市街化区域 |
用途地域 | 1種住居 |
| 建ぺい/容積率 | 60% / 200% | 土地国土法 | |
| 許可番号 | 建築基準法 | ||
| 法令制限 | 準防火地域・第2種高度地区 | ||
| 小学区 | 吹上小学校 徒歩7分 (約550m) | 中学区 | 吹上中学校 徒歩14分 (約1100m) |
| 現況 | 更地 | 引渡 | 相談(更地渡し) |
| 建築条件 | 建築条件なし | ||
| その他費用 | |||
| 周辺環境 | 吹上小学校 徒歩10分 (約730m) 青梅市立吹上中学校 徒歩16分 (約1270m) 青梅みどり第二保育園 徒歩5分 (約330m) 聖母幼稚園 徒歩18分 (約1420m) オザムバリュー野上店 徒歩9分 (約650m) セブンイレブン 青梅師岡町2丁目店 徒歩5分 (約380m) 荒巻医院 徒歩13分 (約1040m) ドラッグストアマツモトキヨシ 青梅野上店 徒歩9分 (約660m) 師岡町2丁目児童遊園 徒歩5分 (約400m) 青梅霞台郵便局 徒歩12分 (約960m) |
||
| 備考 | ※売主の契約不適合責任及び設備修補責任は全て免責 ※売主による境界明示は行いません(現況引渡) ※倉庫あり ※上水道:引込みなし |
||
| 物件番号 | 4472362 | 取引態様 | 専任 |
取扱店舗情報
ハウスドゥ 青梅河辺 ファミリアホームサービス株式会社 店舗詳細ページへ
| 電話番号 | 0428-84-0020 |
|---|---|
| 所在地 | 〒198-0036 東京都青梅市河辺町5丁目10番10 |
| 営業時間 | 10:00~18:00 |
| 定休日 | 水曜日・年末年始(水曜日が祝日の場合は営業) |
| 宅建免許番号 | 国土交通大臣(2)第9218号 |
| アクセス | 店舗への地図はこちら |

来店ご予約
東京都青梅市で価格が似ている物件はこちら
- 東京都
マイページ物件数 - 4,969件
東京都土地新着物件
-
-

-
- 土地
- 1億2,480万円
-
世田谷区瀬田1丁目
-
東急大井町線二子玉川駅
-
-
-

-
- 土地
- 4,650万円
-
世田谷区喜多見2丁目
-
小田急小田原線和泉多摩川駅
-
-
-

-
- 土地
- 1,580万円
-
北区豊島7丁目
-
東京メトロ南北線王子神谷駅
-
-
-

-
- 土地
- 1億5,800万円
-
江戸川区篠崎町7丁目
-
都営新宿線篠崎駅
-
-
-

-
- 土地
- 900万円
-
青梅市千ヶ瀬町5丁目
-
JR青梅線青梅駅
-
-
-

-
- 土地
- 5,250万円
-
江戸川区上篠崎1丁目
-
都営新宿線篠崎駅
-
-
-

-
- 土地
- 6,980万円
-
世田谷区粕谷3丁目
-
京王線千歳烏山駅
-
- お近くの店舗を探す
-
おすすめ物件
-
-

-
- 土地
- 5,780万円
-
板橋区東新町2丁目
-
東武東上線ときわ台
-
-
-

-
- 土地
- 2,680万円
-
練馬区上石神井3丁目
-
西武新宿線上石神井
-
-
-

-
- 土地
- 1億3,280万円
-
世田谷区船橋4丁目
-
小田急小田原線千歳船橋
-
-
-

-
- 土地
- 1億4,000万円
-
浦安市今川3丁目
-
JR京葉線新浦安
-
-
-

-
- 土地
- 2億1,800万円
-
川崎市多摩区登戸
-
小田急小田原線登戸
-
-
-

-
- 土地
- 7,000万円
-
浦安市今川3丁目
-
JR京葉線新浦安
-
-
-

-
- 土地
- 2,800万円
-
葛飾区水元2丁目
-
JR千代田・常磐緩行線金町
-
-
-

-
- 土地
- 7,000万円
-
浦安市今川3丁目
-
JR京葉線新浦安
-
-
-

-
- 土地
- 4,780万円
-
世田谷区桜上水2丁目
-
京王線桜上水
-
-
-

-
- 土地
- 880万円
-
青梅市畑中2丁目
-
JR青梅線青梅
-









担当エージェント:寺田 悠
お客様のご都合に合わせてご案内します。お気軽にお問い合わせください。