千葉市稲毛区宮野木町の土地
NEW 12.08掲載情報更新日:2025年12月22日 次回更新予定日:2026年01月05日
- 1,780万円
-
- 借入ご希望金額
万円 - 借入期間
年 - 借入金利
% - 月々のお支払い金額
円
- 借入ご希望金額
※ 月々のお支払例は目安の試算となりますので、実際の金額とは異なる場合がございます。詳しくは店舗までお問合わせください。
- 千葉市稲毛区宮野木町
-
JR総武本線『稲毛』 バス乗車13分 五反田 停 徒歩4分 (約320m)
千葉市稲毛区宮野木町土地 | 物件情報
◎建築条件なし!お好きなハウスメーカー建築できます ◎整形地・敷地約29.57坪
物件の設備
- 公営水道
- 公共下水
- 都市ガス
物件の特徴
- 整形地
- 建築条件無
物件詳細情報
| 価格 | 1,780万円 | 坪単価 | 坪60.2万円 |
|---|---|---|---|
| 物件種別 | 土地 | ||
| 所在地 | 千葉県千葉市稲毛区宮野木町1551-232 | ||
| アクセス |
|
||
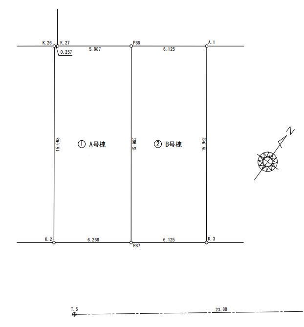
| 土地面積 | 97.77㎡(29.57坪) | 接道 | |
| 私道 | セットバック | ||
| 最適用途 | 住宅用地 | 造成完了時期 | |
| 地目 | 宅地 | 地勢 | |
| 権利 | 所有権 |
||
| 都市計画 | 市街化区域 |
用途地域 | 1種低層 |
| 建ぺい/容積率 | 60% / 150% | 土地国土法 | |
| 許可番号 | 建築基準法 | ||
| 法令制限 | |||
| 小学区 | 宮野木小学校 徒歩16分 (約1230m) | 中学区 | 緑が丘中学校 徒歩24分 (約1850m) |
| 現況 | 古家付 | 引渡 | 相談 |
| 建築条件 | 建築条件なし | ||
| その他費用 | |||
| 周辺環境 | あやめ台第二幼稚園 徒歩12分 (約920m) 柏台第2公園 徒歩12分 (約950m) クリエイトS・D 稲毛長沼店 徒歩14分 (約1080m) セブンイレブン 千葉小中台町店 徒歩18分 (約1380m) 元山医院 徒歩18分 (約1370m) スーパーせんどう長沼店 徒歩15分 (約1180m) スクルドエンジェル保育園 稲毛園 徒歩19分 (約1470m) セイムス稲毛小仲台店 徒歩21分 (約1660m) 園生下田公園 徒歩22分 (約1720m) ワイズマート 西小中台店 徒歩22分 (約1700m) |
||
| 備考 | |||
| 物件番号 | 4519110 | 取引態様 | 媒介 |
取扱店舗情報
ハウスドゥ 東習志野 株式会社Delta company 店舗詳細ページへ
| 電話番号 | 047-411-6912 |
|---|---|
| 所在地 | 〒275-0001 千葉県習志野市東習志野5丁目19-17 宮澤マンションC号室 |
| 営業時間 | 平日9:30~18:30 土日祝日8:30~17:30 |
| 定休日 | 水曜日 |
| 宅建免許番号 | 千葉県知事(1)第18367号 |
| アクセス | 店舗への地図はこちら |

来店ご予約
千葉県千葉市稲毛区で価格が似ている物件はこちら
- 千葉県
マイページ物件数 - 2,844件
千葉県土地新着物件
-
-

-
- 土地
- 2,890万円
-
八千代市勝田台3丁目
-
京成本線勝田台駅
-
-
-

-
- 土地
- 4,980万円
-
八千代市緑が丘西2丁目
-
東葉高速鉄道八千代緑が丘駅
-
-
-

-
- 土地
- 1,990万円
-
船橋市大穴南1丁目
-
京成電鉄松戸線三咲駅
-
-
-

-
- 土地
- 2,090万円
-
船橋市大穴南1丁目
-
京成電鉄松戸線三咲駅
-
-
-

-
- 土地
- 3,000万円
-
柏市増尾台3丁目
-
東武野田線増尾駅
-
-
-

-
- 土地
- 3,598万円
-
八千代市大和田新田
-
東葉高速鉄道八千代緑が丘駅
-
-
-

-
- 土地
- 1,730万円
-
船橋市みやぎ台3丁目
-
京成電鉄松戸線三咲駅
-
- お近くの店舗を探す
-
おすすめ物件
-
-

-
- 土地
- 1,380万円
-
流山市大字小屋
-
東武野田線初石
-
-
-

-
- 土地
- 5,780万円
-
流山市西平井1丁目
-
流鉄流山線平和台
-
-
-

-
- 土地
- 6,980万円
-
流山市おおたかの森東4丁目
-
つくばエクスプレス流山おおたかの森
-
-
-

-
- 土地
- 1,220万円
-
柏市西原1丁目
-
東武野田線江戸川台
-
-
-

-
- 土地
- 400万円
-
香取郡神崎町四季の丘
-
JR成田線下総神崎
-
-
-

-
- 土地
- 2,100万円
-
流山市大字東深井
-
東武野田線運河
-
-
-

-
- 土地
- 2,980万円
-
柏市大青田
-
つくばエクスプレス柏たなか
-
-
-

-
- 土地
- 3,180万円
-
流山市松ケ丘6丁目
-
JR千代田・常磐緩行線南柏
-
-
-

-
- 土地
- 2,980万円
-
流山市大字東深井
-
東武野田線運河
-



□当社は住宅ローンに『自信』があります。是非一度ご相談下さい□
「他社で断られた」 「頭金が無いからな」
「他の返済があるからな」
住宅ローンがご不安な方もお気軽にご相談下さい♪
親身にご相談させていただき、お客様に最適な金融機関をご紹介いたします。
◇頭金0円からのご購入可能(諸費用もOK)
◇他の物件も見てみたい!などお気軽にお申し付け下さい♪
■現地案内会
平日のご見学もお電話1本で駆けつけます。
047-411-6912までお電話下さい。
■ご案内方法
ご来店できないお客様は、ご自宅への送迎やご指定の場所で待ち合わせてご案内。ご希望に合わせ周辺情報もご案内!
■キッズスペース
お子様が退屈しないようDVD、ぬりえ、おもちゃなどをご用意していますので安心してご来店ください。
■専用駐車場
お客様専用駐車場完備!お気軽にご来店お待ちいたしております。
■売却査定買取
仲介による売却はもちろん、ご近所に知られたくない、急いで売却したいときには高額査定で買取します!!
地元密着の情報量とフットワークの良さでお手伝いさせて頂きます。