松戸市新松戸6丁目の土地
掲載情報更新日:2026年01月27日 次回更新予定日:2026年02月10日
※ 月々のお支払例は目安の試算となりますので、実際の金額とは異なる場合がございます。詳しくは店舗までお問合わせください。
- 松戸市新松戸6丁目
-
JR千代田・常磐緩行線『新松戸』 徒歩20分 (約1527m)
JR武蔵野線『新松戸』 徒歩20分 (約1527m)
つくばエクスプレス『南流山』 徒歩25分 (約1933m)
- 取扱会社:ハウスドゥ 松戸中央 株式会社岳南不動産
-
-

- ■お電話はこちら
通話料無料
0800-800-7935
松戸市新松戸6丁目土地 | 物件情報
◆2駅3路線利用可! ◆23区画の大型分譲地! ◆新松戸南小目の前! ◆建築条件なし!
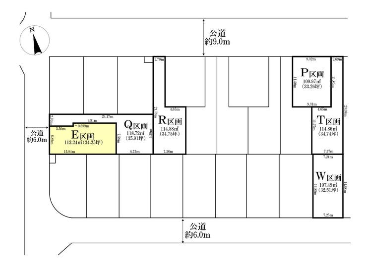
【区画図】
◎区画図:E区画

【外観】
◎外観:E区画(1/26撮影)
【外観】
◎外観:E区画(1/26撮影)
【全体区画図】
◎区画図:E区画
※マウスを乗せると画像が切り替わります。
- 取扱会社
ハウスドゥ 松戸中央
-
-
- ■お電話はこちら
通話料無料
0800-800-7935
◆2駅3路線利用可! ◆23区画の大型分譲地! ◆新松戸南小目の前! ◆建築条件なし!
物件の設備
物件の特徴
- 3沿線以上利用可
- 小学校徒歩10分以内
- 前道6m以上
- スーパーが近い
- 市街地が近い
- 建築条件無
物件詳細情報
| 価格 |
3,690万円 |
坪単価 |
坪107.7万円 |
| 物件種別 |
土地 |
| 所在地 |
千葉県松戸市新松戸6丁目 E区画 |
| アクセス |
- JR千代田・常磐緩行線『新松戸』 徒歩20分 (約1527m)
- JR武蔵野線『新松戸』 徒歩20分 (約1527m)
- つくばエクスプレス『南流山』 徒歩25分 (約1933m)
|
| 土地面積 |
実113.24㎡(34.25坪) |
接道 |
西側(公道)幅 約6.0m
|
| 私道 |
|
セットバック |
|
| 最適用途 |
住宅用地 |
造成完了時期 |
|
| 地目 |
宅地 |
地勢 |
|
| 権利 |
所有権
|
| 分譲情報 |
【販売区画】:6区画 【価格】:3,190万円 ~3,690万円 【最多価格】:3,600万円 ~3,700万円(3戸) 【土地面積】:107.49㎡ ~114.88㎡
|
| 都市計画 |
市街化区域
|
用途地域 |
1種低層 |
| 建ぺい/容積率 |
50%
/ 100%
|
土地国土法 |
|
| 許可番号 |
|
建築基準法 |
|
| 法令制限 |
絶対高さ制限10m |
| 小学区 |
新松戸南小学校 徒歩4分 (約255m) |
中学区 |
新松戸南中学校 徒歩5分 (約351m) |
| 現況 |
更地 |
引渡 |
相談 |
| 建築条件 |
建築条件なし |
| その他費用 |
|
| 周辺環境 |
新松戸駅 徒歩20分 (約1527m) 【TX】南流山駅 徒歩25分 (約1933m) 松戸市立新松戸南小学校 徒歩4分 (約255m) 松戸市立新松戸南中学校 徒歩5分 (約351m) |
| 備考 |
◆2駅3路線利用可! ◆23区画の大型分譲地! ◆新松戸南小目の前! ◆建築条件なし! |
| 物件番号 |
4523448 |
取引態様 |
媒介 |
取扱店舗情報
千葉県松戸市で価格が似ている物件はこちら


-
-
土地
2025.04.26
-
-
- 3,790万円
-
松戸市新松戸6丁目
-
JR武蔵野線「新松戸駅」まで徒歩21分
-
124.53m2

-
-
土地
2025.04.27
-
-
- 3,790万円
-
松戸市新松戸6丁目
-
JR千代田・常磐緩行線「新松戸駅」まで徒歩21分
-
124.53m2

-
-
土地
2025.06.05
-
-
- 3,790万円
-
松戸市新松戸6丁目
-
JR千代田・常磐緩行線「新松戸駅」まで徒歩21分
-
125.00m2

-
-
土地
2025.08.01
-
-
- 3,790万円
-
松戸市古ケ崎
-
JR常磐線「松戸駅」まで徒歩13分
-
133.39m2

-
-
土地
2025.09.29
-
-
- 3,790万円
-
松戸市古ケ崎
-
JR千代田・常磐緩行線「松戸駅」まで徒歩13分
-
133.39m2

-
-
土地
2025.11.03
-
-
- 3,590万円
-
松戸市仲井町3丁目
-
京成電鉄松戸線「上本郷駅」まで徒歩6分
-
117.45m2

-
-
土地
2025.12.02
-
-
- 3,590万円
-
松戸市新松戸6丁目
-
JR千代田・常磐緩行線「新松戸駅」まで徒歩20分
-
114.54m2

-
-
土地
2025.12.02
-
-
- 3,690万円
-
松戸市新松戸6丁目
-
JR千代田・常磐緩行線「新松戸駅」まで徒歩20分
-
135.08m2

-
-
土地
2025.12.02
-
-
- 3,790万円
-
松戸市新松戸6丁目
-
JR千代田・常磐緩行線「新松戸駅」まで徒歩20分
-
115.18m2

-
-
土地
2025.12.12
-
-
- 3,590万円
-
松戸市新松戸6丁目
-
JR千代田・常磐緩行線「新松戸駅」まで徒歩20分
-
109.97m2

-
-
土地
2025.12.12
-
-
- 3,690万円
-
松戸市新松戸6丁目
-
JR千代田・常磐緩行線「新松戸駅」まで徒歩20分
-
107.49m2

-
-
土地
2025.12.12
-
-
- 3,590万円
-
松戸市新松戸6丁目
-
JR千代田・常磐緩行線「新松戸駅」まで徒歩20分
-
114.54m2

-
-
土地
2025.12.12
-
-
- 3,690万円
-
松戸市新松戸6丁目
-
JR千代田・常磐緩行線「新松戸駅」まで徒歩20分
-
135.08m2

-
-
土地
2025.12.12
-
-
- 3,790万円
-
松戸市新松戸6丁目
-
JR千代田・常磐緩行線「新松戸駅」まで徒歩20分
-
115.18m2

-
-
土地
2025.12.22
-
-
- 3,690万円
-
松戸市上本郷
-
JR千代田・常磐緩行線「北松戸駅」まで徒歩11分
-
127.56m2

-
-
土地
2026.01.12
-
-
- 3,790万円
-
松戸市根本
-
JR常磐線「松戸駅」まで徒歩8分
-
48.01m2

-
-
土地
2026.01.19
-
-
- 3,690万円
-
松戸市新松戸6丁目
-
JR千代田・常磐緩行線「新松戸駅」まで徒歩20分
-
107.49m2

-
-
土地
2026.01.20
-
-
- 3,600万円
-
松戸市東平賀
-
JR千代田・常磐緩行線「北小金駅」まで徒歩9分
-
99.61m2

-
-
土地
2026.01.22
-
-
- 3,690万円
-
松戸市新松戸6丁目
-
JR武蔵野線「新松戸駅」まで徒歩20分
-
113.24m2

-
-
土地
2026.01.22
-
-
- 3,590万円
-
松戸市新松戸6丁目
-
JR武蔵野線「新松戸駅」まで徒歩20分
-
109.97m2

-
-
土地
2026.01.22
-
-
- 3,690万円
-
松戸市新松戸6丁目
-
JR武蔵野線「新松戸駅」まで徒歩20分
-
107.49m2

-
-
土地
2026.01.22
-
-
- 3,600万円
-
松戸市東平賀
-
JR千代田・常磐緩行線「北小金駅」まで徒歩9分
-
99.61m2

-
-
土地
2026.01.22
-
-
- 3,590万円
-
松戸市新松戸6丁目
-
JR武蔵野線「新松戸駅」まで徒歩20分
-
114.54m2

-
-
土地
2026.01.22
-
-
- 3,690万円
-
松戸市新松戸6丁目
-
JR武蔵野線「新松戸駅」まで徒歩20分
-
135.08m2

-
-
土地
2026.01.22
-
-
- 3,790万円
-
松戸市新松戸6丁目
-
JR武蔵野線「新松戸駅」まで徒歩20分
-
115.18m2

-
-
土地
2026.01.30
-
-
- 3,790万円
-
松戸市中根
-
JR千代田・常磐緩行線「馬橋駅」まで徒歩9分
-
120.48m2

-
-
土地
2026.01.30
-
-
- 3,690万円
-
松戸市中根
-
JR千代田・常磐緩行線「馬橋駅」まで徒歩9分
-
120.70m2

千葉県松戸市の
土地
一覧から探す
千葉県松戸市で種別を変更して探す
担当エージェント:柿本 佳崇人
【家を買うならハウスドゥ 松戸中央!へ】
【松戸市は子育て世帯にやさしい!】
■共働き子育てしやすい街2年連続1位!
■待機児童9年連続ゼロ!
◆物件のご見学、詳細を知りたい
◆住宅ローンのご相談
など、少しでも気になると思ったら
お気軽にフリーダイヤル【0800-800-7935】までお問い合わせ下さい!