松戸市新松戸6丁目の土地
NEW 12.12掲載情報更新日:2025年12月12日 次回更新予定日:2025年12月26日
- 3,190万円
-
- 借入ご希望金額
万円 - 借入期間
年 - 借入金利
% - 月々のお支払い金額
円
- 借入ご希望金額
※ 月々のお支払例は目安の試算となりますので、実際の金額とは異なる場合がございます。詳しくは店舗までお問合わせください。
- 松戸市新松戸6丁目
-
JR千代田・常磐緩行線『新松戸』 徒歩20分 (約1527m)
JR武蔵野線『新松戸』 徒歩20分 (約1527m)
つくばエクスプレス『南流山』 徒歩25分 (約1933m)
松戸市新松戸6丁目土地 | 物件情報
◆2駅3路線利用可! ◆23区画の大型分譲地! ◆新松戸南小目の前! ◆建築条件なし!
◆2駅3路線利用可! ◆23区画の大型分譲地! ◆新松戸南小目の前! ◆建築条件なし!
物件の設備
- 電気
- 公営水道
- 公共下水
- 都市ガス
物件の特徴
- 3沿線以上利用可
- 小学校徒歩10分以内
- 前道6m以上
- スーパーが近い
- 市街地が近い
- 建築条件無
物件詳細情報
| 価格 | 3,190万円 | 坪単価 | 坪91.8万円 |
|---|---|---|---|
| 物件種別 | 土地 | ||
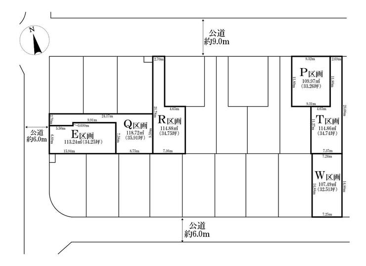
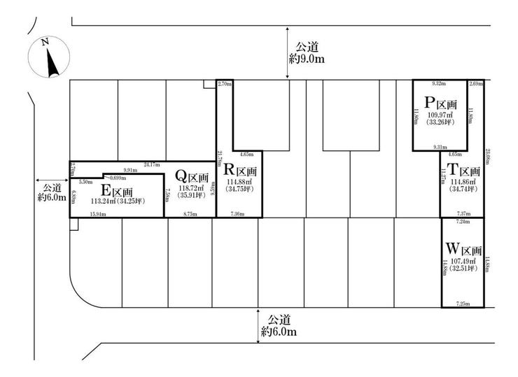
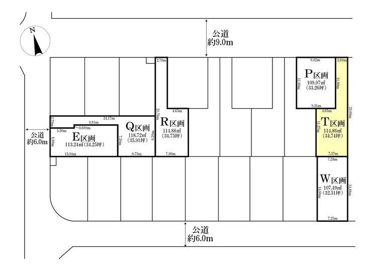
| 所在地 | 千葉県松戸市新松戸6丁目 T区画 | ||
| アクセス |
|
||
| 土地面積 | 実114.86㎡(34.74坪) | 接道 | 北側(公道)幅 約9.0m |
| 私道 | セットバック | ||
| 最適用途 | 住宅用地 | 造成完了時期 | |
| 地目 | 宅地 | 地勢 | |
| 権利 | 所有権 |
||
| 分譲情報 | 【販売区画】:6区画 【価格】:3,190万円 ~3,690万円 【最多価格】:3,600万円 ~3,700万円(3戸) 【土地面積】:107.49㎡ ~114.88㎡ |
||
| 都市計画 | 市街化区域 |
用途地域 | 1種低層 |
| 建ぺい/容積率 | 50% / 100% | 土地国土法 | |
| 許可番号 | 建築基準法 | ||
| 法令制限 | 絶対高さ制限10m | ||
| 小学区 | 新松戸南小学校 徒歩4分 (約255m) | 中学区 | 新松戸南中学校 徒歩5分 (約351m) |
| 現況 | 更地 | 引渡 | 相談 |
| 建築条件 | 建築条件なし | ||
| その他費用 | |||
| 周辺環境 | 新松戸駅 徒歩20分 (約1527m) 【TX】南流山駅 徒歩25分 (約1933m) 松戸市立新松戸南小学校 徒歩4分 (約255m) 松戸市立新松戸南中学校 徒歩5分 (約351m) |
||
| 備考 | ◆2駅3路線利用可! ◆23区画の大型分譲地! ◆新松戸南小目の前! ◆建築条件なし! | ||
| 物件番号 | 4523475 | 取引態様 | 媒介 |
取扱店舗情報
| 電話番号 | 047-710-7935 |
|---|---|
| 所在地 | 〒271-0065 千葉県松戸市南花島1丁目7-6 |
| 営業時間 | 10:00~18:00 |
| 定休日 | 水曜日 |
| 宅建免許番号 | 国土交通大臣(2)第9365号 |
| アクセス | 店舗への地図はこちら |

来店ご予約
千葉県松戸市で価格が似ている物件はこちら
- 千葉県
マイページ物件数 - 2,884件
最近見た物件
-
-

-
- 中古マンション
- 2,580万円
-
神戸市須磨区道正台1丁目
-
神戸市営地下鉄西神山手線妙法寺
-
-
-

-
- 新築一戸建て
- 3,399万円
-
岡山市中区関
-
JR山陽本線東岡山
-
千葉県土地新着物件
-
-

-
- 土地
- 3,299万円
-
柏市亀甲台町1丁目
-
JR常磐線柏駅
-
-
-

-
- 土地
- 3,290万円
-
松戸市二十世紀が丘戸山町
-
北総鉄道北国分駅
-
-
-

-
- 土地
- 3,390万円
-
松戸市二十世紀が丘戸山町
-
北総鉄道北国分駅
-
-
-

-
- 土地
- 3,080万円
-
流山市平和台5丁目
-
つくばエクスプレス流山セントラルパーク駅
-
-
-

-
- 土地
- 3,299万円
-
柏市関場町
-
JR常磐線柏駅
-
-
-

-
- 土地
- 2,499万円
-
柏市関場町
-
JR常磐線柏駅
-
-
-

-
- 土地
- 1,999万円
-
柏市南逆井5丁目
-
京成電鉄松戸線五香駅
-
- お近くの店舗を探す
-
おすすめ物件
-
-

-
- 土地
- 1,380万円
-
流山市大字小屋
-
東武野田線初石
-
-
-

-
- 土地
- 3,180万円
-
流山市松ケ丘6丁目
-
JR千代田・常磐緩行線南柏
-
-
-

-
- 土地
- 4,598万円
-
流山市平和台3丁目
-
つくばエクスプレス流山セントラルパーク
-
-
-

-
- 土地
- 1,220万円
-
柏市西原1丁目
-
東武野田線江戸川台
-
-
-

-
- 土地
- 6,980万円
-
流山市おおたかの森東4丁目
-
つくばエクスプレス流山おおたかの森
-
-
-

-
- 土地
- 5,780万円
-
流山市西平井1丁目
-
流鉄流山線平和台
-
-
-

-
- 土地
- 2,980万円
-
柏市大青田
-
つくばエクスプレス柏たなか
-
-
-

-
- 土地
- 400万円
-
香取郡神崎町四季の丘
-
JR成田線下総神崎
-
-
-

-
- 土地
- 680万円
-
野田市野田
-
東武野田線愛宕
-
-
-

-
- 土地
- 2,100万円
-
流山市大字東深井
-
東武野田線運河
-





担当エージェント:柿本 佳崇人
【家を買うならハウスドゥ 松戸中央!へ】
【松戸市は子育て世帯にやさしい!】
■共働き子育てしやすい街2年連続1位!
■待機児童9年連続ゼロ!
◆物件のご見学、詳細を知りたい
◆住宅ローンのご相談
など、少しでも気になると思ったら
お気軽にフリーダイヤル【0800-800-7935】までお問い合わせ下さい!