岡山市東区益野町の土地
掲載情報更新日:2026年04月06日 次回更新予定日:2026年04月20日
- 1,480万円
-
- 借入ご希望金額
万円 - 借入期間
年 - 借入金利
% - 月々のお支払い金額
円
- 借入ご希望金額
※ 月々のお支払例は目安の試算となりますので、実際の金額とは異なる場合がございます。詳しくは店舗までお問合わせください。
- 岡山市東区益野町
-
JR赤穂線『大多羅』 徒歩19分 (約1510m)
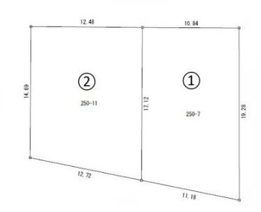
益野町分譲地 | 分譲区画
岡山県岡山市東区で価格が似ている物件はこちら
- 岡山県
マイページ物件数 - 4,635件
最近見た物件
-
-

-
- 土地
- 1,790万円
-
津市久居二ノ町
-
近鉄名古屋線久居
-
-
-

-
- 収益
- 1,798万円
-
足立区足立4丁目
-
東武伊勢崎・大師線五反野
-
-
-

-
- 新築一戸建て
- 2,980万円
-
広島市西区己斐大迫2丁目
-
国迫団地バス停
-
岡山県土地新着物件
- お近くの店舗を探す
-


















