岡山市東区益野町の土地
掲載情報更新日:2026年04月27日 次回更新予定日:2026年05月11日
- 1,390万円
-
- 借入ご希望金額
万円 - 借入期間
年 - 借入金利
% - 月々のお支払い金額
円
- 借入ご希望金額
※ 月々のお支払例は目安の試算となりますので、実際の金額とは異なる場合がございます。詳しくは店舗までお問合わせください。
- 岡山市東区益野町
-
JR赤穂線『大多羅』 徒歩19分 (約1510m)
岡山市東区益野町土地 | 物件情報
物件の設備
- 公営水道
- 公共下水
- プロパンガス
- 個別プロパン
物件の特徴
- 即引渡可
- 建築条件無
物件詳細情報
| 価格 | 1,390万円 | 坪単価 | 坪23.2万円 |
|---|---|---|---|
| 物件種別 | 土地 | ||
| 所在地 | 岡山県岡山市東区益野町 1号地 | ||
| アクセス |
|
||
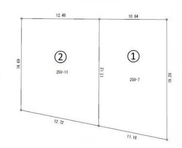
| 土地面積 | 198.46㎡(60.03坪) | 接道 | 北側(私道)幅 約4.0m 間口 約10.80m |
| 私道 | セットバック | ||
| 最適用途 | 造成完了時期 | ||
| 地目 | 宅地 | 地勢 | |
| 権利 | 所有権 |
||
| 分譲情報 | 【販売区画】:2区画 【価格】:1,470万円 ~1,480万円 |
||
| 都市計画 | 市街化区域 |
用途地域 | 1種低層 |
| 建ぺい/容積率 | 50% / 100% | 土地国土法 | |
| 許可番号 | 建築基準法 | ||
| 法令制限 | |||
| 小学区 | 可知小学校 徒歩8分 (約610m) | 中学区 | 旭東中学校 徒歩20分 (約1590m) |
| 現況 | 更地 | 引渡 | 即 |
| 建築条件 | 建築条件なし | ||
| その他費用 | |||
| 周辺環境 | 大西内科消化器科医院 徒歩1分 (約60m) エニタイムフィットネス岡山益野店 徒歩2分 (約110m) ローソン岡山益野店 徒歩4分 (約250m) ダイレックス益野店 徒歩4分 (約320m) マルナカ益野店 徒歩4分 (約300m) DCM西大寺店 徒歩4分 (約270m) 岡山市立可知小学校 徒歩8分 (約610m) エディオン西大寺店 徒歩11分 (約880m) ファミリーマート岡山西大寺松崎店 徒歩17分 (約1320m) 岡山市立旭東中学校 徒歩20分 (約1590m) |
||
| 備考 | 徒歩圏内に買物施設が充実しています♪ ■建築条件なし ■北側位置指定道路について、持分を3分の1有します ■上水道敷地内引込管20mm |
||
| 物件番号 | 4559716 | 取引態様 | 媒介 |
取扱店舗情報
ハウスドゥ 岡山西大寺松崎 日笠REC株式会社 店舗詳細ページへ
| 電話番号 | 086-230-1702 |
|---|---|
| 所在地 | 〒704-8183 岡山県岡山市東区西大寺松崎162-5 |
| 営業時間 | 10:00~18:00 |
| 定休日 | 水曜日、年末年始 |
| 宅建免許番号 | 岡山県知事(1)第6175号 |
| アクセス | 店舗への地図はこちら |

来店ご予約
岡山県岡山市東区で価格が似ている物件はこちら
- 岡山県
マイページ物件数 - 4,690件
最近見た物件
-
-

-
- 土地
- 945.84万円
-
西条市丹原町北田野
-
JR予讃線壬生川
-
-
-

-
- 土地
- 1,080万円
-
島原市新湊2丁目
-
松ヶ丘団地前バス停
-
-
-

-
- 中古一戸建て
- 250万円
-
福山市新市町大字新市
-
JR福塩線新市
-
岡山県土地新着物件
- お近くの店舗を探す
-




















