名古屋市緑区水広1丁目 全2区画 A区画 建築条件なし土地
NEW 03.09掲載情報更新日:2026年03月14日 次回更新予定日:2026年03月28日
- 2,780万円
-
- 借入ご希望金額
万円 - 借入期間
年 - 借入金利
% - 月々のお支払い金額
円
- 借入ご希望金額
※ 月々のお支払例は目安の試算となりますので、実際の金額とは異なる場合がございます。詳しくは店舗までお問合わせください。
- 名古屋市緑区水広1丁目
-
名古屋市桜通線『徳重』 徒歩23分 (約1800m)
名古屋市桜通線『神沢』 徒歩25分 (約1987m)
名古屋市営バス『「水弘橋」停』 徒歩2分 (約125m)
名古屋市緑区水広1丁目 全2区画 A区画 建築条件なし土地土地 | 物件情報
【桜通線「徳重」「神沢」利用可能】閑静な住宅地◎建築条件なし
\あれこれ不動産サイトを見なくても当店で解決/
当店はエリア内の物件の大半を最・新・情・報で掲載!
ほかのページで気になる物件もご相談ください。
◆鳴海東部小学校/扇台中学校
◆名古屋市営バス「水広橋」停 徒歩約2分
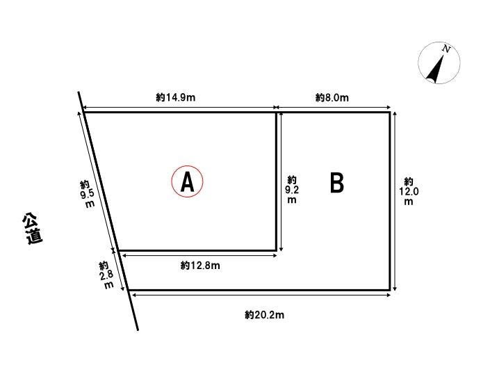
◆前面道約9m
◆間口約9.5m
◆周辺施設充実エリア
※写真をクリックすると、詳細をご覧いただけます。
=========================
家を建てるってどうしたらいいの?どんな費用がかかるの?土地選びって?の疑問にすべて丁寧にお答えします。
=========================
物件の設備
- 電気
- 公営水道
- 公共下水
- 側溝
- 都市ガス
物件の特徴
- 前道6m以上
- 更地渡
- 建築条件無
物件詳細情報
| 価格 | 2,780万円 | 坪単価 | 坪73.9万円 |
|---|---|---|---|
| 物件種別 | 土地 | ||
| 所在地 | 愛知県名古屋市緑区水広1丁目 A区画 | ||
| アクセス |
|
||
| 土地面積 | 実124.36㎡(37.61坪) | 接道 | 南西側(公道)幅 約9.0m 間口 約9.50m |
| 私道 | セットバック | ||
| 最適用途 | 住宅用地 | 造成完了時期 | |
| 地目 | 宅地 | 地勢 | 高台 |
| 権利 | 所有権 |
||
| 分譲情報 | |||
| 都市計画 | 市街化区域 |
用途地域 | 1種低層 |
| 建ぺい/容積率 | 40% / 80% | 土地国土法 | |
| 許可番号 | 建築基準法 | ||
| 法令制限 | 都市再生特別措置法・宅地造成及び特定盛土等規制法・10m高度地区・緑化地域・外壁後退 | ||
| 小学区 | 鳴海東部小学校 徒歩11分 (約830m) | 中学区 | 扇台中学校 徒歩17分 (約1290m) |
| 現況 | 更地 | 引渡 | 相談(更地渡し) |
| 建築条件 | 建築条件なし | ||
| その他費用 | |||
| 周辺環境 | 名古屋市立鳴海東部小学校 徒歩11分 (約830m) 名古屋市立扇台中学校 徒歩17分 (約1290m) 水広わかば保育園 徒歩6分 (約410m) 平手幼稚園 徒歩10分 (約730m) 旬楽膳 滝ノ水店 徒歩15分 (約1200m) ウエルシア名古屋横吹町店 徒歩7分 (約500m) もりかわファミリークリニック 徒歩5分 (約350m) 水広公園 徒歩7分 (約490m) ファミリーマート緑水広店 徒歩5分 (約380m) 名古屋市平手郵便局 徒歩6分 (約480m) |
||
| 備考 | 分筆前につき面積の増減有 | ||
| 物件番号 | 4629386 | 取引態様 | 媒介 |
取扱店舗情報
ハウスドゥ みどり市民病院前 ファミリアホームサービス株式会社 店舗詳細ページへ
| 電話番号 | 052-875-8705 |
|---|---|
| 所在地 | 〒458-0037 愛知県名古屋市緑区潮見が丘2丁目290番地1 |
| 営業時間 | 9:00~18:00 |
| 定休日 | 水曜日、年末年始 |
| 宅建免許番号 | 国土交通大臣(2)第9218号 |
| アクセス | 店舗への地図はこちら |

来店ご予約
愛知県名古屋市緑区で価格が似ている物件はこちら
- 愛知県
マイページ物件数 - 32,187件
愛知県土地新着物件
-
-

-
- 土地
- 2,890万円
-
名古屋市天白区野並2丁目
-
名古屋市桜通線野並駅
-
-
-

-
- 土地
- 2,990万円
-
名古屋市天白区野並2丁目
-
名古屋市桜通線野並駅
-
-
-

-
- 土地
- 2,790万円
-
名古屋市天白区野並2丁目
-
名古屋市桜通線野並駅
-
-
-

-
- 土地
- 2,290万円
-
名古屋市天白区島田5丁目
-
名古屋市鶴舞線塩釜口駅
-
-
-

-
- 土地
- 2,690万円
-
名古屋市天白区島田5丁目
-
名古屋市鶴舞線塩釜口駅
-
-
-

-
- 土地
- 2,490万円
-
名古屋市天白区島田5丁目
-
名古屋市鶴舞線塩釜口駅
-
-
-

-
- 土地
- 2,090万円
-
刈谷市泉田町北中浜
-
名鉄名古屋本線富士松駅
-
- お近くの店舗を探す
-
おすすめ物件
-
-

-
- 土地
- 1,598万円
-
稲沢市北島町神明前
-
名鉄名古屋本線奥田
-
-
-

-
- 土地
- 980万円
-
高浜市向山町1丁目
-
名鉄三河線三河高浜
-
-
-

-
- 土地
- 850万円
-
愛西市下東川町中山
-
名鉄尾西線丸渕
-
-
-

-
- 土地
- 2,980万円
-
日進市梅森町新田
-
名古屋市鶴舞線平針
-
-
-

-
- 土地
- 2,400万円
-
春日井市熊野町
-
JR中央本線神領
-
-
-

-
- 土地
- 300万円
-
春日井市桃山町1丁目
-
名鉄小牧線小牧口
-
-
-

-
- 土地
- 4,199万円
-
名古屋市名東区平和が丘2丁目
-
名古屋市東山線一社
-
-
-

-
- 土地
- 490万円
-
江南市後飛保町神明野
-
名鉄犬山線江南
-
-
-

-
- 土地
- 2,200万円
-
東海市荒尾町赤羽根
-
名鉄常滑線聚楽園
-
-
-

-
- 土地
- 1,298万円
-
知多郡武豊町字内鉋
-
名鉄河和線上ゲ
-





担当エージェント:小崎 瑛大
《平日もご案内可能!》
百聞は一見学にしかず。見るだけOK、聞くだけOK!
事前にご予約いただくと、スムーズにご見学いただけます。