高石市加茂2丁目の土地
掲載情報更新日:2026年04月10日 次回更新予定日:2026年04月24日
- 3,380万円
-
- 借入ご希望金額
万円 - 借入期間
年 - 借入金利
% - 月々のお支払い金額
円
- 借入ご希望金額
※ 月々のお支払例は目安の試算となりますので、実際の金額とは異なる場合がございます。詳しくは店舗までお問合わせください。
- 高石市加茂2丁目
-
南海電鉄本線『高石』 徒歩12分 (約910m)
南海電鉄高師ノ浜線『伽羅橋』 徒歩13分 (約1020m)
南海電鉄高師ノ浜線『高師浜』 徒歩15分 (約1130m)
高石市加茂2丁目土地 | 物件情報
最新・未公開物件、更新中! まずは『ハウスドゥ高石』へお気軽にお問い合わせください。
■物件おすすめポイント■
★建築条件なし!
★北東・南東角地!
■保育士経験のあるスタッフが在駐■
キッズスペースやおむつ交換台も完備しており、小さなお子様連れのお客様も安心してご来店いただけます
■周辺環境■
・高石駅東口まで徒歩12分(約910m)
・高石市立加茂小学校まで徒歩5分(約330m)
・ドラッグセイムス 高石加茂店まで徒歩5分(約330m)
・高石加茂郵便局まで徒歩5分(約370m)
・ファミリーマート 高石加茂三丁目店まで徒歩5分(約400m)
・高石市役所まで徒歩5分(約400m)
・関西スーパー 高石駅前店まで徒歩7分(約560m)
・池田泉州銀行高石支店まで徒歩8分(約580m)
・キリン堂 高石加茂店まで徒歩8分(約580m)
・高石市立加茂幼稚園まで徒歩9分(約720m)
物件の設備
- 上水道
- 公営水道
- 下水道
- 公共下水
- 都市ガス
物件の特徴
- 2沿線利用可
- 総合病院徒歩10分以内
- 小学校徒歩10分以内
- スーパーが近い
- 角地
- 建築条件無
物件詳細情報
| 価格 | 3,380万円 | 坪単価 | 坪76.9万円 |
|---|---|---|---|
| 物件種別 | 土地 | ||
| 所在地 | 大阪府高石市加茂2丁目 | ||
| アクセス |
|
||
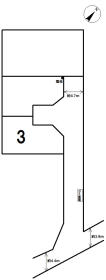
| 土地面積 | 公145.26㎡(43.94坪) | 接道 | 北東側(公道)幅 約4.7m 間口 約8.50m 南東側(公道)幅 約4.7m 間口 約14.00m |
| 私道 | セットバック | ||
| 最適用途 | 住宅用地 | 造成完了時期 | |
| 地目 | 宅地 | 地勢 | |
| 権利 | 所有権 |
||
| 都市計画 | 市街化区域 |
用途地域 | 1種中高 |
| 建ぺい/容積率 | 60% / 200% | 土地国土法 | |
| 許可番号 | 建築基準法 | ||
| 法令制限 | 準防火地域・第二種高度地区 | ||
| 小学区 | 加茂小学校 徒歩5分 (約330m) | 中学区 | 取石中学校 徒歩17分 (約1320m) |
| 現況 | 更地 | 引渡 | 相談 |
| 建築条件 | 建築条件なし | ||
| その他費用 | |||
| 周辺環境 | 高石駅東口 徒歩12分 (約910m) 高石市立加茂小学校 徒歩5分 (約330m) ドラッグセイムス 高石加茂店 徒歩5分 (約330m) 高石加茂郵便局 徒歩5分 (約370m) ファミリーマート 高石加茂三丁目店 徒歩5分 (約400m) 高石市役所 徒歩5分 (約400m) 関西スーパー 高石駅前店 徒歩7分 (約560m) 池田泉州銀行高石支店 徒歩8分 (約580m) キリン堂 高石加茂店 徒歩8分 (約580m) 高石市立加茂幼稚園 徒歩9分 (約720m) |
||
| 備考 | ★建築条件なし! ★北東・南東角地! |
||
| 物件番号 | 4637523 | 取引態様 | 媒介 |
取扱店舗情報
ハウスドゥ 高石 有限会社マックスグリット 店舗詳細ページへ
| 電話番号 | 072-268-5708 |
|---|---|
| 所在地 | 〒592-0014 大阪府高石市綾園2丁目17-18 武平ビル1階 |
| 営業時間 | 9:00~18:00 |
| 定休日 | 水曜日、年末年始 |
| 宅建免許番号 | 大阪府知事(1)第66684号 |
| アクセス | 店舗への地図はこちら |

来店ご予約
- 大阪府
マイページ物件数 - 18,173件
最近見た物件
-
-

-
- 土地
- 837万円
-
伊勢市小俣町明野
-
近鉄山田鳥羽志摩線明野
-
大阪府土地新着物件
- お近くの店舗を探す
-
おすすめ物件
-
-

-
- 土地
- 4,130万円
-
摂津市正雀本町2丁目
-
阪急電鉄京都線正雀
-
-
-

-
- 土地
- 5,500万円
-
岸和田市小松里町
-
JR阪和線久米田
-
-
-

-
- 土地
- 1,100万円
-
大阪市住之江区安立1丁目
-
南海電鉄本線住ノ江
-
-
-

-
- 土地
- 780万円
-
堺市美原区阿弥
-
南海電鉄高野線北野田
-
-
-

-
- 土地
- 980万円
-
泉大津市松之浜町2丁目
-
南海電鉄本線松ノ浜
-
-
-

-
- 土地
- 1,480万円
-
泉南郡熊取町五門東3丁目
-
JR阪和線熊取
-
-
-

-
- 土地
- 480万円
-
貝塚市北町
-
南海電鉄本線貝塚
-
-
-

-
- 土地
- 880万円
-
阪南市緑ヶ丘2丁目
-
JR阪和線和泉鳥取
-
-
-

-
- 土地
- 2,300万円
-
東大阪市稲田本町1丁目
-
JR片町線徳庵
-
-
-

-
- 土地
- 4,980万円
-
堺市西区上野芝向ヶ丘町1丁
-
JR阪和線上野芝
-










お客様の『最善』を第一に。
お客様の不安に寄り添い、どんな些細な疑問も解消します。
10年、20年後も『ハウスドゥ高石で良かった!』と言っていただけるよう、一期一会の出会いを大切に全力で努めます。