名古屋市南区赤坪町の土地
掲載情報更新日:2026年05月21日 次回更新予定日:2026年06月04日
- 2,824万円
-
- 借入ご希望金額
万円 - 借入期間
年 - 借入金利
% - 月々のお支払い金額
円
- 借入ご希望金額
※ 月々のお支払例は目安の試算となりますので、実際の金額とは異なる場合がございます。詳しくは店舗までお問合わせください。
- 名古屋市南区赤坪町
-
名古屋市桜通線『鶴里』 徒歩18分 (約1400m)
名鉄名古屋本線『本星崎』 徒歩19分 (約1500m)
名鉄名古屋本線『本笠寺』 徒歩19分 (約1500m)
市バス『「赤坪町」停』 徒歩8分 (約600m)
名古屋市南区赤坪町土地 | 物件情報
笠東小学校徒歩3分◆南向き・約51坪の住宅用地◆更地渡し◆お好きなハウスメーカーにて建物建築可能◎
・名古屋市桜通線/鶴里駅 徒歩18分
・名鉄名古屋本線/本星崎・本笠寺駅 徒歩19分
・市バス「赤坪町」停 徒歩8分
・建築条件なし/お好きなハウスメーカーにて建物建築可能です!
・更地渡し◎
・コンビニ・ドラッグストア、スーパーが徒歩圏内に揃う暮らしやすい環境が整っています♪
物件の設備
- 電気
- 上水道
- 公営水道
- 下水道
- 公共下水
- 都市ガス
物件の特徴
- 小学校徒歩10分以内
- 前道6m以上
- 南側道路面す
- スーパーが近い
- 閑静な住宅街
- 周辺交通量少なめ
- 市街地が近い
- 陽当り良好
- 平坦地
- 整形地
- 更地渡
- 建築条件無
物件詳細情報
| 価格 | 2,824万円 | 坪単価 | 坪55.0万円 |
|---|---|---|---|
| 物件種別 | 土地 | ||
| 所在地 | 愛知県名古屋市南区赤坪町 | ||
| アクセス |
|
||
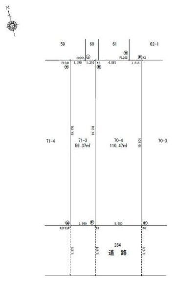
| 土地面積 | 公169.78㎡(51.35坪) | 接道 | 南側(公道)幅 約6.0m 間口 約8.58m |
| 私道 | セットバック | ||
| 最適用途 | 住宅用地 | 造成完了時期 | |
| 地目 | 宅地 | 地勢 | |
| 権利 | 所有権 地役権 |
||
| 都市計画 | 市街化区域 |
用途地域 | 1種住居 |
| 建ぺい/容積率 | 60% / 200% | 土地国土法 | |
| 許可番号 | 建築基準法 | ||
| 法令制限 | 準防火地域・31m高度地区・緑化地域 | ||
| 小学区 | 笠東小学校 徒歩3分 (約240m) | 中学区 | 本城中学校 徒歩17分 (約1300m) |
| 現況 | 古家付 | 引渡 | 相談(更地渡し) |
| 建築条件 | 建築条件なし | ||
| その他費用 | |||
| 周辺環境 | 名古屋市立笠東小学校 徒歩3分 (約240m) 名古屋市立本城中学校 徒歩18分 (約1380m) 芝公園 徒歩4分 (約320m) ローソン南区芝町店 徒歩5分 (約370m) 芝保育園 徒歩6分 (約460m) ファミリーマート 緑鳴海町山下店 徒歩15分 (約1160m) 名古屋赤坪郵便局 徒歩7分 (約550m) ドラッグスギヤマ笠寺店 徒歩7分 (約560m) スーパーヤマダイ 笠寺店 徒歩10分 (約800m) Vドラッグ鳴海山下店 徒歩15分 (約1140m) |
||
| 備考 | ・名古屋市桜通線/鶴里駅 徒歩18分 ・名鉄名古屋本線/本星崎・本笠寺駅 徒歩19分 ・市バス「赤坪町」停 徒歩8分 ・建築条件なし/お好きなハウスメーカーにて建物建築可能です! ・更地渡し◎ ・コンビニ・ドラッグストア、スーパーが徒歩圏内に揃う暮らしやすい環境が整っています♪ ・地役権設定あり |
||
| 物件番号 | 4668168 | 取引態様 | 媒介 |
取扱店舗情報
| 電話番号 | 052-626-5600 |
|---|---|
| 所在地 | 〒457-0051 愛知県名古屋市南区笠寺町柚ノ木11番地3 |
| 営業時間 | 10:00~19:00 |
| 定休日 | 水曜日 |
| 宅建免許番号 | 愛知県知事(2)第23680号 |
| アクセス | 店舗への地図はこちら |

来店ご予約
愛知県名古屋市南区で価格が似ている物件はこちら
- 愛知県
マイページ物件数 - 32,275件
最近見た物件
-
-

-
- 土地
- 890万円
-
宇都宮市細谷町
-
徒歩
-
愛知県土地新着物件
-
-

-
- 土地
- 1億300万円
-
名古屋市中村区岩塚町字神田
-
名古屋市東山線岩塚駅
-
-
-

-
- 土地
- 2,570万円
-
清須市一場新町
-
JR東海道本線清洲駅
-
-
-

-
- 土地
- 2,300万円
-
清須市一場新町
-
JR東海道本線清洲駅
-
-
-

-
- 土地
- 1,833万円
-
豊橋市東小鷹野3丁目
-
JR東海道本線豊橋駅
-
-
-

-
- 土地
- 1,833万円
-
豊橋市東小鷹野3丁目
-
JR東海道本線豊橋駅
-
-
-

-
- 土地
- 2,380万円
-
長久手市東田
-
愛知高速東部丘陵線公園西駅
-
-
-

-
- 土地
- 1,833万円
-
豊橋市東小鷹野3丁目
-
JR東海道本線豊橋駅
-
- お近くの店舗を探す
-
おすすめ物件
-
-

-
- 土地
- 300万円
-
一宮市千秋町塩尻字南出
-
名鉄犬山線岩倉
-
-
-

-
- 土地
- 3,980万円
-
岩倉市栄町2丁目
-
名鉄犬山線岩倉
-
-
-

-
- 土地
- 1,500万円
-
半田市亀崎高根町3丁目
-
JR武豊線亀崎
-
-
-

-
- 土地
- 990万円
-
春日井市坂下町7丁目
-
JR中央本線高蔵寺
-
-
-

-
- 土地
- 980万円
-
稲沢市田代2丁目
-
名鉄津島線青塚
-
-
-

-
- 土地
- 880万円
-
稲沢市平和町西光坊宮西
-
名鉄尾西線渕高
-
-
-

-
- 土地
- 1,600万円
-
半田市板山町3丁目
-
名鉄河和線青山
-
-
-

-
- 土地
- 1,300万円
-
一宮市丹羽字栽松寺腰
-
名鉄名古屋本線名鉄一宮
-
-
-

-
- 土地
- 1,898万円
-
半田市栄町2丁目
-
名鉄河和線成岩
-
-
-

-
- 土地
- 3,500万円
-
一宮市小信中島字郷東
-
名鉄尾西線奥町
-



担当エージェント:山中 則昌
◆即日ご案内致します 早朝~夜21時くらい迄ご都合に合わせます。
◆頭金0円フルローン可能!
◇住まい選びのプロフェッショナル・ハウスドゥ南区笠寺 地域担当の私達にお任せ下さい!
◆見るだけOK!聞くだけOK!遊びに来るだけOK!◆
① お客様の不安を解消します
② お客様の為に尽くします
③ お客様に損をさせません
私共はこのお約束を守れるように常に努力し、笑顔を大切にし、
お客様が気持ち良くお家選びをしていただくことに全力を尽くします。
◎ハウスドゥ南区笠寺はこんなお店です◎
●駐車場5台ご用意しております
●キッズスペースがありますのでお子様連れでもご安心ください。
●ドリンクやお菓子のサービスもあるのでごゆっくりお過ごしください♪
来店・見学のご希望時はご予約をお勧めいたします。
ご予約いただけますとよりスムーズにご案内できます。