泉佐野市南中安松の土地
NEW 04.09掲載情報更新日:2026年04月19日 次回更新予定日:2026年05月03日
- 1,880万円
-
- 借入ご希望金額
万円 - 借入期間
年 - 借入金利
% - 月々のお支払い金額
円
- 借入ご希望金額
※ 月々のお支払例は目安の試算となりますので、実際の金額とは異なる場合がございます。詳しくは店舗までお問合わせください。
- 泉佐野市南中安松
-
南海電鉄本線『羽倉崎』 徒歩17分 (約1360m)
JR阪和線『長滝』 徒歩23分 (約1840m)
泉佐野市南中安松土地 | 物件情報
物件の設備
- 電気
- 公営水道
- 浄化槽
- 都市ガス
物件の特徴
- 建築条件無
物件詳細情報
| 価格 | 1,880万円 | 坪単価 | 坪33.7万円 |
|---|---|---|---|
| 物件種別 | 土地 | ||
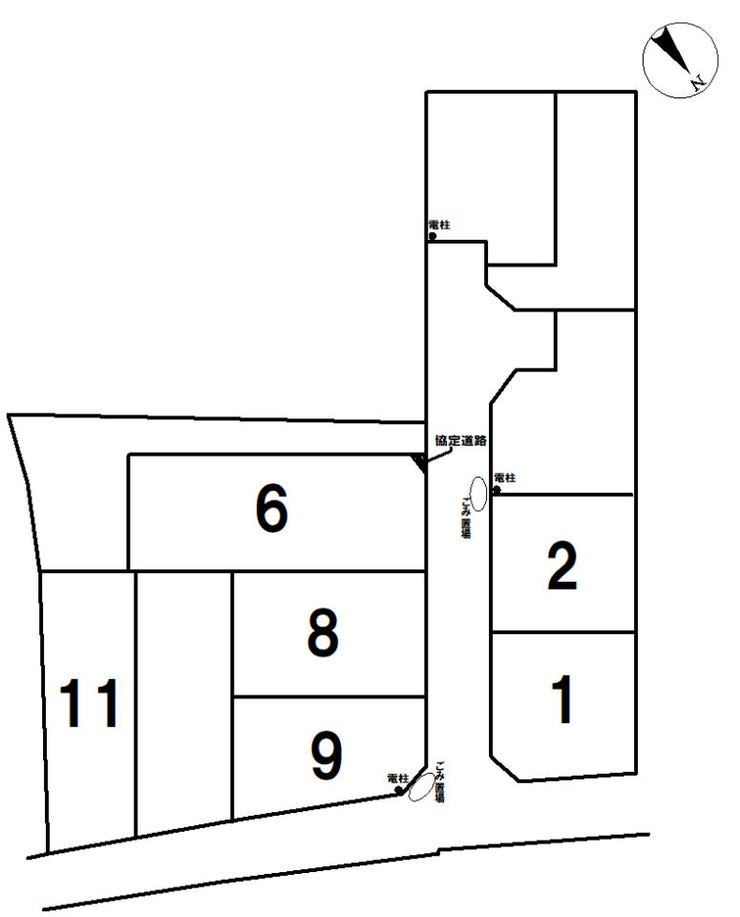
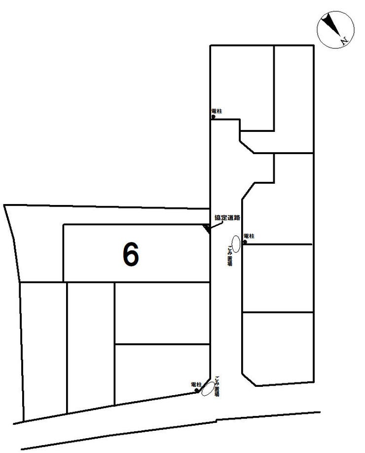
| 所在地 | 大阪府泉佐野市南中安松 6号地 | ||
| アクセス |
|
||
| 土地面積 | 実184.26㎡(55.73坪) | 接道 | 北西側(私道)幅 約4.7m |
| 私道 | セットバック | ||
| 最適用途 | 住宅用地 | 造成完了時期 | |
| 地目 | 宅地 | 地勢 | |
| 権利 | 所有権 |
||
| 分譲情報 | 【販売区画】:6区画 【価格】:1,280万円 ~1,880万円 【最多価格】:1,400万円 ~1,500万円(3戸) 【土地面積】:105.45㎡ ~184.26㎡ |
||
| 都市計画 | 市街化区域 |
用途地域 | 準工業 |
| 建ぺい/容積率 | 60% / 200% | 土地国土法 | |
| 許可番号 | 建築基準法 | ||
| 法令制限 | 法22条区域 | ||
| 小学区 | 長南小学校 徒歩13分 (約1000m) | 中学区 | 長南中学校 徒歩10分 (約800m) |
| 現況 | 更地 | 引渡 | 相談 |
| 建築条件 | 建築条件なし | ||
| その他費用 | |||
| 周辺環境 | 安松幼稚園 徒歩8分 (約550m) 泉佐野南中安松郵便局 徒歩8分 (約550m) セブンイレブン 泉佐野南中安松店 徒歩8分 (約600m) 長南小学校 徒歩13分 (約1000m) 泉佐野市立長南中学校 徒歩10分 (約800m) |
||
| 備考 | ●建築条件無し ●現況:更地 ●土地面積:約55.73坪 ●お好きなハウスメーカー・工務店で建築できます♪ ●泉佐野南中安松郵便局まで約550m ●安松幼稚園まで約550m ●セブンーイレブン 泉佐野南中安松店まで約600m ●マツゲン 長滝店まで約750m ※土地面積に協定道路約0.5㎡含む ・新設の位置指定道路は市に移管予定 ・現況有姿でのお引き渡し(現状有姿売買) |
||
| 物件番号 | 4670645 | 取引態様 | 媒介 |
取扱店舗情報
ハウスドゥ 泉佐野日根野 株式会社ファイン・サポート 店舗詳細ページへ
| 電話番号 | 072-447-6624 |
|---|---|
| 所在地 | 〒598-0021 大阪府泉佐野市日根野4288-1-103 |
| 営業時間 | 10:00~19:00 |
| 定休日 | 水曜日 |
| 宅建免許番号 | 大阪府知事(6)第47889号 |
| アクセス | 店舗への地図はこちら |

来店ご予約
大阪府泉佐野市で価格が似ている物件はこちら
- 大阪府
マイページ物件数 - 18,209件
最近見た物件
-
-

-
- 土地
- 708万円
-
阿南市下大野町小野
-
三条通りバス停
-
-
-

-
- 中古一戸建て
- 6,400万円
-
名古屋市緑区桶狭間森前
-
名鉄名古屋本線有松
-
大阪府土地新着物件
- お近くの店舗を探す
-
おすすめ物件
-
-

-
- 土地
- 780万円
-
堺市美原区阿弥
-
南海電鉄高野線北野田
-
-
-

-
- 土地
- 980万円
-
泉南郡熊取町大久保南4丁目
-
JR阪和線熊取
-
-
-

-
- 土地
- 2,380万円
-
高槻市弥生が丘町
-
JR東海道線高槻
-
-
-

-
- 土地
- 1,680万円
-
大阪市住吉区長居西2丁目
-
JR阪和線長居
-
-
-

-
- 土地
- 1,180万円
-
泉大津市千原町1丁目
-
南海電鉄本線北助松
-
-
-

-
- 土地
- 2,480万円
-
高槻市弥生が丘町
-
JR東海道線高槻
-
-
-

-
- 土地
- 580万円
-
泉佐野市岡本3丁目
-
南海電鉄本線羽倉崎
-
-
-

-
- 土地
- 2,200万円
-
摂津市別府3丁目
-
大阪市今里筋線井高野
-
-
-

-
- 土地
- 2,280万円
-
大阪市東住吉区南田辺1丁目
-
JR阪和線南田辺
-
-
-

-
- 土地
- 1,100万円
-
大阪市住之江区安立1丁目
-
南海電鉄本線住ノ江
-










