刈谷市野田町新上納の中古戸建
掲載情報更新日:2025年10月02日 次回更新予定日:2025年10月16日
- 3,780万円
-
- 借入ご希望金額
万円 - 借入期間
年 - 借入金利
% - 月々のお支払い金額
円
- 借入ご希望金額
※ 月々のお支払例は目安の試算となりますので、実際の金額とは異なる場合がございます。詳しくは店舗までお問合わせください。
- 刈谷市野田町新上納
-
JR東海道本線『野田新町』 徒歩22分 (約1760m)
刈谷市野田町新上納一戸建て | 物件情報
物件の設備
- 電気
- 上水道
- 下水道
- 側溝
- 都市ガス
- コンロ三口
- カウンターキッチン
- システムキッチン
- ユニットバス
- オートバス
- 追焚機能
- 浴室乾燥機
- 温水洗浄便座
- 室内洗濯機置場
- 洗髪洗面化粧台
- モニタ付インターホン
- LDK20畳以上
- 吹抜
- 複層ガラス
- 全室フローリング
- フローリング張替
- ウォークインクローゼット
- 全居室収納
- シューズWIC
物件の特徴
- 内装リフォーム済
- 外装リフォーム済
- 内外装リフォーム済
- 閑静な住宅街
- 2階建
物件詳細情報
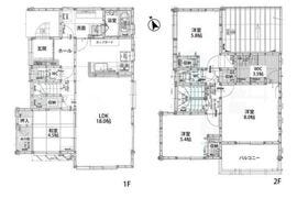
価格 | 3,780万円 | 間取り | 4LDK |
---|---|---|---|
物件種別 | 中古一戸建て | ||
所在地 | 愛知県刈谷市野田町新上納 | ||
アクセス |
|
||
建物面積 | 130.64㎡ | 駐車場 | あり 普通:2台 |
築年月 | 2004年(平成16年)08月築 | ||
建物構造 | 軽量鉄骨 2階建 | 工法 | |
主要採光 | バルコニー | ||
保証・評価 | |||
リフォーム | 【水回り】2024年12月 キッチン・浴室・トイレ・洗面 【外装】2024年12月 外壁 【内装】2024年12月 壁、天井 ・床 |
||
土地面積 | 176.36㎡(53.34坪) | 接道 | 西側(公道)幅 約5.0m |
私道 | セットバック | ||
地目 | 宅地 | 地勢 | |
権利 | 所有権 |
||
都市計画 | 市街化区域 |
用途地域 | 1種中高 |
建ぺい/容積率 | 60% / 150% | 土地国土法 | |
許可番号 | 建築基準法 | ||
法令制限 | 法22条区域・・特定都市河川浸水被害対策法・都市再生特別措置法 | ||
小学区 | 朝日小学校 徒歩7分 (約520m) | 中学区 | 朝日中学校 徒歩9分 (約690m) |
現況 | 空 | 引渡 | 相談 |
その他費用 | |||
周辺環境 | 刈谷市立朝日小学校 徒歩7分 (約520m) 刈谷市立朝日中学校 徒歩9分 (約690m) セブンイレブン刈谷野田町店 徒歩6分 (約460m) 刈谷市立朝日幼児園 徒歩6分 (約440m) スギ薬局 野田店 徒歩9分 (約700m) ファミリーマート刈谷野田一本木店 徒歩8分 (約640m) ピアゴ 東刈谷店 徒歩12分 (約960m) |
||
備考 | |||
物件番号 | 3466593 | 取引態様 | 媒介 |
取扱店舗情報
ハウスドゥ 刈谷中央 株式会社セカンドアイ 店舗詳細ページへ
電話番号 | 0566-93-2540 |
---|---|
所在地 | 〒448-0853 愛知県刈谷市高松町1丁目25番地 |
営業時間 | 9:30~18:00 |
定休日 | 水曜日、隔週火曜日 |
宅建免許番号 | 愛知県知事(3)第22341号 |
アクセス | 店舗への地図はこちら |
来店ご予約
愛知県刈谷市で価格が似ている物件はこちら
- 愛知県
マイページ物件数 - 30,532件
愛知県中古一戸建て新着物件
-
-
-
- 中古一戸建て
- 3,880万円
-
豊川市市田町財木
-
名鉄豊川線八幡駅
-
-
-
-
- 中古一戸建て
- 2,780万円
-
あま市花長うしや
-
名鉄津島線七宝駅
-
-
-
-
- 中古一戸建て
- 3,880万円
-
豊川市市田町財木
-
名鉄豊川線八幡駅
-
-
-
-
- 中古一戸建て
- 1,199万円
-
碧南市油渕町1丁目
-
名鉄三河線北新川駅
-
-
-
-
- 中古一戸建て
- 3,450万円
-
名古屋市天白区平針台2丁目
-
名古屋市桜通線徳重駅
-
-
-
-
- 中古一戸建て
- 3,049万円
-
名古屋市中川区月島町
-
名古屋臨海高速鉄道ささしまライブ駅
-
-
-
-
- 中古一戸建て
- 3,250万円
-
みよし市明知町宝栄
-
名鉄豊田線赤池駅
-
- お近くの店舗を探す
-
おすすめ物件
-
-
-
- 中古一戸建て
- 2,380万円
-
東海市富木島町藤島
-
名鉄常滑線太田川
-
-
-
-
- 中古一戸建て
- 2,500万円
-
半田市青山6丁目
-
名鉄河和線青山
-
-
-
-
- 中古一戸建て
- 3,180万円
-
東海市中ノ池5丁目
-
名鉄河和線加木屋中ノ池
-
-
-
-
- 中古一戸建て
- 2,800万円
-
東海市養父町八ケ池
-
名鉄常滑線尾張横須賀
-
-
-
-
- 中古一戸建て
- 2,680万円
-
名古屋市南区天白町3丁目
-
名鉄常滑線柴田
-
-
-
-
- 中古一戸建て
- 2,890万円
-
名古屋市港区大西1丁目
-
近鉄名古屋線戸田
-
-
-
-
- 中古一戸建て
- 2,140万円
-
豊田市永覚新町1丁目
-
愛知環状鉄道末野原
-
-
-
-
- 中古一戸建て
- 2,800万円
-
額田郡幸田町大字菱池字源田
-
JR東海道本線相見
-
-
-
-
- 中古一戸建て
- 2,700万円
-
名古屋市中川区戸田明正2丁目
-
JR関西本線春田
-
-
-
-
- 中古一戸建て
- 4,230万円
-
大府市梶田町6丁目
-
JR東海道本線共和
-