名古屋市守山区森孝3丁目の中古戸建
掲載情報更新日:2026年05月14日 次回更新予定日:2026年05月28日
- 3,490万円
-
- 借入ご希望金額
万円 - 借入期間
年 - 借入金利
% - 月々のお支払い金額
円
- 借入ご希望金額
※ 月々のお支払例は目安の試算となりますので、実際の金額とは異なる場合がございます。詳しくは店舗までお問合わせください。
- 名古屋市守山区森孝3丁目
-
名古屋市東山線『藤が丘』 徒歩24分 (約1890m)
『【三軒家】』 徒歩5分 (約400m)
名古屋市守山区森孝3丁目一戸建て | 物件情報
物件の設備
- バス
- 追焚機能
- 浴室に窓
- トイレ
- トイレ2箇所
- 室内洗濯機置場
- 洗面所独立
- 床暖房
- 太陽光発電システム
- 和室
- 24時間換気システム
- 納戸
- シューズボックス
- バルコニー
- 庭
- 南庭
物件の特徴
- 2階建
オープンハウス・イベント情報
開催日時:公開中 09:00~18:00
開催場所:愛知県名古屋市守山区
移転OPENイベント開催中 地域の皆様へ いつもお世話になっております。 この度、ハウスドゥ尾張旭は2026年1月より、尾張旭駅近くへ移転オープンすることになりました。 今までの緑町の店舗周辺にお住まいの方は、尾張旭カフェ併設サテライト店で、これまでと同じようにご相談いただけます…
物件詳細情報
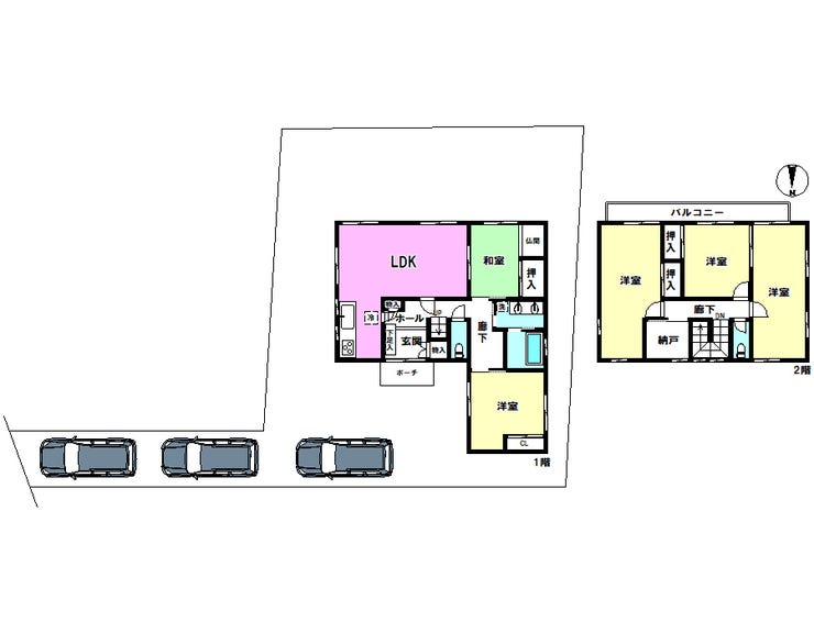
| 価格 | 3,490万円 | 間取り | 5LDK |
|---|---|---|---|
| 物件種別 | 中古一戸建て | ||
| 所在地 | 愛知県名古屋市守山区森孝3丁目 | ||
| アクセス |
|
||
| 建物面積 | 139.25㎡ | 駐車場 | あり |
| 築年月 | 1997年(平成9年)01月築 | ||
| 建物構造 | 木造 2階建 | 工法 | |
| 主要採光 | バルコニー | ||
| 保証・評価 | |||
| リフォーム | |||
| 土地面積 | 273.81㎡(82.82坪) | 接道 | 東側(公道)幅 約4.9m 間口 約2.60m |
| 私道 | セットバック | 無 | |
| 地目 | 宅地 | 地勢 | |
| 権利 | 所有権 |
||
| 都市計画 | 市街化区域 |
用途地域 | 2種住居 |
| 建ぺい/容積率 | 60% / 200% | 土地国土法 | |
| 許可番号 | 建築基準法 | ||
| 法令制限 | 景観法・準防火地域・31m高度地区・都市機能誘導区域内・居住誘導区域内 | ||
| 小学区 | 森孝西小学校 徒歩12分 (約890m) | 中学区 | 森孝中学校 徒歩6分 (約460m) |
| 現況 | 居住中 | 引渡 | 相談 |
| その他費用 | |||
| 周辺環境 | 第2若竹幼稚園 徒歩6分 (約420m) 森孝中学校 徒歩6分 (約460m) 紘仁病院 徒歩7分 (約540m) 森孝西小学校 徒歩12分 (約890m) 名古屋元補郵便局 徒歩10分 (約780m) 四軒家フランテ 徒歩12分 (約950m) 名古屋市営地下鉄「藤が丘」駅 徒歩24分 (約1890m) ナフコ不二屋引山店 徒歩19分 (約1470m) 名古屋市立森孝保育園 徒歩10分 (約740m) |
||
| 備考 | ●駐車場3台分 | ||
| 物件番号 | 3706616 | 取引態様 | 媒介 |
取扱店舗情報
ハウスドゥ 尾張旭 ライフベイシス株式会社 店舗詳細ページへ
| 電話番号 | 0561-52-7675 |
|---|---|
| 所在地 | 〒488-0818 愛知県尾張旭市向町2丁目1-1 大道マンション1F |
| 営業時間 | 9:00-18:00 |
| 定休日 | 年末年始 |
| 宅建免許番号 | 愛知県知事(3)第22389号 |
| アクセス | 店舗への地図はこちら |

来店ご予約
愛知県名古屋市守山区で価格が似ている物件はこちら
- 愛知県
マイページ物件数 - 32,183件
最近見た物件
-
-

-
- 中古一戸建て
- 3,600万円
-
岡山市中区湊
-
岡山電軌東山本線東山岡電ミュージアム
-
-
-

-
- 新築一戸建て
- 2,290万円
-
豊橋市南大清水町字藤ケ谷
-
豊橋鉄道渥美線大清水
-
-
-

-
- 新築一戸建て
- 2,890万円
-
一宮市大毛字宮前
-
名鉄名古屋本線新木曽川
-
愛知県中古一戸建て新着物件
-
-

-
- 中古一戸建て
- 2,699万円
-
豊田市丸根町3丁目
-
愛知環状鉄道新豊田駅
-
-
-

-
- 中古一戸建て
- 2,599万円
-
名古屋市西区歌里町
-
JR東海交通城北線小田井駅
-
-
-

-
- 中古一戸建て
- 1,680万円
-
弥富市小島町下新田
-
JR関西本線弥富駅
-
-
-

-
- 中古一戸建て
- 2,599万円
-
名古屋市西区宝地町
-
名古屋市鶴舞線上小田井駅
-
-
-

-
- 中古一戸建て
- 2,499万円
-
名古屋市西区比良3丁目
-
JR東海交通城北線比良駅
-
-
-

-
- 中古一戸建て
- 2,499万円
-
名古屋市西区清里町
-
名古屋市鶴舞線上小田井駅
-
-
-

-
- 中古一戸建て
- 8,499万円
-
名古屋市瑞穂区東栄町8丁目
-
名古屋市桜通線瑞穂区役所駅
-
- お近くの店舗を探す
-
おすすめ物件
-
-

-
- 中古一戸建て
- 1,490万円
-
知多郡阿久比町大字福住字高根台
-
名鉄河和線巽ヶ丘
-
-
-

-
- 中古一戸建て
- 3,080万円
-
豊田市丸山町10丁目
-
愛知環状鉄道三河豊田
-
-
-

-
- 中古一戸建て
- 2,480万円
-
小牧市大字西之島
-
名鉄犬山線布袋
-
-
-

-
- 中古一戸建て
- 2,780万円
-
瀬戸市小空町
-
名鉄瀬戸線尾張瀬戸
-
-
-

-
- 中古一戸建て
- 980万円
-
瀬戸市瘤木町
-
愛知環状鉄道瀬戸口
-
-
-

-
- 中古一戸建て
- 1,480万円
-
一宮市瀬部字小馬場
-
名鉄犬山線江南
-
-
-

-
- 中古一戸建て
- 2,710万円
-
犬山市字中唐曽
-
名鉄小牧線田県神社前
-
-
-

-
- 中古一戸建て
- 3,000万円
-
半田市宮本町5丁目
-
名鉄河和線成岩
-
-
-

-
- 中古一戸建て
- 1,780万円
-
愛西市町方町彦作堤内
-
名鉄津島線藤浪
-
-
-

-
- 中古一戸建て
- 2,090万円
-
丹羽郡扶桑町大字柏森字辻田
-
名鉄犬山線柏森
-


