八尾市南亀井町1丁目の中古戸建
掲載情報更新日:2025年12月28日 次回更新予定日:2026年01月11日
- 1,190万円
-
- 借入ご希望金額
万円 - 借入期間
年 - 借入金利
% - 月々のお支払い金額
円
- 借入ご希望金額
※ 月々のお支払例は目安の試算となりますので、実際の金額とは異なる場合がございます。詳しくは店舗までお問合わせください。
- 八尾市南亀井町1丁目
-
JRおおさか東線『久宝寺』 徒歩18分 (約1440m)
八尾市南亀井町1丁目一戸建て | 物件情報
物件の設備
- 電気
- 上水道
- 公営水道
- バス
- トイレ
- 室外洗濯機置場
物件の特徴
- 2階建
物件詳細情報
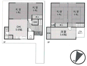
| 価格 | 1,190万円 | 間取り | 3LDK |
|---|---|---|---|
| 物件種別 | 中古一戸建て | ||
| 所在地 | 大阪府八尾市南亀井町1丁目 | ||
| アクセス |
|
||
| 建物面積 | 公74.96㎡ | 駐車場 | なし |
| 築年月 | 1976年(昭和51年)02月築 | ||
| 建物構造 | 木造 瓦葺2階建 2階建 | 工法 | |
| 主要採光 | バルコニー | ||
| 保証・評価 | |||
| リフォーム | |||
| 土地面積 | 公70㎡(21.17坪) | 接道 | 北側(私道)幅 約3.7m 間口 約4.80m |
| 私道 | セットバック | ||
| 地目 | 宅地 | 地勢 | |
| 権利 | 所有権 |
||
| 都市計画 | 市街化区域 |
用途地域 | 準工業 |
| 建ぺい/容積率 | 60% / 200% | 土地国土法 | |
| 許可番号 | 建築基準法 | ||
| 法令制限 | 文化財保護法・景観法 | ||
| 小学区 | 亀井小学校 徒歩2分 (約150m) | 中学区 | 亀井中学校 徒歩4分 (約290m) |
| 現況 | 居住中 | 引渡 | 相談 |
| その他費用 | |||
| 備考 | |||
| 物件番号 | 3958578 | 取引態様 | 専任 |
取扱店舗情報
ハウスドゥ 家・不動産買取専門店 あべの ジェイアンドジー株式会社 店舗詳細ページへ
| 電話番号 | 06-6634-6636 |
|---|---|
| 所在地 | 〒545-0051 大阪府大阪市阿倍野区旭町1-1-10 竹澤ビル5F |
| 営業時間 | 10:00~18:30 |
| 定休日 | 水曜日 |
| 宅建免許番号 | 大阪府知事(3)第58183号 |
| アクセス | 店舗への地図はこちら |

来店ご予約
大阪府八尾市で価格が似ている物件はこちら
- 大阪府
マイページ物件数 - 16,075件
最近見た物件
-
-

-
- 中古一戸建て
- 1,399万円
-
行橋市行事2丁目
-
JR日豊本線小波瀬西工大前
-
大阪府中古一戸建て新着物件
-
-

-
- 中古一戸建て
- 2,680万円
-
和泉市幸2丁目
-
JR阪和線信太山駅
-
-
-

-
- 中古一戸建て
- 4,500万円
-
和泉市光明台2丁目
-
南海電鉄泉北線光明池駅
-
-
-

-
- 中古一戸建て
- 750万円
-
和泉市光明台2丁目
-
南海電鉄泉北線光明池駅
-
-
-

-
- 中古一戸建て
- 1,390万円
-
和泉市室堂町
-
南海電鉄泉北線光明池駅
-
-
-

-
- 中古一戸建て
- 3,180万円
-
豊中市庄内栄町3丁目
-
阪急電鉄宝塚線庄内駅
-
-
-

-
- 中古一戸建て
- 3,180万円
-
豊中市庄内栄町3丁目
-
阪急電鉄宝塚線庄内駅
-
-
-

-
- 中古一戸建て
- 1,280万円
-
東大阪市友井3丁目
-
近鉄大阪線弥刀駅
-
- お近くの店舗を探す
-
おすすめ物件
-
-

-
- 中古一戸建て
- 2,980万円
-
茨木市北春日丘1丁目
-
JR東海道線茨木
-
-
-

-
- 中古一戸建て
- 4,980万円
-
高槻市川西町3丁目
-
JR東海道線高槻
-
-
-

-
- 中古一戸建て
- 4,770万円
-
茨木市総持寺1丁目
-
阪急電鉄京都線総持寺
-
-
-

-
- 中古一戸建て
- 1,350万円
-
泉南市樽井2丁目
-
南海電鉄本線樽井
-
-
-

-
- 中古一戸建て
- 680万円
-
泉南郡熊取町小垣内1丁目
-
JR阪和線熊取
-
-
-

-
- 中古一戸建て
- 1,800万円
-
川西市鼓が滝3丁目
-
能勢電鉄鼓滝
-
-
-

-
- 中古一戸建て
- 790万円
-
泉南郡熊取町山の手台3丁目
-
JR阪和線熊取
-
-
-

-
- 中古一戸建て
- 580万円
-
河内長野市大矢船中町
-
南海電鉄高野線三日市町
-
-
-

-
- 中古一戸建て
- 4,680万円
-
高槻市奥天神町1丁目
-
JR東海道線高槻
-
-
-

-
- 中古一戸建て
- 2,980万円
-
八尾市八尾木3丁目
-
JR関西本線志紀
-






