河内長野市あかしあ台1丁目の中古戸建
掲載情報更新日:2026年01月11日 次回更新予定日:2026年01月25日
- 780万円
-
- 借入ご希望金額
万円 - 借入期間
年 - 借入金利
% - 月々のお支払い金額
円
- 借入ご希望金額
※ 月々のお支払例は目安の試算となりますので、実際の金額とは異なる場合がございます。詳しくは店舗までお問合わせください。
- 河内長野市あかしあ台1丁目
-
南海電鉄高野線『滝谷』 徒歩18分 (約1440m)
河内長野市あかしあ台1丁目一戸建て | 物件情報
物件の特徴
- 2階建
物件詳細情報
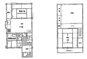
| 価格 | 780万円 | 間取り | 5LDK+S |
|---|---|---|---|
| 物件種別 | 中古一戸建て | ||
| 所在地 | 大阪府河内長野市あかしあ台1丁目 | ||
| アクセス |
|
||
| 建物面積 | 公104.33㎡ | 駐車場 | なし |
| 築年月 | 1988年(昭和63年)07月築 | ||
| 建物構造 | 木造 2階建 | 工法 | |
| 主要採光 | バルコニー | ||
| 保証・評価 | |||
| リフォーム | |||
| 土地面積 | 公109.71㎡(33.18坪) | 接道 | |
| 私道 | セットバック | ||
| 地目 | 宅地 | 地勢 | 平坦 |
| 権利 | 所有権 |
||
| 都市計画 | 市街化区域 |
用途地域 | 1種住居 |
| 建ぺい/容積率 | 60% / 200% | 土地国土法 | |
| 許可番号 | 建築基準法 | ||
| 法令制限 | |||
| 小学区 | 楠小学校 徒歩11分 (約820m) | 中学区 | 千代田中学校 徒歩24分 (約1870m) |
| 現況 | 空 | 引渡 | 相談 |
| その他費用 | |||
| 周辺環境 | 社福)ちよだ福祉会おおさかちよだ保育園 徒歩8分 (約570m) コノミヤ河内長野店 徒歩11分 (約840m) 河内長野市立楠小学校 徒歩11分 (約820m) |
||
| 備考 | 告知事項あり | ||
| 物件番号 | 4025992 | 取引態様 | 媒介 |
取扱店舗情報
| 電話番号 | 0721-56-8188 |
|---|---|
| 所在地 | 〒586-0032 大阪府河内長野市栄町13-6 |
| 営業時間 | 9:30~18:30 |
| 定休日 | 水曜日、年末年始 |
| 宅建免許番号 | 大阪府知事(3)第56622号 |
| アクセス | 店舗への地図はこちら |

来店ご予約
大阪府河内長野市で価格が似ている物件はこちら
- 大阪府
マイページ物件数 - 16,571件
大阪府中古一戸建て新着物件
-
-

-
- 中古一戸建て
- 800万円
-
泉南市新家
-
JR阪和線新家駅
-
-
-

-
- 中古一戸建て
- 2,480万円
-
東大阪市金岡2丁目
-
近鉄大阪線弥刀駅
-
-
-

-
- 中古一戸建て
- 3,480万円
-
四條畷市大字清瀧
-
JR片町線忍ヶ丘駅
-
-
-

-
- 中古一戸建て
- 2,780万円
-
東大阪市俊徳町5丁目
-
近鉄大阪線俊徳道駅
-
-
-

-
- 中古一戸建て
- 1,080万円
-
大東市明美の里町
-
JR片町線四条畷駅
-
-
-

-
- 中古一戸建て
- 3,280万円
-
東大阪市稲田本町2丁目
-
JR片町線徳庵駅
-
-
-

-
- 中古一戸建て
- 3,400万円
-
阪南市桃の木台6丁目
-
南海電鉄本線箱作駅
-
- お近くの店舗を探す
-
おすすめ物件
-
-

-
- 中古一戸建て
- 1,600万円
-
八尾市垣内4丁目
-
近鉄信貴線信貴山口
-
-
-

-
- 中古一戸建て
- 1,650万円
-
和泉市黒鳥町2丁目
-
JR阪和線和泉府中
-
-
-

-
- 中古一戸建て
- 2,480万円
-
高槻市緑が丘2丁目
-
JR東海道線高槻
-
-
-

-
- 中古一戸建て
- 4,580万円
-
大阪市住之江区住之江1丁目
-
南海電鉄本線住ノ江
-
-
-

-
- 中古一戸建て
- 7,580万円
-
泉大津市東雲町
-
南海電鉄本線松ノ浜
-
-
-

-
- 中古一戸建て
- 730万円
-
泉南郡熊取町山の手台3丁目
-
JR阪和線熊取
-
-
-

-
- 中古一戸建て
- 2,780万円
-
泉大津市板原町1丁目
-
JR阪和線和泉府中
-
-
-

-
- 中古一戸建て
- 3,480万円
-
大阪市住吉区万代5丁目
-
南海電鉄高野線帝塚山
-
-
-

-
- 中古一戸建て
- 580万円
-
河内長野市大矢船中町
-
南海電鉄高野線三日市町
-
-
-

-
- 中古一戸建て
- 3,280万円
-
大阪市西成区鶴見橋2丁目
-
JR大阪環状線今宮
-






