熊本市東区小山5丁目の中古戸建
掲載情報更新日:2025年11月10日 次回更新予定日:2025年11月24日
- 2,498万円
-
- 借入ご希望金額
万円 - 借入期間
年 - 借入金利
% - 月々のお支払い金額
円
- 借入ご希望金額
※ 月々のお支払例は目安の試算となりますので、実際の金額とは異なる場合がございます。詳しくは店舗までお問合わせください。
- 熊本市東区小山5丁目
-
JR豊肥本線『光の森』 車11分(約5.2km)
JR豊肥本線『武蔵塚』 車13分(約5.5km)
JR豊肥本線『三里木』 車13分(約5.7km)
『今村入口』 徒歩4分 (約260m)
熊本市東区小山5丁目一戸建て | 物件情報
■陽当たり良好♪
■本日更新!
■二階建て
■周辺施設充実♪
物件の設備
- オール電化
- 上水道
- 下水道
- 側溝
- 給湯
- IHクッキングヒータ
- コンロ三口
- カウンターキッチン
- システムキッチン
- バス
- 追焚機能
- 浴室暖房
- 浴室乾燥機
- 温水洗浄便座
- 室内洗濯機置場
- 洗髪洗面化粧台
- ダウンライト
- 省エネ給湯器
- フローリング
- クローゼット
- 床下収納
- 全居室収納
物件の特徴
- 内装リフォーム済
- 外装リフォーム済
- 内外装リフォーム済
- 2階建
物件詳細情報
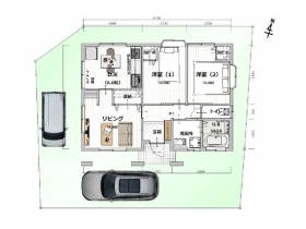
| 価格 | 2,498万円 | 間取り | 3LDK |
|---|---|---|---|
| 物件種別 | 中古一戸建て | ||
| 所在地 | 熊本県熊本市東区小山5丁目 | ||
| アクセス |
|
||
| 建物面積 | 104.12㎡ | 駐車場 | あり 普通:3台 |
| 築年月 | 1979年(昭和54年)11月築 | ||
| 建物構造 | 木造 2階建 | 工法 | |
| 主要採光 | 南向 | バルコニー | |
| 保証・評価 | |||
| リフォーム | 【水回り】2025年02月 キッチン・浴室・トイレ・洗面・給湯器 【外装】2025年02月 外壁 ・屋根 【内装】2025年02月 全面 ・壁、天井 ・床 ・全室クロス ・建具 ・サッシ |
||
| 土地面積 | 216.79㎡(65.57坪) | 接道 | |
| 私道 | セットバック | ||
| 地目 | 宅地 | 地勢 | |
| 権利 | 所有権 |
||
| 都市計画 | 市街化区域 |
用途地域 | 2種中高 |
| 建ぺい/容積率 | 60% / 150% | 土地国土法 | |
| 許可番号 | 建築基準法 | ||
| 法令制限 | |||
| 小学区 | 託麻東小学校 徒歩10分 (約800m) | 中学区 | 二岡中学校 徒歩10分 (約750m) |
| 現況 | 空 | 引渡 | 相談 |
| その他費用 | |||
| 周辺環境 | セブンイレブン 熊本託麻東店 徒歩12分 (約890m) セブンイレブン 熊本小山4丁目店 徒歩11分 (約880m) 熊本市立託麻東小学校 徒歩13分 (約1020m) 熊本市立二岡中学校 徒歩16分 (約1220m) 田中内科 徒歩26分 (約2030m) グリーンコープ生協くまもと 長嶺店 徒歩37分 (約2940m) マックスバリュー長嶺店 徒歩42分 (約3360m) |
||
| 備考 | |||
| 物件番号 | 4096098 | 取引態様 | 媒介 |
取扱店舗情報
| 電話番号 | 096-237-6412 |
|---|---|
| 所在地 | 〒862-0918 熊本県熊本市東区花立5丁目1-6 幸ビル1階西1号室 |
| 営業時間 | 10:00~18:00 |
| 定休日 | 水曜日 |
| 宅建免許番号 | 熊本県知事(1)第5757号 |
| アクセス | 店舗への地図はこちら |

来店ご予約
熊本県熊本市東区で価格が似ている物件はこちら
- 熊本県
マイページ物件数 - 3,074件
熊本県中古一戸建て新着物件
-
-

-
- 中古一戸建て
- 1,398万円
-
上益城郡御船町大字高木
-
熊本市健軍線健軍町駅
-
-
-

-
- 中古一戸建て
- 1,790万円
-
熊本市東区月出6丁目
-
JR豊肥本線東海学園前駅
-
-
-

-
- 中古一戸建て
- 3,198万円
-
熊本市東区三郎2丁目
-
JR豊肥本線東海学園前駅
-
-
-

-
- 中古一戸建て
- 1,480万円
-
熊本市北区植木町植木
-
植木五丁目
-
-
-

-
- 中古一戸建て
- 2,880万円
-
菊池郡大津町大字大林
-
JR豊肥本線瀬田駅
-
-
-

-
- 中古一戸建て
- 2,690万円
-
熊本市南区城南町舞原
-
JR三角線富合駅
-
-
-

-
- 中古一戸建て
- 2,980万円
-
熊本市北区植木町広住
-
JR鹿児島本線植木駅
-
- お近くの店舗を探す
-
おすすめ物件
-
-

-
- 中古一戸建て
- 1,090万円
-
山鹿市小群
-
平小城バス停
-
-
-

-
- 中古一戸建て
- 2,398万円
-
合志市須屋
-
熊本電気鉄道三ツ石
-
-
-

-
- 中古一戸建て
- 1,498万円
-
熊本市中央区八王寺町
-
JR豊肥本線南熊本
-
-
-

-
- 中古一戸建て
- 2,698万円
-
菊池郡菊陽町大字津久礼
-
JR豊肥本線三里木
-
-
-

-
- 中古一戸建て
- 1,780万円
-
熊本市南区城南町藤山
-
JR三角線富合
-
-
-

-
- 中古一戸建て
- 2,480万円
-
熊本市北区龍田8丁目
-
JR豊肥本線竜田口
-
-
-

-
- 中古一戸建て
- 2,898万円
-
熊本市北区鶴羽田2丁目
-
熊本電気鉄道新須屋
-
-
-

-
- 中古一戸建て
- 3,400万円
-
熊本市北区武蔵ケ丘7丁目
-
JR豊肥本線武蔵塚
-
-
-

-
- 中古一戸建て
- 2,380万円
-
合志市豊岡
-
熊本電気鉄道御代志
-
-
-

-
- 中古一戸建て
- 2,698万円
-
熊本市東区花立5丁目
-
熊本市健軍線健軍町
-






















担当エージェント:坂元 亜耶
地域密着だからこその情報量でお客様にぴったりの物件をご提案します!
おうち選びのメリットだけでなく、リスクもお伝えできる人間を目指しております。
不動産のことはハウスドゥ熊本花立にお任せください!