宇都宮市下荒針町の中古戸建
掲載情報更新日:2025年11月13日 次回更新予定日:2025年11月27日
- 1,349万円
-
- 借入ご希望金額
万円 - 借入期間
年 - 借入金利
% - 月々のお支払い金額
円
- 借入ご希望金額
※ 月々のお支払例は目安の試算となりますので、実際の金額とは異なる場合がございます。詳しくは店舗までお問合わせください。
- 宇都宮市下荒針町
-
東武宇都宮線『東武宇都宮』 徒歩53分 (約4200m)
関東バス『野尻』 徒歩12分 (約960m)
宇都宮市下荒針町一戸建て | 物件情報
物件の設備
- 公営水道
- 下水道
- プロパンガス
- 個別プロパン
物件の特徴
- 2階建
物件詳細情報
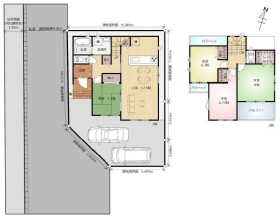
| 価格 | 1,349万円 | 間取り | 3LDK |
|---|---|---|---|
| 物件種別 | 中古一戸建て | ||
| 所在地 | 栃木県宇都宮市下荒針町 | ||
| アクセス |
|
||
| 建物面積 | 67.06㎡ | 駐車場 | なし |
| 築年月 | 1978年(昭和53年)02月築 | ||
| 建物構造 | 木造 亜鉛メッキ鋼板葺 2階建 | 工法 | |
| 主要採光 | バルコニー | ||
| 保証・評価 | |||
| リフォーム | |||
| 土地面積 | 公157.87㎡(47.75坪) | 接道 | 南西側(公道)幅 約4.0m |
| 私道 | セットバック | ||
| 地目 | 宅地 | 地勢 | |
| 権利 | 所有権 |
||
| 都市計画 | 市街化区域 |
用途地域 | 1種低層 |
| 建ぺい/容積率 | 40% / 60% | 土地国土法 | |
| 許可番号 | 建築基準法 | ||
| 法令制限 | |||
| 小学区 | 明保小学校 徒歩4分 (約300m) | 中学区 | 城山中学校 徒歩54分 (約4300m) |
| 現況 | 空 | 引渡 | 相談 |
| その他費用 | |||
| 備考 | ※ガス会社は売主指定業者になります。 ※2025年4月リフォーム完成 ・外壁屋根塗装 ・駐車場拡張 ・玄関扉交換 ・外照明交換 ・インターホン新品交換 ・間取変更 ・フローリング上張り ・CF張替え ・天井壁クロス交換 ・網戸貼替 ・照明全交換 ・建具新品交換 ・システムキッチン新設 ・トイレ、洗面化粧台新品交換 ・スイッチパネル交換 ・防蟻工事 |
||
| 物件番号 | 4104520 | 取引態様 | 媒介 |
取扱店舗情報
ハウスドゥ 若草 株式会社アップルエステート 店舗詳細ページへ
| 電話番号 | 028-622-2233 |
|---|---|
| 所在地 | 〒320-0072 栃木県宇都宮市若草5-1-4 |
| 営業時間 | 9:00~20:00 |
| 定休日 | 水曜日・GW・夏期休暇・年末年始 |
| 宅建免許番号 | 栃木県知事(3)第4791号 |
| アクセス | 店舗への地図はこちら |

来店ご予約
栃木県宇都宮市で価格が似ている物件はこちら
- 栃木県
マイページ物件数 - 6,747件
最近見た物件
-
-

-
- 中古一戸建て
- 1,470万円
-
鹿児島市大明丘3丁目
-
大明丘中央
-
-
-

-
- 中古一戸建て
- 1,260万円
-
宮崎市大字島之内
-
JR日豊本線日向住吉
-
-
-

-
- 中古一戸建て
- 1,500万円
-
宮崎市大字島之内
-
JR日豊本線日向住吉
-
栃木県中古一戸建て新着物件
- お近くの店舗を探す
-
おすすめ物件
-
-

-
- 中古一戸建て
- 600万円
-
佐野市石塚町
-
さーのって「石塚町南」
-
-
-

-
- 中古一戸建て
- 3,080万円
-
鹿沼市玉田町
-
東武日光線北鹿沼
-
-
-

-
- 中古一戸建て
- 2,780万円
-
宇都宮市石井町
-
宇都宮芳賀ライト線平石中央小学校前
-
-
-

-
- 中古一戸建て
- 1億3,000万円
-
宇都宮市陽東5丁目
-
宇都宮芳賀ライト線宇都宮大学陽東キャンパス
-
-
-

-
- 中古一戸建て
- 1,100万円
-
鹿沼市松原4丁目
-
JR日光線鹿沼
-
-
-

-
- 中古一戸建て
- 2,480万円
-
宇都宮市城南2丁目
-
JR東北本線雀宮
-
-
-

-
- 中古一戸建て
- 1,980万円
-
宇都宮市下平出町
-
宇都宮芳賀ライト線平石中央小学校前
-
-
-

-
- 中古一戸建て
- 3,280万円
-
宇都宮市西刑部町
-
関東バス【中央橋】
-
-
-

-
- 中古一戸建て
- 1,680万円
-
宇都宮市新里町
-
東武宇都宮線東武宇都宮
-
-
-

-
- 中古一戸建て
- 690万円
-
宇都宮市野沢町
-
関東バス弁天橋停
-








