岡山市中区湊の中古戸建
掲載情報更新日:2025年12月02日 次回更新予定日:2025年12月16日
- 3,600万円
-
- 借入ご希望金額
万円 - 借入期間
年 - 借入金利
% - 月々のお支払い金額
円
- 借入ご希望金額
※ 月々のお支払例は目安の試算となりますので、実際の金額とは異なる場合がございます。詳しくは店舗までお問合わせください。
- 岡山市中区湊
-
岡山電軌東山本線『東山岡電ミュージアム』 徒歩24分 (約1860m)
岡山市中区湊一戸建て | 物件情報
物件の特徴
- 前道6m以上
- 南側道路面す
- 2階建
物件詳細情報
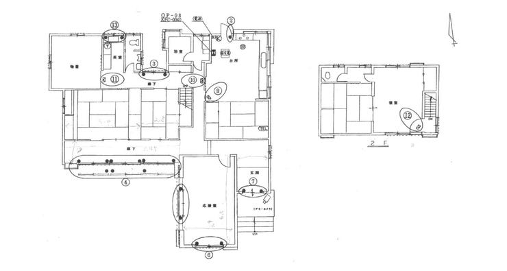
| 価格 | 3,600万円 | 間取り | 6LDK+S |
|---|---|---|---|
| 物件種別 | 中古一戸建て | ||
| 所在地 | 岡山県岡山市中区湊 | ||
| アクセス |
|
||
| 建物面積 | 217.78㎡ | 駐車場 | あり |
| 築年月 | 1974年(昭和49年)06月築 | ||
| 建物構造 | 木造 2階建 | 工法 | |
| 主要採光 | バルコニー | ||
| 保証・評価 | |||
| リフォーム | |||
| 土地面積 | 503.9㎡(152.42坪) | 接道 | 南側幅 約6.0m |
| 私道 | セットバック | ||
| 地目 | 宅地 | 地勢 | 高台 |
| 権利 | 所有権 |
||
| 都市計画 | 市街化区域 |
用途地域 | 1種低層 |
| 建ぺい/容積率 | 40% / 80% | 土地国土法 | |
| 許可番号 | 建築基準法 | ||
| 法令制限 | |||
| 小学区 | 富山小学校 徒歩33分 (約2630m) | 中学区 | 富山中学校 徒歩59分 (約4700m) |
| 現況 | 空 | 引渡 | 相談 |
| その他費用 | |||
| 備考 | 敷地150坪超え!石畳の階段など雰囲気のある中古住宅です。 古民家などお好きな方オススメです 瑕疵担保責任を負いません。 ・引渡し前までに境界確定を売主にて行います。 空き家バンク登録物件 引渡しまでに売主にて専用庭を解体し駐車場3台分設置予定 |
||
| 物件番号 | 4125821 | 取引態様 | 媒介 |
取扱店舗情報
ハウスドゥ 岡山西大寺松崎 日笠REC株式会社 店舗詳細ページへ
| 電話番号 | 086-230-1702 |
|---|---|
| 所在地 | 〒704-8183 岡山県岡山市東区西大寺松崎162-5 |
| 営業時間 | 10:00~18:00 |
| 定休日 | 水曜日、年末年始 |
| 宅建免許番号 | 岡山県知事(1)第6175号 |
| アクセス | 店舗への地図はこちら |

来店ご予約
岡山県岡山市中区で価格が似ている物件はこちら
- 岡山県
マイページ物件数 - 4,464件
最近見た物件
-
-

-
- 中古一戸建て
- 1,150万円
-
四日市市あかつき台2丁目
-
三岐鉄道三岐線暁学園前
-
-
-

-
- 中古一戸建て
- 1,990万円
-
瀬戸市山の田町
-
愛知環状鉄道瀬戸口
-
-
-

-
- 中古一戸建て
- 3,600万円
-
近江八幡市小船木町
-
JR東海道線近江八幡
-
岡山県中古一戸建て新着物件
-
-

-
- 中古一戸建て
- 1,579万円
-
浅口郡里庄町大字新庄
-
JR山陽本線里庄駅
-
-
-

-
- 中古一戸建て
- 1,380万円
-
岡山市東区西大寺上1丁目
-
JR赤穂線西大寺駅
-
-
-

-
- 中古一戸建て
- 1,749万円
-
倉敷市玉島阿賀崎3丁目
-
JR山陽本線新倉敷駅
-
-
-

-
- 中古一戸建て
- 3,150万円
-
岡山市北区平田
-
JR宇野線備前西市駅
-
-
-

-
- 中古一戸建て
- 1,599万円
-
倉敷市中庄
-
JR山陽本線中庄駅
-
-
-

-
- 中古一戸建て
- 1,695万円
-
玉野市築港3丁目
-
JR宇野線宇野駅
-
-
-

-
- 中古一戸建て
- 2,450万円
-
倉敷市福田町古新田
-
水島臨海鉄道弥生駅
-
- お近くの店舗を探す
-
おすすめ物件
-
-

-
- 中古一戸建て
- 1,600万円
-
岡山市南区新保
-
JR宇野線備前西市
-
-
-

-
- 中古一戸建て
- 3,050万円
-
倉敷市二日市
-
JR山陽本線倉敷
-
-
-

-
- 中古一戸建て
- 3,500万円
-
倉敷市玉島乙島
-
JR山陽本線新倉敷
-
-
-

-
- 中古一戸建て
- 980万円
-
倉敷市真備町箭田
-
井原鉄道吉備真備
-
-
-

-
- 中古一戸建て
- 750万円
-
倉敷市児島下の町6丁目
-
JR本四備讃線児島
-
-
-

-
- 中古一戸建て
- 4,090万円
-
総社市門田
-
JR伯備線総社
-
-
-

-
- 中古一戸建て
- 1,480万円
-
岡山市中区関
-
JR山陽本線高島
-
-
-

-
- 中古一戸建て
- 2,700万円
-
倉敷市上東
-
JR山陽本線中庄
-
-
-

-
- 中古一戸建て
- 2,350万円
-
岡山市北区宿
-
JR津山線備前原
-
-
-

-
- 中古一戸建て
- 1,899万円
-
赤磐市桜が丘東4丁目
-
JR山陽本線万富
-











