岡崎市上地2丁目の中古戸建
掲載情報更新日:2025年09月26日 次回更新予定日:2025年10月10日
- 2,080万円
-
- 借入ご希望金額
万円 - 借入期間
年 - 借入金利
% - 月々のお支払い金額
円
- 借入ご希望金額
※ 月々のお支払例は目安の試算となりますので、実際の金額とは異なる場合がございます。詳しくは店舗までお問合わせください。
- 岡崎市上地2丁目
-
JR東海道本線『岡崎』 徒歩27分 (約2090m)
岡崎市上地2丁目一戸建て | 物件情報
岡崎市上地2丁目の中古戸建!国道248号線へのアクセス良好♪小学校まで徒歩圏内!
・国道248号線へのアクセス良好!
・小学校まで徒歩約9分!
・近隣、商業施設充実♪
~~ライフインフォメーション~~
・JR東海道本線「岡崎」駅:徒歩約26分
・上地小学校:徒歩約9分
・竜南中学校:徒歩約23分
・コープ岡崎:徒歩約4分
・スギ薬局上地店:徒歩約3分
・岡崎上地郵便局:徒歩約4分
・岡崎信用金庫 上地支店:徒歩約5分
・西尾信用金庫 岡崎南支店:徒歩約6分
・レスパ:徒歩約6分
・セブンイレブン岡崎若松町店:徒歩約8分
・ホリデイスポーツクラブ岡崎:徒歩約8分
・南公園:徒歩約11分
◎::◎::◎::◎::◎::◎::◎::◎
□ ■ 見るだけOK!聞くだけOK! ■ □
お気軽にお問い合わせ下さい
□ ■ 『ハウスドゥ岡崎南店』 ■ □
TEL:0800-888-6388
MAIL:m-info@alphas.biz
◎::◎::◎::◎::◎::◎::◎::◎
物件の設備
- 電気
- 上水道
- 下水道
- 都市ガス
- トイレ2箇所
- 室内洗濯機置場
- 和室
物件の特徴
- 前道6m以上
- 2階建
物件詳細情報
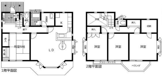
価格 | 2,080万円 | 間取り | 4LDK+S |
---|---|---|---|
物件種別 | 中古一戸建て | ||
所在地 | 愛知県岡崎市上地2丁目 | ||
アクセス |
|
||
建物面積 | 109.3㎡ | 駐車場 | あり 普通:2台 |
築年月 | 1985年(昭和60年)08月築 | ||
建物構造 | 木造 2階建 | 工法 | |
主要採光 | バルコニー | ||
保証・評価 | |||
リフォーム | |||
土地面積 | 132.24㎡(40坪) | 接道 | 北側(公道)幅 約6.0m 間口 約10.80m 西側(公道)幅 約6.0m 間口 約12.00m |
私道 | セットバック | ||
地目 | 宅地 | 地勢 | |
権利 | 所有権 |
||
都市計画 | 市街化区域 |
用途地域 | 1種中高 |
建ぺい/容積率 | 60% / 200% | 土地国土法 | |
許可番号 | 建築基準法 | ||
法令制限 | 法22条区域・第1種高度地区(18m) | ||
小学区 | 上地小学校 徒歩9分 (約686m) | 中学区 | 竜南中学校 徒歩23分 (約1817m) |
現況 | 空 | 引渡 | 相談 |
その他費用 | |||
周辺環境 | コープ岡崎 徒歩4分 (約270m) スギ薬局上地店 徒歩3分 (約230m) 岡崎上地郵便局 徒歩4分 (約260m) 岡崎信用金庫 上地支店 徒歩5分 (約360m) 西尾信用金庫 岡崎南支店 徒歩6分 (約460m) レスパ 徒歩6分 (約460m) 上地小学校 徒歩9分 (約700m) セブンイレブン岡崎若松町店 徒歩8分 (約590m) ホリデイスポーツクラブ岡崎 徒歩8分 (約610m) 南公園 徒歩11分 (約870m) |
||
備考 | ※契約不適合免責。 ※火災報知器未設置。 ※浸水実績15㎝~20㎝エリアに該当。 ※越境物が有る場合は現況渡し。 |
||
物件番号 | 4172708 | 取引態様 | 媒介 |
取扱店舗情報
電話番号 | 0564-57-1366 |
---|---|
所在地 | 〒444-0830 愛知県岡崎市柱西1丁目7-5 |
営業時間 | 9:00-19:00 |
定休日 | 水曜日 |
宅建免許番号 | 国土交通大臣(1)第10568号 |
アクセス | 店舗への地図はこちら |
来店ご予約
愛知県岡崎市で価格が似ている物件はこちら
- 愛知県
マイページ物件数 - 30,539件
愛知県中古一戸建て新着物件
-
-
-
- 中古一戸建て
- 2,299万円
-
海部郡蟹江町桜3丁目
-
JR関西本線蟹江駅
-
-
-
-
- 中古一戸建て
- 1,499万円
-
あま市中橋廻間
-
名鉄津島線木田駅
-
-
-
-
- 中古一戸建て
- 1,590万円
-
知多郡武豊町字梨子ノ木2丁目
-
名鉄河和線上ゲ駅
-
-
-
-
- 中古一戸建て
- 1,799万円
-
名古屋市港区船頭場3丁目
-
名古屋臨海高速鉄道港北駅
-
-
-
-
- 中古一戸建て
- 1,200万円
-
新城市字宮ノ西
-
JR飯田線新城駅
-
-
-
-
- 中古一戸建て
- 1,200万円
-
新城市字宮ノ西
-
JR飯田線新城駅
-
-
-
-
- 中古一戸建て
- 3,400万円
-
名古屋市緑区滝ノ水2丁目
-
名古屋市桜通線神沢駅
-
- お近くの店舗を探す
-
おすすめ物件
-
-
-
- 中古一戸建て
- 4,280万円
-
豊田市上郷町5丁目
-
愛知環状鉄道三河上郷
-
-
-
-
- 中古一戸建て
- 3,290万円
-
名古屋市緑区有松三丁山
-
名鉄名古屋本線有松
-
-
-
-
- 中古一戸建て
- 3,990万円
-
高浜市沢渡町2丁目
-
名鉄三河線三河高浜
-
-
-
-
- 中古一戸建て
- 2,480万円
-
名古屋市北区楠1丁目
-
JR東海交通城北線比良
-
-
-
-
- 中古一戸建て
- 2,780万円
-
名古屋市北区楠2丁目
-
名鉄小牧線味美
-
-
-
-
- 中古一戸建て
- 3,840万円
-
豊明市二村台4丁目
-
名鉄名古屋本線前後
-
-
-
-
- 中古一戸建て
- 1,280万円
-
愛西市大井町宮新田
-
JR関西本線永和
-
-
-
-
- 中古一戸建て
- 2,180万円
-
岡崎市中島町字流
-
名鉄東部交通バス南中島
-
-
-
-
- 中古一戸建て
- 3,980万円
-
一宮市木曽川町黒田字山口
-
JR東海道本線木曽川
-
-
-
-
- 中古一戸建て
- 2,180万円
-
蒲郡市大塚町平原
-
JR東海道本線三河大塚
-
岡崎市上地2丁目の中古戸建です!小学校まで徒歩約9分!小さなお子様のいるご家庭の方も安心です♪近隣商業施設も充実しております♪国道248号線へのアクセスも良好!ファミリーにおすすめです♪