中古戸建 高槻市浦堂本町
掲載情報更新日:2025年11月04日 次回更新予定日:2025年11月18日
- 1,990万円
-
- 借入ご希望金額
万円 - 借入期間
年 - 借入金利
% - 月々のお支払い金額
円
- 借入ご希望金額
※ 月々のお支払例は目安の試算となりますので、実際の金額とは異なる場合がございます。詳しくは店舗までお問合わせください。
- 高槻市浦堂本町
-
JR東海道線『高槻』 バス乗車7分 芝谷町 停 徒歩7分 (約500m)
阪急電鉄京都線『高槻市』 バス乗車10分 芝谷古墳前 停 徒歩8分 (約640m)
中古戸建 高槻市浦堂本町一戸建て | 物件情報
◆南東角地 陽当たり通風良好♪ ◆2世帯住宅 4SK+2LDK+駐車1台可◎ ◆2沿線利用可
◆JR高槻駅よりバス乗車7分「芝谷町」下車 徒歩7分
◆阪急高槻市駅よりバス乗車10分「芝谷町」下車 徒歩8分
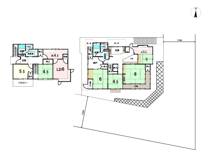
◆上下完全分離型 二世帯住宅
・玄関、水廻り2ヶ所ずつあり♪
・階段からそれぞれの世帯へ行き来可能◎
◆1階純和風 和室4部屋+中庭付き
◆周辺環境
・キラキラ園 徒歩2分
・ニコニコ園 徒歩4分
・スズラン保育園 徒歩4分
・安岡寺小学校 徒歩4分
・芝谷中学校 徒歩8分
・セブン-イレブン 高槻浦堂本町店 徒歩7分
・ローソン 高槻芝谷町店 徒歩9分
・ミートモリタ屋 聖ヶ丘店 徒歩8分
・サンディ高槻浦堂店 徒歩10分
・高槻市立服部図書館 徒歩7分
・高槻芝谷郵便局 徒歩8分
・北おおさか信用金庫 清水支店 徒歩9分
・浦堂本町やまぶき公園 徒歩2分
物件の設備
- 浴室に窓
- トイレ2箇所
- 室内洗濯機置場
- 洗面所独立
- 和室
物件の特徴
- 2沿線利用可
- 小学校徒歩10分以内
- 南側道路面す
- スーパーが近い
- 閑静な住宅街
- 眺望良好
- 通風良好
- 陽当り良好
- 2階建
- 角地
物件詳細情報
| 価格 | 1,990万円 | 間取り | 6LDK+S |
|---|---|---|---|
| 物件種別 | 中古一戸建て | ||
| 所在地 | 大阪府高槻市浦堂本町 | ||
| アクセス |
|
||
| 建物面積 | 145.39㎡ | 駐車場 | あり 普通:1台 |
| 築年月 | 1988年(昭和63年)07月築 | ||
| 建物構造 | 木造 瓦葺 2階建 | 工法 | |
| 主要採光 | バルコニー | ||
| 保証・評価 | |||
| リフォーム | |||
| 土地面積 | 公173.72㎡(52.55坪) | 接道 | 南側幅 約5.8m 東側幅 約5.8m |
| 私道 | セットバック | ||
| 地目 | 宅地 | 地勢 | |
| 権利 | 所有権 |
||
| 都市計画 | 市街化区域 |
用途地域 | 1種低層 |
| 建ぺい/容積率 | 50% / 100% | 土地国土法 | |
| 許可番号 | 建築基準法 | ||
| 法令制限 | 第1種高度地区 | ||
| 小学区 | 安岡寺小学校 徒歩4分 (約300m) | 中学区 | 芝谷中学校 徒歩8分 (約600m) |
| 現況 | 空 | 引渡 | 相談 |
| その他費用 | |||
| 周辺環境 | ファミリーマート高槻浦堂店 徒歩9分 (約720m) えむら歯科 徒歩9分 (約670m) サンディ高槻浦堂店 徒歩10分 (約770m) よしだ整骨院 徒歩10分 (約800m) 北おおさか信用金庫 清水支店 徒歩11分 (約830m) |
||
| 備考 | ◆南東角地 陽当たり良好 ◆2世帯住宅 4SK+2LDK+駐車1台可 ◆1階、2階の完全分離型 玄関・水廻り2ヶ所ずつあり♪ ◆1階純和風 和室4部屋+中庭 ◆2沿線利用可 ・JR高槻駅よりバス乗車7分「芝谷町」下車 徒歩7分 ・阪急高槻市駅よりバス乗車10分「芝谷町」下車 徒歩8分 ◆周辺環境 ・キラキラ園 徒歩2分 ・ニコニコ園 徒歩4分 ・スズラン保育園 徒歩4分 ・安岡寺小学校 徒歩4分 ・芝谷中学校 徒歩8分 ・セブン-イレブン 高槻浦堂本町店 徒歩7分 ・ローソン 高槻芝谷町店 徒歩9分 ・ミートモリタ屋 聖ヶ丘店 徒歩8分 ・サンディ高槻浦堂店 徒歩10分 ・高槻市立服部図書館 徒歩7分 ・高槻芝谷郵便局 徒歩8分 ・北おおさか信用金庫 清水支店 徒歩9分 ・浦堂本町やまぶき公園 徒歩2分 |
||
| 物件番号 | 4178427 | 取引態様 | 専任 |
取扱店舗情報
ハウスドゥ 阪急高槻南 阿佐建築工務株式会社 店舗詳細ページへ
| 電話番号 | 072-668-1888 |
|---|---|
| 所在地 | 〒569-0072 大阪府高槻市京口町8-7 |
| 営業時間 | 9:00~18:00 |
| 定休日 | 火曜日・水曜日 |
| 宅建免許番号 | 大阪府知事(15)第10672号 |
| アクセス | 店舗への地図はこちら |

来店ご予約
大阪府高槻市で価格が似ている物件はこちら
- 大阪府
マイページ物件数 - 15,756件
大阪府中古一戸建て新着物件
-
-

-
- 中古一戸建て
- 1,480万円
-
阪南市尾崎町8丁目
-
南海電鉄本線尾崎駅
-
-
-

-
- 中古一戸建て
- 4,580万円
-
大阪市淀川区加島1丁目
-
JR東西線加島駅
-
-
-

-
- 中古一戸建て
- 4,580万円
-
大阪市淀川区加島1丁目
-
JR東西線加島駅
-
-
-

-
- 中古一戸建て
- 2,880万円
-
大阪市住之江区平林南2丁目
-
南港ポートタウン線(ニュートラム)平林駅
-
-
-

-
- 中古一戸建て
- 2,980万円
-
大阪市平野区加美北8丁目
-
JRおおさか東線衣摺加美北駅
-
-
-

-
- 中古一戸建て
- 4,780万円
-
茨木市大池2丁目
-
阪急電鉄京都線茨木市駅
-
-
-

-
- 中古一戸建て
- 780万円
-
和泉市葛の葉町1丁目
-
JR阪和線北信太駅
-
- お近くの店舗を探す
-
おすすめ物件
-
-

-
- 中古一戸建て
- 1億8,000万円
-
大阪市住吉区清水丘3丁目
-
南海電鉄高野線我孫子前
-
-
-

-
- 中古一戸建て
- 2,980万円
-
八尾市八尾木3丁目
-
JR関西本線志紀
-
-
-

-
- 中古一戸建て
- 1,780万円
-
堺市中区伏尾
-
南海電鉄泉北線泉ケ丘
-
-
-

-
- 中古一戸建て
- 4,580万円
-
大阪市住之江区住之江1丁目
-
南海電鉄本線住ノ江
-
-
-

-
- 中古一戸建て
- 2,980万円
-
茨木市北春日丘1丁目
-
JR東海道線茨木
-
-
-

-
- 中古一戸建て
- 4,490万円
-
大阪市住吉区万代東2丁目
-
大阪市御堂筋線西田辺
-
-
-

-
- 中古一戸建て
- 2,780万円
-
大阪市住吉区山之内4丁目
-
JR阪和線杉本町
-
-
-

-
- 中古一戸建て
- 1,600万円
-
八尾市垣内4丁目
-
近鉄信貴線信貴山口
-
-
-

-
- 中古一戸建て
- 2,380万円
-
泉大津市寿町
-
南海電鉄本線松ノ浜
-
-
-

-
- 中古一戸建て
- 3,250万円
-
大阪市此花区酉島6丁目
-
JR桜島線安治川口
-






















担当エージェント:赤松 陸
完全分離型の二世帯住宅で、お互いのプライバシーを守りながらお住まいいただけます。南東角地の為、明るく開放感があり、毎日気持ちよくお過ごしいただけます♪幼稚園、保育園、小中学校、コンビニ、スーパーまでも徒歩10分圏内と便利な立地です♪