江戸川区北小岩4丁目 中古戸建
掲載情報更新日:2025年11月29日 次回更新予定日:2025年12月13日
- 4,950万円
-
- 借入ご希望金額
万円 - 借入期間
年 - 借入金利
% - 月々のお支払い金額
円
- 借入ご希望金額
※ 月々のお支払例は目安の試算となりますので、実際の金額とは異なる場合がございます。詳しくは店舗までお問合わせください。
- 江戸川区北小岩4丁目
-
京成本線『江戸川』 徒歩7分 (約560m)
JR総武・中央緩行線『小岩』 バス乗車3分 北小岩二丁目 停 徒歩18分 (約1440m)
京成本線『京成小岩』 徒歩16分 (約1280m)
江戸川区北小岩4丁目 中古戸建一戸建て | 物件情報
★京成本線「江戸川」駅まで徒歩7分 ★閑静な住宅街で住環境良好
■ご案内方法
ご自宅へお迎え・最寄り駅等でお待ち合わせ、弊社へのご来社など、ご相談下さい。
ご希望があれば周辺環境、お客様の希望に合わせた物件などもご案内を致します。
■ご予約方法
事前に鍵の手配が必要な場合がありますので、お早目にご連絡をいただけると、ご案内がスムーズです。
■その他、各種ご相談もお気軽にどうぞ!
◎LIFE PLAN DOによるライフプランのシミュレーション
・漠然としたキャッシュフローをグラフに
・ライフプランに合った資金計画 生命保険の見直しetc...
◎住宅ローンのご相談
・繰り上げ返済は「いつ」「どのくらい」するが効果的?
・どこの銀行で借りるとお得なの?・適切な借入額は?etc...
■キッズスペースもご用意しております
弊社にはお子様が退屈しないよう、DVD、おもちゃ、絵本、ぬりえなどキッズスペースも充実させております。
■お車はお近くのパーキングへ駐車して下さい。
ご対応ご案内の後に、弊社で駐車代金をお支払い致します。
お気軽にお申し付けください。
物件の設備
- 電気
- 公営水道
- 下水道
- 都市ガス
- バス
- 温水洗浄便座
- 室内洗濯機置場
- 洗髪洗面化粧台
- 洗面所独立
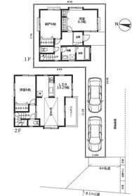
- LDK15畳以上
- クローゼット
- ウォークインクローゼット
- シューズボックス
物件の特徴
- 前道6m以上
- 閑静な住宅街
- 陽当り良好
- 2階建
物件詳細情報
| 価格 | 4,950万円 | 間取り | 4LDK |
|---|---|---|---|
| 物件種別 | 中古一戸建て | ||
| 所在地 | 東京都江戸川区北小岩4丁目 | ||
| アクセス |
|
||
| 建物面積 | 公98.74㎡ | 駐車場 | なし |
| 築年月 | 2014年(平成26年)09月築 | ||
| 建物構造 | 木造 2階建 | 工法 | |
| 主要採光 | バルコニー | ||
| 保証・評価 | |||
| リフォーム | |||
| 土地面積 | 公108.42㎡(32.79坪) | 接道 | 北側(公道)幅 約8.0m |
| 私道 | セットバック | ||
| 地目 | 宅地 | 地勢 | |
| 権利 | 所有権 |
||
| 都市計画 | 市街化区域 |
用途地域 | 1種中高 |
| 建ぺい/容積率 | 60% / 200% | 土地国土法 | |
| 許可番号 | 建築基準法 | ||
| 法令制限 | |||
| 小学区 | 上小岩小学校 徒歩10分 (約746m) | 中学区 | 小岩第三中学校 徒歩14分 (約1100m) |
| 現況 | 空 | 引渡 | 相談 |
| その他費用 | |||
| 周辺環境 | 太陽の子北小岩保育園 徒歩3分 (約240m) ローソン北小岩四丁目店 徒歩3分 (約180m) 小岩菖蒲園 徒歩3分 (約180m) 北小岩松の木児童遊園 徒歩3分 (約190m) 北小岩胃腸科クリニック 徒歩6分 (約420m) 北小岩七郵便局 徒歩7分 (約520m) 江戸川駅 徒歩6分 (約470m) 上小岩小学校 徒歩8分 (約590m) リブレ京成 江戸川駅前店 徒歩9分 (約670m) |
||
| 備考 | ★京成本線「江戸川」駅まで徒歩7分 ★閑静な住宅街で住環境良好 |
||
| 物件番号 | 4200630 | 取引態様 | 媒介 |
取扱店舗情報
ハウスドゥ 小岩駅前 株式会社ハローホーム 店舗詳細ページへ
| 電話番号 | 03-5612-8648 |
|---|---|
| 所在地 | 〒133-0056 東京都江戸川区南小岩7-26-20 1F |
| 営業時間 | 10:30-19:00 |
| 定休日 | 水曜日、第一・第三・第五火曜日 |
| 宅建免許番号 | 東京都知事(5)第83389号 |
| アクセス | 店舗への地図はこちら |

来店ご予約
東京都江戸川区で価格が似ている物件はこちら
- 東京都
マイページ物件数 - 5,206件
最近見た物件
-
-

-
- 中古マンション
- 2,380万円
-
大阪市天王寺区逢阪2丁目
-
大阪市谷町線四天王寺前夕陽ヶ丘
-
-
-

-
- 中古一戸建て
- 2,780万円
-
三重郡朝日町大字縄生
-
近鉄名古屋線伊勢朝日
-
東京都中古一戸建て新着物件
- お近くの店舗を探す
-
おすすめ物件
-
-

-
- 中古一戸建て
- 1億9,800万円
-
世田谷区成城8丁目
-
小田急小田原線成城学園前
-
-
-

-
- 中古一戸建て
- 4,280万円
-
青梅市滝ノ上町
-
JR青梅線青梅
-
-
-

-
- 中古一戸建て
- 4,280万円
-
練馬区西大泉4丁目
-
西武池袋・豊島線大泉学園
-
-
-

-
- 中古一戸建て
- 2,100万円
-
足立区神明南1丁目
-
東京メトロ千代田線北綾瀬
-
-
-

-
- 中古一戸建て
- 4,980万円
-
調布市入間町3丁目
-
小田急小田原線成城学園前
-
-
-

-
- 中古一戸建て
- 6,080万円
-
大田区大森西4丁目
-
京急本線大森町
-
-
-

-
- 中古一戸建て
- 1,780万円
-
青梅市畑中1丁目
-
JR青梅線青梅
-
-
-

-
- 中古一戸建て
- 1,200万円
-
青梅市師岡町2丁目
-
JR青梅線河辺
-
-
-

-
- 中古一戸建て
- 700万円
-
青梅市大門1丁目
-
JR青梅線東青梅
-
-
-

-
- 中古一戸建て
- 4,780万円
-
国分寺市光町3丁目
-
JR中央本線国立
-










担当エージェント:増田 正宏
★京成本線「江戸川」駅まで徒歩7分
★閑静な住宅街で住環境良好
物件担当より
お客様の理想の住まい探しを、私たちは全力でサポートします!
ライフスタイルやご希望に合わせた最適な物件をご提案し、安心してご相談いただける環境を整えております。
住まい選びは人生の大きな決断のひとつだからこそ、細やかな対応と信頼できる情報をご提供いたします。
お気軽にお問い合わせください!