岡山市北区三門西町の中古戸建
掲載情報更新日:2026年02月17日 次回更新予定日:2026年03月03日
- 1,490万円
-
- 借入ご希望金額
万円 - 借入期間
年 - 借入金利
% - 月々のお支払い金額
円
- 借入ご希望金額
※ 月々のお支払例は目安の試算となりますので、実際の金額とは異なる場合がございます。詳しくは店舗までお問合わせください。
- 岡山市北区三門西町
-
JR吉備線『備前三門』 徒歩2分 (約160m)
JR山陽本線『岡山』 徒歩23分 (約1840m)
JR吉備線『大安寺』 徒歩24分 (約1920m)
岡山市北区三門西町一戸建て | 物件情報
私立高校生が多く利用するJR備前三門駅から徒歩3分!北区三門西町
【民宿・お店を持ちたい方オススメ!JR備前三門駅 徒歩3分!北区三門西町】
【見学予約受付中〈無料〉】
■大きな三門公園から向かい!
小さなお子様の目にも留まりやすい♪
■ニシナ・コスモス 車で4分!仕入れ先も充実
■敷地内駐車場2台駐車可(車種による)
※一部建物築年数不詳
お気軽にご相談ください♪
ハウスドゥ 岡山大安寺は
《リノベーション事業部》を併設しております
不動産+リノベーションでお客様の夢を叶えませんか♪
◎フルリフォームでこだわりのお家を作りたい!など
どんなご希望でもお気軽にご相談ください
物件の設備
- 上水道
- 公共下水
- プロパンガス
- 個別プロパン
- システムキッチン
- 浴室に窓
- トイレ
- トイレ2箇所
- 和室
物件の特徴
- 2階建
物件詳細情報
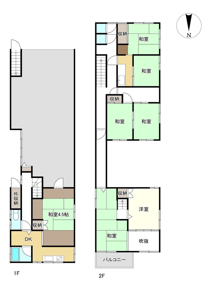
| 価格 | 1,490万円 | 間取り | 7DK |
|---|---|---|---|
| 物件種別 | 中古一戸建て | ||
| 所在地 | 岡山県岡山市北区三門西町 | ||
| アクセス |
|
||
| 建物面積 | 232.9㎡ | 駐車場 | あり 普通:2台 |
| 築年月 | 1968年(昭和43年)01月築 | ||
| 建物構造 | 鉄骨 (一部 木造 ) 2階建 | 工法 | |
| 主要採光 | バルコニー | ||
| 保証・評価 | |||
| リフォーム | |||
| 土地面積 | 公165.34㎡(50.01坪) | 接道 | 北側(公道)幅 約4.8m 間口 約6.50m |
| 私道 | セットバック | ||
| 地目 | 宅地 | 地勢 | |
| 権利 | 所有権 |
||
| 都市計画 | 市街化区域 |
用途地域 | 1種住居(一部近隣商業 含む) |
| 建ぺい/容積率 | 60%(一部80% 含む) / 192%(一部288% 含む) | 土地国土法 | |
| 許可番号 | 建築基準法 | ||
| 法令制限 | 宅地造成及び特定盛土等規制法・準防火地域 | ||
| 小学区 | 三門小学校 徒歩4分 (約300m) | 中学区 | 石井中学校 徒歩3分 (約220m) |
| 現況 | 居住中 | 引渡 | 相談 |
| その他費用 | |||
| 周辺環境 | 石井中学校 徒歩4分 (約270m) 三門小学校 徒歩4分 (約310m) ザグザグ下伊福店 徒歩12分 (約950m) コーナンPRO高柳 徒歩14分 (約1060m) 京 ハピーマート京山店 徒歩19分 (約1520m) 京 パークス伊福町店 徒歩17分 (約1290m) 京 サイピア(岡山生涯学習センター) 徒歩25分 (約1980m) ザグザグ奉還町店 徒歩17分 (約1360m) パークス伊福町 徒歩22分 (約1730m) |
||
| 備考 | ※一部建物築年数不詳 | ||
| 物件番号 | 4201592 | 取引態様 | 専任 |
取扱店舗情報
ハウスドゥ 岡山大安寺 株式会社インテックスホームズ 店舗詳細ページへ
| 電話番号 | 086-250-0808 |
|---|---|
| 所在地 | 〒700-0064 岡山県岡山市北区大安寺南町1丁目2-103 |
| 営業時間 | 9:00~18:00 |
| 定休日 | 水曜日、第2火曜日 |
| 宅建免許番号 | 岡山県知事(2)第5693号 |
| アクセス | 店舗への地図はこちら |

来店ご予約
岡山県岡山市北区で価格が似ている物件はこちら
- 岡山県
マイページ物件数 - 4,421件
最近見た物件
-
-

-
- 新築一戸建て
- 2,398万円
-
鹿児島市西伊敷6丁目
-
JR九州新幹線鹿児島中央
-
-
-

-
- 中古一戸建て
- 4,380万円
-
福岡市博多区新和町2丁目
-
JR鹿児島本線春日
-
-
-

-
- 中古一戸建て
- 1,450万円
-
名古屋市守山区川西2丁目
-
名古屋市上飯田線上飯田
-
岡山県中古一戸建て新着物件
-
-

-
- 中古一戸建て
- 1,580万円
-
浅口郡里庄町大字里見
-
JR山陽本線里庄駅
-
-
-

-
- 中古一戸建て
- 1,899万円
-
総社市泉
-
JR吉備線東総社駅
-
-
-

-
- 中古一戸建て
- 2,499万円
-
岡山市中区四御神
-
宇野バス「四御神」バス停
-
-
-

-
- 中古一戸建て
- 522万円
-
岡山市北区建部町中田
-
JR津山線建部駅
-
-
-

-
- 中古一戸建て
- 1,880万円
-
岡山市中区四御神
-
宇野バス「四御神車庫」バス停
-
-
-

-
- 中古一戸建て
- 1,699万円
-
倉敷市玉島
-
JR山陽本線新倉敷駅
-
-
-

-
- 中古一戸建て
- 1,850万円
-
倉敷市林
-
JR本四備讃線木見駅
-
- お近くの店舗を探す
-
おすすめ物件
-
-

-
- 中古一戸建て
- 2,700万円
-
倉敷市上東
-
JR山陽本線中庄
-
-
-

-
- 中古一戸建て
- 2,620万円
-
岡山市北区中撫川
-
JR山陽本線庭瀬
-
-
-

-
- 中古一戸建て
- 2,580万円
-
倉敷市児島赤崎4丁目
-
JR本四備讃線児島
-
-
-

-
- 中古一戸建て
- 1,348万円
-
岡山市中区四御神
-
JR山陽本線東岡山
-
-
-

-
- 中古一戸建て
- 700万円
-
赤磐市河田原
-
JR山陽本線熊山
-
-
-

-
- 中古一戸建て
- 1,200万円
-
岡山市中区福泊
-
岡山電軌東山本線東山岡電ミュージアム
-
-
-

-
- 中古一戸建て
- 2,000万円
-
岡山市中区湊
-
岡山電軌東山本線東山岡電ミュージアム
-
-
-

-
- 中古一戸建て
- 1,290万円
-
岡山市中区関
-
JR山陽本線高島
-
-
-

-
- 中古一戸建て
- 2,850万円
-
倉敷市広江7丁目
-
JR本四備讃線木見
-
-
-

-
- 中古一戸建て
- 2,400万円
-
倉敷市児島稗田町
-
JR本四備讃線上の町
-














