中古戸建 矢掛町矢掛 矢掛小学校・矢掛中学校エリア
掲載情報更新日:2025年09月22日 次回更新予定日:2025年10月06日
- 1,200万円
-
- 借入ご希望金額
万円 - 借入期間
年 - 借入金利
% - 月々のお支払い金額
円
- 借入ご希望金額
※ 月々のお支払例は目安の試算となりますので、実際の金額とは異なる場合がございます。詳しくは店舗までお問合わせください。
- 小田郡矢掛町矢掛
-
井原鉄道『矢掛』 徒歩5分 (約350m)
中古戸建 矢掛町矢掛 矢掛小学校・矢掛中学校エリア一戸建て | 物件情報
太陽光発電システム搭載!5LDK+S!別棟あり!事務所/教育施設/民泊/飲食店/保養所/合宿所などに
◎ネットからご来店予約でQuoカード1000円分プレゼント!
☆延床面積222.61㎡敷地面積270坪以上の広々住宅♪
☆駅徒歩4分、通勤・通学にも便利な立地◎
\*おすすめPOINT*/
・一階部分に27帖と広々洋室♪
・ダブルキッチン&ダブルシンク完備!大人数に対応♪
・より快適に住みやすく生まれ変わったリフォーム済み物件♪
教育施設/民泊/店舗/保養所/合宿所/相撲部屋/グループホーム
★周辺環境★
井原鉄道 矢掛駅 徒歩約4分(350m)
矢掛屋INN&SUITES(温泉宿) 徒歩約9分(650m)
矢掛プラザ(スーパー) 徒歩約13分(950m)
『全国700店舗展開の情報ネットワーク!』
◆物件見学・オープンハウス随時開催!◆
◇資金計画、住宅ローン、リフォーム、火災保険
◇提携の銀行や税理士による無料相談
◇ドリンクサービス充実
お一人でのご来店、お子様を連れてのご来店も可能です
お気軽にお問い合わせください♪
☆―ご予約・お問合せ―☆
ハウスドゥ総社:0866-95-2775
までお問い合わせください!
物件の設備
- 電気
- 上水道
- 下水道
- プロパンガス
- 給湯
- コンロ三口
- グリル
- システムキッチン
- ユニットバス
- オートバス
- 追焚機能
- 浴室に窓
- トイレ2箇所
- 温水洗浄便座
- グルニエ
- 2面採光
- フローリング
- フローリング張替
- バルコニー
- 庭50坪以上
物件の特徴
- 内装リフォーム済
- 南側道路面す
- 閑静な住宅街
- 3階建以上
- 前面棟無
物件詳細情報
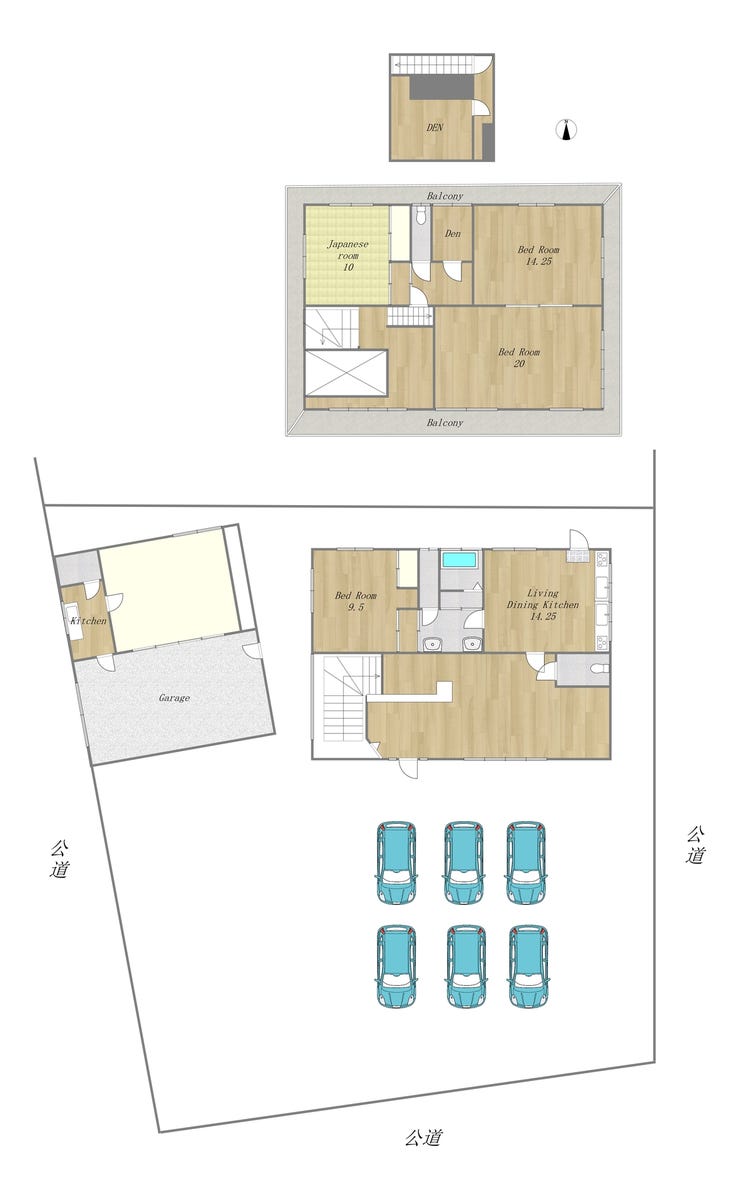
価格 | 1,200万円 | 間取り | 5LDK+S |
---|---|---|---|
物件種別 | 中古一戸建て | ||
所在地 | 岡山県小田郡矢掛町矢掛 | ||
アクセス |
|
||
建物面積 | 公222.61㎡ | 駐車場 | あり 普通:6台 |
築年月 | 1972年(昭和47年)02月築 | ||
建物構造 | RC 3階建 | 工法 | |
主要採光 | 南向 | バルコニー | |
保証・評価 | |||
リフォーム | 【水回り】2016年01月 キッチン・洗面 1つずつ増設 【内装】2016年01月 床 ・全室クロス |
||
土地面積 | 公918.64㎡(277.88坪) | 接道 | 南側(公道)幅 約5.6m 西側(公道)幅 約2.9m 東側(公道)幅 約1.7m |
私道 | セットバック | ||
地目 | 宅地 | 地勢 | 平坦 |
権利 | 所有権 |
||
都市計画 | 非線引区域 |
用途地域 | 1種住居 |
建ぺい/容積率 | 60% / 200% | 土地国土法 | |
許可番号 | 建築基準法 | ||
法令制限 | |||
小学区 | 矢掛小学校 徒歩10分 (約750m) | 中学区 | 矢掛中学校 徒歩10分 (約800m) |
現況 | 空 | 引渡 | 相談 |
その他費用 | |||
周辺環境 | 岡山県立矢掛高等学校 徒歩2分 (約140m) 井原鉄道 矢掛駅 徒歩4分 (約320m) 矢掛町国民健康保険病院 徒歩7分 (約520m) 矢掛屋INN&SUITES 徒歩9分 (約680m) 矢掛屋別館 湯の華温泉 徒歩9分 (約680m) 矢掛町立矢掛小学校 徒歩9分 (約690m) |
||
備考 | 附属建物あり(鉄筋コンクリート造、昭和51年築、76.44㎡) 太陽光発電システムあり(5.025kw) |
||
物件番号 | 4206387 | 取引態様 | 一般 |
取扱店舗情報
電話番号 | 0866-95-2775 |
---|---|
所在地 | 〒719-1131 岡山県総社市中央1丁目21-101 |
営業時間 | 10:00~18:00 |
定休日 | 火曜日、水曜日、年末年始 |
宅建免許番号 | 岡山県知事(2)第5846号 |
アクセス | 店舗への地図はこちら |
来店ご予約
- 岡山県
マイページ物件数 - 4,437件
最近見た物件
岡山県中古一戸建て新着物件
- お近くの店舗を探す
-
おすすめ物件
-
-
-
- 中古一戸建て
- 370万円
-
倉敷市児島柳田町
-
JR本四備讃線上の町
-
-
-
-
- 中古一戸建て
- 700万円
-
倉敷市児島元浜町
-
JR本四備讃線児島
-
-
-
-
- 中古一戸建て
- 450万円
-
倉敷市児島柳田町
-
JR本四備讃線上の町
-
-
-
-
- 中古一戸建て
- 1,600万円
-
岡山市中区関
-
JR山陽本線高島
-
-
-
-
- 中古一戸建て
- 2,350万円
-
岡山市北区宿
-
JR津山線備前原
-
-
-
-
- 中古一戸建て
- 1,299万円
-
赤磐市桜が丘西1丁目
-
JR山陽本線瀬戸
-
-
-
-
- 中古一戸建て
- 1,200万円
-
小田郡矢掛町矢掛
-
井原鉄道矢掛
-
-
-
-
- 中古一戸建て
- 780万円
-
津山市山北
-
JR津山線津山
-
-
-
-
- 中古一戸建て
- 750万円
-
倉敷市児島下の町6丁目
-
JR本四備讃線児島
-
-
-
-
- 中古一戸建て
- 3,500万円
-
倉敷市玉島乙島
-
JR山陽本線新倉敷
-
担当エージェント:草地 樹
★初めてお問い合わせいただくお客様へ
1.物件について詳細をご説明します。(オンライン可)
2.お客様のご希望をどうぞお聞かせください♪
3.今後の流れを具体的にご案内
所要時間:約30分~1時間
★物件を見に行こう
所要時間: 1時間~1時間半(移動時間を除く)
気になる物件をじっくりとご確認いただけます。
現地で実際に確かめてください♪
周辺環境など実際の生活を想定したご案内をします。
+‥‥▼お電話でのご予約、ご質問・ご要望はこちらまで▼‥‥+
TEL:0866-95-2775
ハウスドゥ 総社
◆ご売却◆
売却相談、査定も承っております。
相続やお住み替え、リースバック
不用品の処分や片付けも対応!
ご売却までの流れなどお気軽にご相談ください。