裾野市千福が丘1丁目の中古戸建
掲載情報更新日:2026年04月24日 次回更新予定日:2026年05月08日
- 1,498万円
-
- 借入ご希望金額
万円 - 借入期間
年 - 借入金利
% - 月々のお支払い金額
円
- 借入ご希望金額
※ 月々のお支払例は目安の試算となりますので、実際の金額とは異なる場合がございます。詳しくは店舗までお問合わせください。
- 裾野市千福が丘1丁目
-
JR御殿場線『裾野』 車13分(約5.8km)
裾野市千福が丘1丁目一戸建て | 物件情報
【千福が丘小学校・富岡中学校】内覧予約、柔軟に対応中!お気軽にお申し付け下さい。
ピンポイントのカスタマイズや、お好みの壁紙等お客様オンリーワンへのご変更のご相談も、お任せ下さい。
またご予算に応じました様々なプランもご用意致します。快適な家づくり・住み心地の良い家づくり、お客様ファーストでお手伝い致します!。どんな細かいこともご相談下さい。
物件の詳細以外にも資金計画のご相談承ります。
・初めての住宅ローンで不安です。
・いくら借り事ができるのだろう?
・頭金0円でも大丈夫かな?
・購入後も無理の無い物件価格とは?
・賃貸から住宅購入する際の予算はどうする?
・ライフプランに合った資金計画について
・今住んでる家の住宅ローンが残っていても住み替え出来るかな?
・自営業者だけど、勤続年数がまだ短くて、年収が低いのですが、パート勤務なので、育児休暇中でも大丈夫?様々な不安お話下さい。
弊社エージェントがご相談承ります。
事前審査も承っております。
お気軽にお申し付け下さい。
物件の設備
- 上水道
- 公営水道
- 下水道
- 公共下水
- コンロ三口
- バス1坪以上
- 追焚機能
- トイレ2箇所
- 温水洗浄便座
- 洗髪洗面化粧台
- 照明器具
- フローリング張替
- 庭
物件の特徴
- 内装リフォーム済
- 外装リフォーム済
- 内外装リフォーム済
- 前道6m以上
- 南側道路面す
- 2階建
- 瑕疵保険検査基準適合
- 瑕疵保険(国交省指定)保証利用可
物件詳細情報
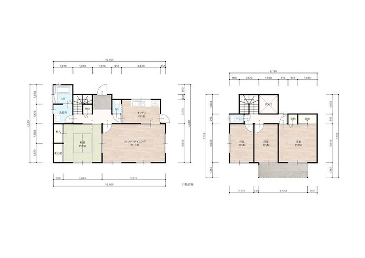
| 価格 | 1,498万円 | 間取り | 4LDK |
|---|---|---|---|
| 物件種別 | 中古一戸建て | ||
| 所在地 | 静岡県裾野市千福が丘1丁目 | ||
| アクセス |
|
||
| 建物面積 | 105.53㎡ | 駐車場 | あり 普通:2台 |
| 築年月 | 1987年(昭和62年)09月築 | ||
| 建物構造 | 木造 2階建 | 工法 | |
| 主要採光 | バルコニー | ||
| 保証・評価 | 【瑕疵保険(国交省指定)】利用可 |
||
| リフォーム | 【水回り】2024年11月 トイレ・洗面 【外装】2024年11月 外壁 ・屋根 【内装】2024年11月 壁、天井 ・床 |
||
| 土地面積 | 公206.63㎡(62.50坪) | 接道 | 東側(公道)幅 約6.0m 間口 約8.10m 南側(公道)幅 約6.0m 間口 約10.30m 北側(私道)幅 約3.5m 間口 約12.60m(位置指定) |
| 私道 | セットバック | ||
| 地目 | 宅地 | 地勢 | |
| 権利 | 所有権 |
||
| 都市計画 | 市街化区域 |
用途地域 | 1種低層 |
| 建ぺい/容積率 | 50% / 80% | 土地国土法 | |
| 許可番号 | 建築基準法 | ||
| 法令制限 | |||
| 小学区 | 千福が丘小学校 徒歩6分 (約450m) | 中学区 | 富岡中学校 徒歩30分 (約2400m) |
| 現況 | 空 | 引渡 | 相談 |
| その他費用 | |||
| 備考 | |||
| 物件番号 | 4210182 | 取引態様 | 媒介 |
取扱店舗情報
| 電話番号 | 055-969-3366 |
|---|---|
| 所在地 | 〒410-0312 静岡県沼津市原1418-40 |
| 営業時間 | 10:00~18:00 |
| 定休日 | 水曜日 |
| 宅建免許番号 | 静岡県知事(2)第14312号 |
| アクセス | 店舗への地図はこちら |

来店ご予約
静岡県裾野市で価格が似ている物件はこちら
- 静岡県
マイページ物件数 - 2,731件
最近見た物件
-
-

-
- 新築一戸建て
- 3,498万円
-
北九州市八幡西区下上津役4丁目
-
筑豊電気鉄道三ヶ森
-
-
-

-
- 中古一戸建て
- 3,099万円
-
豊田市五ケ丘7丁目
-
名鉄豊田線豊田市
-
-
-

-
- 中古一戸建て
- 2,590万円
-
下関市長府安養寺3丁目
-
JR山陽本線長府
-
静岡県中古一戸建て新着物件
- お近くの店舗を探す
-
おすすめ物件
-
-

-
- 中古一戸建て
- 4,990万円
-
静岡市葵区瀬名川2丁目
-
JR東海道本線草薙
-
-
-

-
- 中古一戸建て
- 2,500万円
-
三島市芙蓉台3丁目
-
JR御殿場線長泉なめり
-
-
-

-
- 中古一戸建て
- 4,280万円
-
浜松市中央区初生町
-
遠鉄バス「初生町北」停
-
-
-

-
- 中古一戸建て
- 2,180万円
-
浜松市中央区和合町
-
JR東海道本線浜松
-
-
-

-
- 中古一戸建て
- 2,900万円
-
浜松市中央区早出町
-
遠州鉄道上島
-
-
-

-
- 中古一戸建て
- 2,980万円
-
三島市東大場1丁目
-
伊豆箱根鉄道駿豆線三島二日町
-
-
-

-
- 中古一戸建て
- 1,950万円
-
富士市中野
-
岳南電車本吉原
-
-
-

-
- 中古一戸建て
- 3,990万円
-
浜松市中央区小池町
-
遠州鉄道さぎの宮
-
-
-

-
- 中古一戸建て
- 4,990万円
-
静岡市清水区蜂ヶ谷
-
JR東海道本線清水
-
-
-

-
- 中古一戸建て
- 1,770万円
-
静岡市葵区水見色
-
JR東海道本線静岡
-









































担当エージェント:尾形 翔哉
住宅ローンのご質問・ご相談、何なりとお申し付け下さい。
「物件の場所はどこ?」「○○エリアで物件を探しているんだけど?」
内見予約等、どんな事でもハウスドゥ沼津原までお気軽にお問い合わせ下さい♪