甲府市中村町
掲載情報更新日:2025年12月31日 次回更新予定日:2026年01月14日
- 4,780万円
-
- 借入ご希望金額
万円 - 借入期間
年 - 借入金利
% - 月々のお支払い金額
円
- 借入ご希望金額
※ 月々のお支払例は目安の試算となりますので、実際の金額とは異なる場合がございます。詳しくは店舗までお問合わせください。
- 甲府市中村町
-
JR中央本線『甲府』 徒歩48分 (約3800m)
JR中央本線『甲府』 車14分(約4.2km)
JR中央本線『甲府』 バス乗車13分 長塚東 停 徒歩9分 (約700m)
甲府市中村町一戸建て | 物件情報
〇薪ストーブがあり暖かな雰囲気が感じられる住宅♪ガレージは電動シャッター式なので強風時も安心です!
ハウスドゥ 甲府昭和通りでは、お客様の住まい探しのお手伝いを致します。
売主様のご都合により、ネット広告の載せられない希少な物件も多数、
自社HP、店舗内にてお客様のご条件に合った物件を全てご紹介させいただきます。
ご条件に合った物件が見つからないお客様、探し始めで物件情報が欲しいお客様、
住宅ローン、住宅購入にかかる諸費用などまた、相続の相談や問題、
リフォーム、建築のご相談など、住宅のことなら全て、親切丁寧にご対応させていただきます!
もちろん見るだけ、聞くだけ全て無料です♪
ハウスドゥ 甲府昭和通り(TEL:055-287-8666)まで、お気軽にご相談、お問い合わせください。
物件の設備
- 電気
- 上水道
- 下水道
- プロパンガス
- 食器洗浄乾燥機
- コンロ三口
- グリル
- カウンターキッチン
- システムキッチン
- オートバス
- 追焚機能
- 浴室暖房
- 浴室乾燥機
- 浴室に窓
- トイレ2箇所
- 温水洗浄便座
- タンクレストイレ
- 洗髪洗面化粧台
- 床暖房
- ビルトインエアコン
- 照明器具
- 間接照明
- ダウンライト
- カードキー
- ダブルロックキー
- モニタ付インターホン
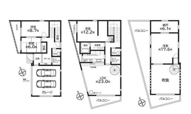
- LDK20畳以上
- 全居室6畳以上
- 吹抜
- 複層ガラス
- 電動シャッター
- クローゼット
- ウォークインクローゼット
- 納戸
- 全居室収納
- ルーフバルコニー
- 庭
- エレベーター
物件の特徴
- 前道6m以上
- 緑豊かな住宅地
- 閑静な住宅街
- 周辺交通量少なめ
- 通風良好
- 陽当り良好
- 3階建以上
- 平坦地
- 即入居可
物件詳細情報
| 価格 | 4,780万円 | 間取り | 4LDK |
|---|---|---|---|
| 物件種別 | 中古一戸建て | ||
| 所在地 | 山梨県甲府市中村町 | ||
| アクセス |
|
||
| 建物面積 | 231.29㎡ | 駐車場 | あり 普通:2台 |
| 築年月 | 2013年(平成25年)08月築 | ||
| 建物構造 | 鉄骨 3階建 | 工法 | |
| 主要採光 | 南向 | バルコニー | |
| 保証・評価 | |||
| リフォーム | |||
| 土地面積 | 公228.22㎡(69.03坪) | 接道 | 西側(公道)幅 約6.0m |
| 私道 | セットバック | ||
| 地目 | 宅地 | 地勢 | 平坦 |
| 権利 | 所有権 |
||
| 都市計画 | 市街化区域 |
用途地域 | 1種中高 |
| 建ぺい/容積率 | 60% / 200% | 土地国土法 | |
| 許可番号 | 建築基準法 | ||
| 法令制限 | |||
| 小学区 | 新田小学校 徒歩12分 (約900m) | 中学区 | 富竹中学校 徒歩21分 (約1620m) |
| 現況 | 空 | 引渡 | 即 |
| その他費用 | |||
| 備考 | |||
| 物件番号 | 4212825 | 取引態様 | 媒介 |
取扱店舗情報
ハウスドゥ 甲府昭和通り 株式会社ドミール 店舗詳細ページへ
| 電話番号 | 055-287-8666 |
|---|---|
| 所在地 | 〒409-3866 山梨県中巨摩郡昭和町西条4309番1 |
| 営業時間 | 9:00~18:30 |
| 定休日 | 年中無休(年末年始を除く) |
| 宅建免許番号 | 山梨県知事(3)第2284号 |
| アクセス | 店舗への地図はこちら |

来店ご予約
- 山梨県
マイページ物件数 - 1,415件
山梨県中古一戸建て新着物件
-
-

-
- 中古一戸建て
- 2,026万円
-
甲府市大里町
-
JR身延線国母駅
-
-
-

-
- 中古一戸建て
- 2,150万円
-
南アルプス市鏡中條
-
JR身延線小井川駅
-
-
-

-
- 中古一戸建て
- 2,498万円
-
甲斐市竜王
-
JR中央本線竜王駅
-
-
-

-
- 中古一戸建て
- 1,898万円
-
南アルプス市藤田
-
JR身延線東花輪駅
-
-
-

-
- 中古一戸建て
- 2,698万円
-
中央市中楯
-
JR身延線常永駅
-
-
-

-
- 中古一戸建て
- 2,300万円
-
南都留郡山中湖村山中
-
富士急行富士山駅
-
-
-

-
- 中古一戸建て
- 1,699万円
-
韮崎市大草町下條西割
-
JR中央本線韮崎駅
-
- お近くの店舗を探す
-
おすすめ物件
-
-

-
- 中古一戸建て
- 3,469万円
-
甲府市上今井町
-
JR中央本線甲府
-





































担当エージェント:大澤郁翔
ハウスドゥ 甲府昭和通り、エージェントの大澤と申します。
私たちは、お客様に山梨県内の物件をご紹介でき、お客様の条件に合った物件をより多くの物件の中から選んで
頂く為に日々、山梨県内の新築建売住宅、中古建売住宅、マンション、土地などの物件情報の収集活動をしております。
又、売主様のご都合により、ネット広告などに載せられない希少な物件も多数、店舗内にて全てご紹介致します。
不動産購入時にかかる諸費用、住宅ローン、リフォーム、相続の相談など、
今までの経験を活かし様々な解決策をお客様と一緒に考え、ご提案させて頂きます。
お客様に分かりやすく、丁寧に説明し実際に抱えている不動産に関するお悩みなどを
解決させて頂くことが、私共の得意としているところです。
県内の全ての物件の中からお客様のご条件に合った物件をお探しするお手伝いをさせて頂くことを目標に
社員一同日々、活動しております。 是非、お気軽にご相談下さい。 まずは、ご連絡をお待ちしております。
ハウスドゥ 甲府昭和通り 055-287-8666 (大澤宛まで)