築浅&オール電化♪周南市大字久米
掲載情報更新日:2025年11月15日 次回更新予定日:2025年11月29日
- 2,480万円
-
- 借入ご希望金額
万円 - 借入期間
年 - 借入金利
% - 月々のお支払い金額
円
- 借入ご希望金額
※ 月々のお支払例は目安の試算となりますので、実際の金額とは異なる場合がございます。詳しくは店舗までお問合わせください。
- 周南市大字久米
-
JR岩徳線『周防花岡』 車4分(約1.7km)
築浅&オール電化♪周南市大字久米一戸建て | 物件情報
築浅&オール電化の物件がでました♪
◇お買い物に便利な立地
◆インナーバルコニー
◇駐車3台可能
物件の設備
- 電気
- オール電化
- 上水道
- 下水道
- 給湯
- 浄水器
- IHクッキングヒータ
- 電気コンロ
- コンロ三口
- カウンターキッチン
- バス
- オートバス
- 追焚機能
- 浴室乾燥機
- 浴室に窓
- トイレ
- トイレ2箇所
- 温水洗浄便座
- 室内洗濯機置場
- 洗髪洗面化粧台
- モニタ付インターホン
- LDK15畳以上
- 和室
- 複層ガラス
- 網戸
- クローゼット
- クローゼット2箇所
- クローゼット3箇所
- 床下収納
- シューズボックス
物件の特徴
- 前道6m以上
- 2階建
物件詳細情報
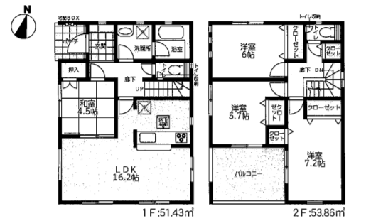
| 価格 | 2,480万円 | 間取り | 4LDK |
|---|---|---|---|
| 物件種別 | 中古一戸建て | ||
| 所在地 | 山口県周南市大字久米 | ||
| アクセス |
|
||
| 建物面積 | 105.29㎡ | 駐車場 | あり 普通:3台 |
| 築年月 | 2022年(令和4年)02月築 | ||
| 建物構造 | 木造 2階建 | 工法 | |
| 主要採光 | バルコニー | ||
| 保証・評価 | |||
| リフォーム | |||
| 土地面積 | 203.93㎡(61.68坪) | 接道 | 南西側(私道)幅 約6.0m |
| 私道 | セットバック | ||
| 地目 | 宅地 | 地勢 | |
| 権利 | 所有権 |
||
| 都市計画 | 市街化区域 |
用途地域 | 1種低層 |
| 建ぺい/容積率 | 50% / 80% | 土地国土法 | |
| 許可番号 | 建築基準法 | ||
| 法令制限 | |||
| 小学区 | 久米小学校 徒歩19分 (約1500m) | 中学区 | 太華中学校 徒歩39分 (約3110m) |
| 現況 | 居住中 | 引渡 | 相談 |
| その他費用 | |||
| 周辺環境 | 久米小学校 徒歩19分 (約1500m) 太華中学校 徒歩39分 (約3110m) セブン-イレブン 下松末武上店 徒歩21分 (約1640m) マルキュウ 久米店 徒歩19分 (約1460m) イオンタウン周南久米 徒歩25分 (約2000m) ドラッグストアコスモス 久米店 徒歩22分 (約1690m) |
||
| 備考 | |||
| 物件番号 | 4220415 | 取引態様 | 媒介 |
取扱店舗情報
ハウスドゥ 周南城ケ丘 株式会社田村ビルズ 店舗詳細ページへ
| 電話番号 | 0834-34-1107 |
|---|---|
| 所在地 | 〒745-0807 山口県周南市城ケ丘1丁目2-32 |
| 営業時間 | 9:30~18:00 |
| 定休日 | 水曜日、第2・第3・第4・第5木曜日 |
| 宅建免許番号 | 国土交通大臣(2)第9501号 |
| アクセス | 店舗への地図はこちら |

来店ご予約
山口県周南市で価格が似ている物件はこちら
- 山口県
マイページ物件数 - 3,031件
山口県中古一戸建て新着物件
-
-

-
- 中古一戸建て
- 1,500万円
-
山口市平井
-
JR山口線湯田温泉駅
-
-
-

-
- 中古一戸建て
- 2,580万円
-
下関市綾羅木本町8丁目
-
JR山陰本線綾羅木駅
-
-
-

-
- 中古一戸建て
- 670万円
-
山口市桜畠6丁目
-
JR山口線宮野駅
-
-
-

-
- 中古一戸建て
- 1,480万円
-
山口市大内御堀
-
JR山口線山口駅
-
-
-

-
- 中古一戸建て
- 350万円
-
防府市桑南2丁目
-
JR山陽本線防府駅
-
-
-

-
- 中古一戸建て
- 1,698万円
-
下関市長府満珠町
-
JR山陽本線長府駅
-
-
-

-
- 中古一戸建て
- 1,998万円
-
下関市安岡駅前1丁目
-
JR山陰本線安岡駅
-
- お近くの店舗を探す
-
おすすめ物件
-
-

-
- 中古一戸建て
- 3,850万円
-
光市宮ノ下町
-
JR山陽本線光
-
-
-

-
- 中古一戸建て
- 2,598万円
-
周南市久米中央2丁目
-
JR山陽本線櫛ヶ浜
-
-
-

-
- 中古一戸建て
- 2,380万円
-
周南市大字大河内
-
JR岩徳線大河内
-
-
-

-
- 中古一戸建て
- 3,200万円
-
下松市星が丘3丁目
-
JR岩徳線生野屋
-
-
-

-
- 中古一戸建て
- 980万円
-
防府市多々良1丁目
-
JR山陽本線防府
-
-
-

-
- 中古一戸建て
- 1,598万円
-
下関市長府浜浦南町
-
JR山陽本線長府
-
-
-

-
- 中古一戸建て
- 1,798万円
-
下関市彦島西山町2丁目
-
JR山陽本線下関
-
-
-

-
- 中古一戸建て
- 4,200万円
-
周南市楠木1丁目
-
JR山陽本線徳山
-
-
-

-
- 中古一戸建て
- 2,280万円
-
周南市平原町
-
JR山陽本線徳山
-
-
-

-
- 中古一戸建て
- 3,980万円
-
宇部市あすとぴあ1丁目
-
JR宇部線床波
-











担当エージェント:金丸 祐志
久米の商業施設が近く、お買い物に便利な立地です!
掲載しています写真はすべて新築時に撮影したものになります。現況と異なる場合には現況を優先させていただきます。