岡崎市上佐々木町字西勝の中古戸建
掲載情報更新日:2026年05月15日 次回更新予定日:2026年05月29日
- 2,800万円
-
- 借入ご希望金額
万円 - 借入期間
年 - 借入金利
% - 月々のお支払い金額
円
- 借入ご希望金額
※ 月々のお支払例は目安の試算となりますので、実際の金額とは異なる場合がございます。詳しくは店舗までお問合わせください。
- 岡崎市上佐々木町字西勝
-
JR東海道本線『西岡崎』 徒歩9分 (約720m)
岡崎市上佐々木町字西勝一戸建て | 物件情報
店舗併用住宅で許可を取得しています!買主が借家住まい等一定の条件に該当すれば専用住宅の再建築が可能!
・主要採光面南西向き!
・店舗併用住宅!
・一定の条件に該当すれば専用住宅の再建築可能!
~~ライフインフォメーション~~
・JR東海道本線「西岡崎」駅:徒歩約9分
・矢作南小学校:徒歩約10分
・矢作中学校:徒歩約49分
・島坂保育園:徒歩約8分
・ワークマン岡崎昭和店:徒歩約10分
・岡崎大和郵便局:徒歩約11分
・サンドラッグ岡崎大和田店:徒歩約12分
・矢作南保育園:徒歩約13分
・フェルナ大和店:徒歩約15分
・フィール大和店:徒歩約17分
・スギ薬局大和店281号店:徒歩約18分
・矢作白鳥幼稚園:徒歩約19分
◎::◎::◎::◎::◎::◎::◎::◎
□ ■ 見るだけOK!聞くだけOK! ■ □
お気軽にお問い合わせ下さい
□ ■ 『ハウスドゥ 岡崎』 ■ □
TEL:0800-888-6388
MAIL:m-info@alphas.biz
◎::◎::◎::◎::◎::◎::◎::◎
物件の設備
- 電気
- 上水道
- 浄化槽
- プロパンガス
- 給湯
- トイレ2箇所
- 室内洗濯機置場
- クローゼット
- ウォークインクローゼット
物件の特徴
- 2階建
物件詳細情報
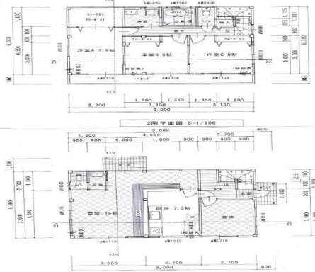
| 価格 | 2,800万円 | 間取り | 5LDK |
|---|---|---|---|
| 物件種別 | 中古一戸建て | ||
| 所在地 | 愛知県岡崎市上佐々木町字西勝 | ||
| アクセス |
|
||
| 建物面積 | 113.4㎡ | 駐車場 | あり |
| 築年月 | 2003年(平成15年)12月築 | ||
| 建物構造 | 鉄骨 2階建 | 工法 | |
| 主要採光 | バルコニー | ||
| 保証・評価 | |||
| リフォーム | |||
| 土地面積 | 実322.83㎡(97.65坪) | 接道 | 西側(公道)幅 約4.0m 間口 約8.00m |
| 私道 | セットバック | ||
| 地目 | 雑種地 | 地勢 | 平坦 |
| 権利 | 所有権 |
||
| 都市計画 | 調整区域 |
用途地域 | 指定無 |
| 建ぺい/容積率 | 60% / 200% | 土地国土法 | |
| 許可番号 | 建築基準法 | ||
| 法令制限 | |||
| 小学区 | 矢作南小学校 徒歩10分 (約800m) | 中学区 | 矢作中学校 徒歩49分 (約3900m) |
| 現況 | 居住中 | 引渡 | 相談 |
| その他費用 | |||
| 周辺環境 | 島坂保育園 徒歩8分 (約580m) ワークマン 岡崎昭和店 徒歩10分 (約730m) 岡崎大和郵便局 徒歩11分 (約820m) 矢作南小学校 徒歩12分 (約950m) サンドラッグ岡崎大和田店 徒歩12分 (約900m) 矢作南保育園 徒歩13分 (約1000m) フェルナ大和店 徒歩15分 (約1200m) フィール大和店 徒歩17分 (約1310m) スギ薬局大和店281号店 徒歩18分 (約1440m) 矢作白鳥幼稚園 徒歩19分 (約1480m) |
||
| 備考 | ※現在の住居が極小、過密、被災、立ち退き、借家等の場合、専用住宅の再建築が可能。岡崎市と相談となります。 | ||
| 物件番号 | 4225061 | 取引態様 | 媒介 |
取扱店舗情報
| 電話番号 | 0564-57-1366 |
|---|---|
| 所在地 | 〒444-0830 愛知県岡崎市柱西1丁目7-5 |
| 営業時間 | 9:00-18:00 |
| 定休日 | 水曜日 |
| 宅建免許番号 | 国土交通大臣(1)第10568号 |
| アクセス | 店舗への地図はこちら |

来店ご予約
愛知県岡崎市で価格が似ている物件はこちら
- 愛知県
マイページ物件数 - 32,438件
最近見た物件
-
-

-
- 新築一戸建て
- 3,298万円
-
宇部市大字上宇部
-
JR宇部線琴芝
-
-
-

-
- 中古マンション
- 1,980万円
-
茨木市沢良宜西1丁目
-
阪急電鉄京都線南茨木
-
-
-

-
- 中古一戸建て
- 1,399万円
-
高崎市引間町
-
JR両毛線新前橋
-
愛知県中古一戸建て新着物件
- お近くの店舗を探す
-
おすすめ物件
-
-

-
- 中古一戸建て
- 1,130万円
-
知多市にしの台1丁目
-
名鉄常滑線古見
-
-
-

-
- 中古一戸建て
- 4,330万円
-
岩倉市大市場町郷廻
-
名鉄犬山線岩倉
-
-
-

-
- 中古一戸建て
- 1,480万円
-
一宮市瀬部字小馬場
-
名鉄犬山線江南
-
-
-

-
- 中古一戸建て
- 4,250万円
-
大府市江端町2丁目
-
JR東海道本線大府
-
-
-

-
- 中古一戸建て
- 3,480万円
-
北名古屋市片場大石
-
名鉄犬山線西春
-
-
-

-
- 中古一戸建て
- 1,990万円
-
岡崎市真福寺町字落合
-
愛知環状鉄道大門
-
-
-

-
- 中古一戸建て
- 2,780万円
-
瀬戸市小空町
-
名鉄瀬戸線尾張瀬戸
-
-
-

-
- 中古一戸建て
- 1,080万円
-
稲沢市平和町下三宅北出
-
名鉄津島線勝幡
-
-
-

-
- 中古一戸建て
- 750万円
-
北名古屋市久地野北浦
-
JR東海交通城北線比良
-
-
-

-
- 中古一戸建て
- 3,250万円
-
大府市長草町中屋敷
-
JR東海道本線共和
-













岡崎市上佐々木町の店舗併用中古住宅です!主要採光面南西向き!現在の住居が極小、過密、被災、立ち退き、借家等の場合、専用住宅の再建築が可能!岡崎市と相談となります!